Bénéficiez des services de nos partenaires locaux soigneusement sélectionnés
pour vous accompagner dans votre parcours d'achat immobilier

Maison 193m² à gellainville

— Gellainville 28630 —
527 500 €
193 m² / 998 m²
7 pièces
parkingbalcon/terrassejardinpiscine

Nos partenaires locaux
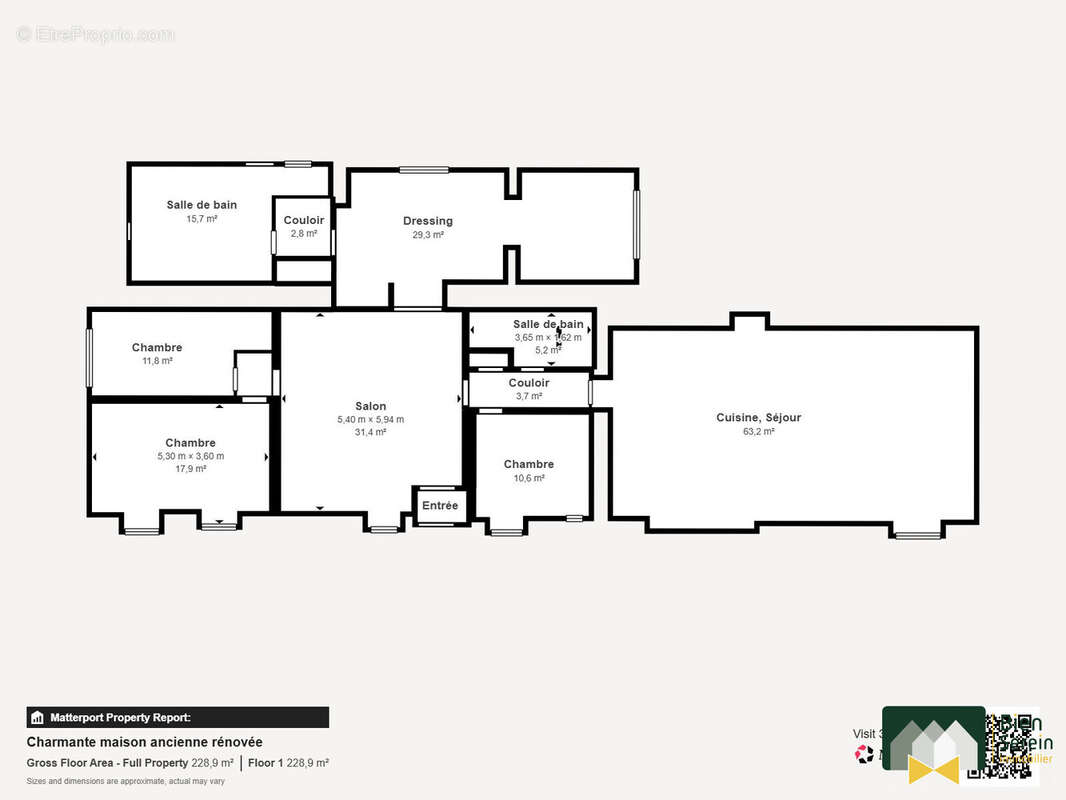
Bienvenue dans votre future Maison! Nous sommes ravis de vous présenter cette charmante longère entièrement rénovée. Située dans un environnement calme, proche de l'agglomération chartraine, cette propriété de 193 m² habitables allie cachet de l'ancien et modernité.


DÉCOUVREZ L'INTÉRIEUR

- Un séjour lumineux de 62m²
- Une cuisine américaine aménagée et équipée
- Trois chambres spacieuses, parfaites pour accueillir toute la famille
- Une salle de bains et deux WC
- Une salle d'eau
- Une cheminée avec insert
- Un grand dressing


ESPACE EXTÉRIEUR

- Un terrain de près de 1000 m²
- Une terrasse devant la maison pour profiter du soleil toute la journée
- Une belle piscine chauffée
- Exposition sud
- Une dépendance avec appentis


CÔTÉ CONFORT

- Pompe à chaleur récente
- Une cheminée avec insert pour une ambiance chaleureuse
- Huisseries PVC double vitrage
- Charme de l'ancien
- Aucun travaux à prévoir


L'EMPLACEMENT

- Un environnement familial et calme situé à 3 km de Chartres :
- Écoles : maternelle, élémentaire et collège à 10 min en voiture
- Commodités : Boulangerie, épicerie, bar à 1km
- Axes routiers : accès rapide à la N154 vers Orléans et Chartres

Une maison pleine de caractère alliant authenticité et confort moderne

Ne manquez pas cette opportunité rare alliant tranquillité de la campagne tout en étant proche de la ville

N'hésitez pas à contacter votre agent au Noeud Pap' pour plus d'informations ou planifier une visite. ??

Honoraires à la charge du vendeur. Classe énergie D, Classe climat D Montant moyen estimé des dépenses annuelles d'énergie pour un usage standard, établi à partir des prix de l'énergie de l'année 2021 : entre 2364.00 et 3200.00 €. Les informations sur les risques auxquels ce bien est exposé sont disponibles sur le site Géorisques : georisques.gouv.fr.

Votre conseiller Bien Serein immobilier : Morgan GOHIER
Agent commercial (Entreprise individuelle)
RSAC 910254119
Voir plus

Référence: 794-BIENSEREIN28
Honoraires à la charge du vendeur.
Barème des honoraires
DPE
A
B
C
D
E
F
G
GES
A
B
C
D
E
F
G

Prêt immobilier

Vous souhaitez connaître votre capacité d’emprunt et trouver le meilleur crédit immobilier ?
Réaliser une simulation gratuite

Maison à GELLAINVILLE
Maison à GELLAINVILLE
Maison à GELLAINVILLE
Maison à GELLAINVILLE
Maison à GELLAINVILLE
Maison à GELLAINVILLE
Maison à GELLAINVILLE
Maison à GELLAINVILLE
Maison à GELLAINVILLE
Ce site est protégé par reCAPTCHA la Politique de confidentialité et les Conditions d’utilisation de Google s’appliquent.
Obtenir un prêt immobilier au meilleur taux ?

En poursuivant votre navigation sans modifier vos paramètres, vous acceptez l'utilisation de cookies susceptibles de réaliser des statistiques de visite. Cliquez ici pour plus d'informations