Maison familiale atypique avec volumes et grand carport

— Ustaritz 64480 —
590 000 €
148 m² / 1 837 m²
6 pièces
jardin

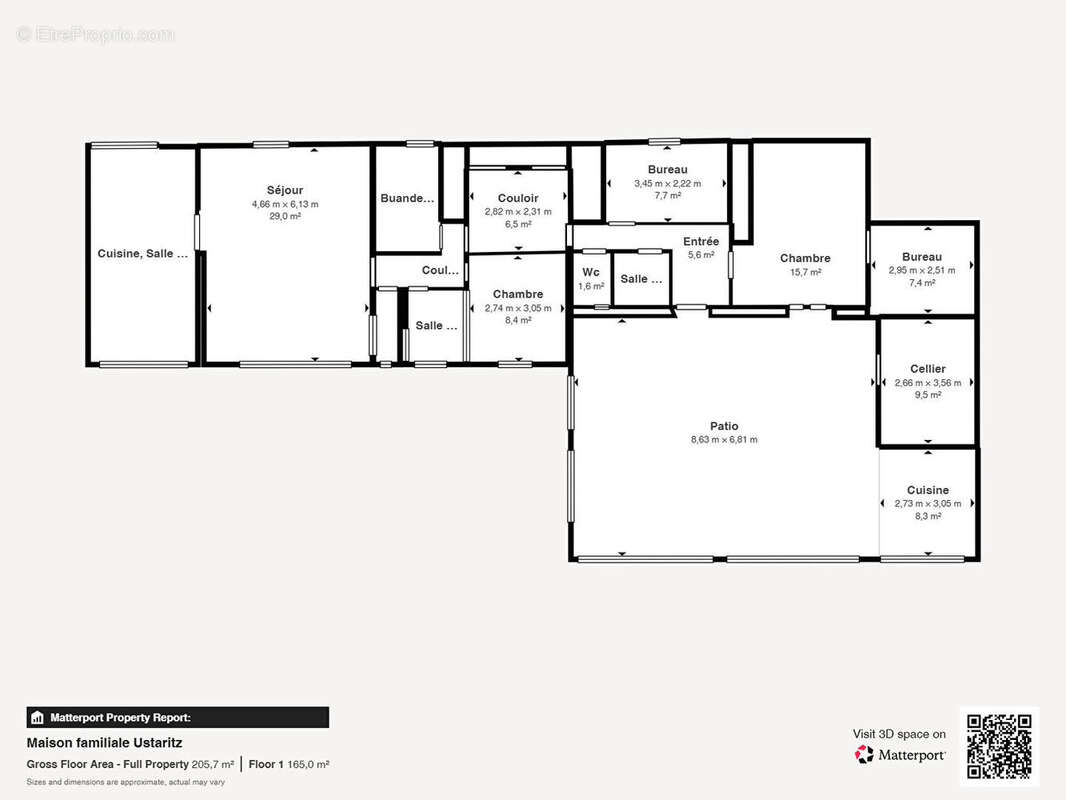
VISITE VIRTUELLE IMMERSIVE DISPONIBLE SUR DEMANDE A Ustaritz, dans un quartier résidentiel calme et recherché, découvrez cette maison familiale atypique offrant un potentiel rare grâce à ses volumes et ses espaces polyvalents. Implantée sur un terrain agréable, cette maison de 1992 développe une surface utile généreuse de plus de 230m² , idéale pour accueillir une famille, créer des espaces de travail ou envisager un réagencement moderne selon vos envies. Le coeur de la maison se distingue par une immense véranda baignée de lumière, véritable pièce de vie supplémentaire parfaite pour profiter de la luminosité toute l'année. L'organisation actuelle propose plusieurs espaces de vie, des chambres réparties sur les différents niveaux, ainsi que des zones complémentaires à repenser selon votre projet. Des travaux de rafraîchissement et de réagencement sont à prévoir sur une partie du bien, permettant d'en révéler tout le potentiel. Autre atout majeur : un immense carport, idéal pour : stationner plusieurs véhicules, stocker matériel, motos ou vélos, créer un atelier ou un espace polyvalent. Un vrai plus pour les familles, artisans ou passionnés ayant besoin d'espace. A prévoir: -L'assainissement individuel nécessite une mise aux normes. Localisation et cadre de vie Située au calme dans un quartier apprécié d'Ustaritz, la maison offre : -un environnement paisible, -la proximité des commodités, -un accès rapide à Cambo-les-Bains, Espelette et la Côte Basque en une vingtaine de minutes. Les atouts: -Grande surface utile et volumes rares -Immense véranda lumineuse -Carport exceptionnel -Quartier calme et résidentiel -Maison familiale au potentiel important -Possibilités d'aménagements multiples L'Adresse Ustaritz - Pays Basque Votre agence locale met à votre service des outils de valorisation haut de gamme : photos HDR, visite virtuelle immersive 3D, prises de vue aériennes par drone pour une expérience complète avant même la visite sur place. Code de la visite virtuelle sur demande.
Voir plus

Référence: 184
Honoraires à la charge du vendeur.
Barème des honoraires
DPE
A
B
C
D
E
F
G
GES
A
B
C
D
E
F
G

Prêt immobilier

Vous souhaitez connaître votre capacité d’emprunt et trouver le meilleur crédit immobilier ?
Réaliser une simulation gratuite

Maison à USTARITZ
Maison à USTARITZ
Maison à USTARITZ
Maison à USTARITZ
Maison à USTARITZ
Maison à USTARITZ
Maison à USTARITZ
Maison à USTARITZ
Maison à USTARITZ
Maison à USTARITZ
Maison à USTARITZ
Maison à USTARITZ
Maison à USTARITZ
Maison à USTARITZ
Maison à USTARITZ
Maison à USTARITZ
Maison à USTARITZ
Ce site est protégé par reCAPTCHA la Politique de confidentialité et les Conditions d’utilisation de Google s’appliquent.
Obtenir un prêt immobilier au meilleur taux ?

En poursuivant votre navigation sans modifier vos paramètres, vous acceptez l'utilisation de cookies susceptibles de réaliser des statistiques de visite. Cliquez ici pour plus d'informations