Pas de commerce à Genouillac pour le moment. Découvrez dès maintenant les commerces dans le département Creuse.
Bénéficiez des services de nos partenaires locaux soigneusement sélectionnés
pour vous accompagner dans votre parcours d'achat immobilier

Grande propriété avec maison, mazet et terrain arboré à nîmes

— Nimes 30000 —
610 000 €
193 m² / 9 540 m²
8 pièces
parkingbalcon/terrassejardinpiscine

Nos partenaires locaux
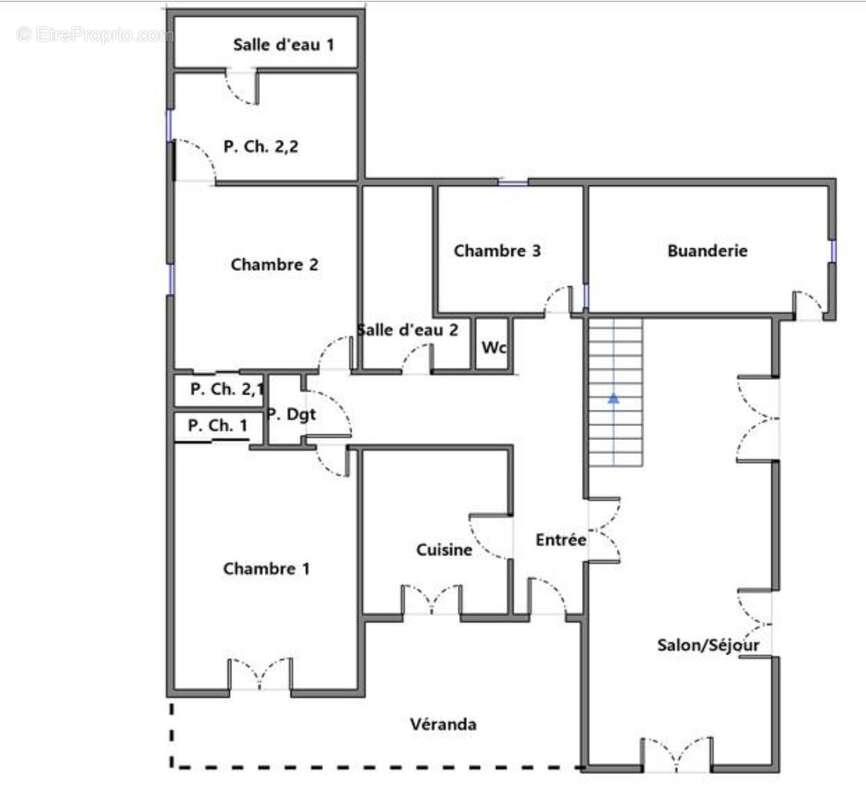
À vendre à Nîmes, dans un environnement exceptionnel et au calme absolu, ensemble immobilier  composée d'une maison principale spacieuse et lumineuse de 132,45 m2, ainsi qu'un mazet indépendant de 60,20 m2. Le tout sur un terrain clos et arboré de 9 540 m2 avec oliviers, deux accès indépendants et vue dégagée.
La maison principale offre un salon, une cuisine ouverte sur véranda, quatre chambres dont une suite en rez-de-chaussée, salle d’eau, buanderie, véranda de 18,5 m2, mezzanine et chambre à l’étage. Le mazet, idéal pour recevoir ou louer, dispose d’un salon, cuisine, salle d’eau avec WC, et deux chambres à l’étage.
Annexes : grand garage de 67 m2, remise de 30 m2, piscine à rénover, possibilité d’extension de 40 m2. Terrain plat, sans vis-à-vis, adapté pour chevaux ou projet touristique.
Le mot de l'agence : Ca que nous aimons dans cette propriété, c'est son atmosphère paisible et sa liberté d'espace. à deux pas du centre de Nîmes. Un bien rare, idéal pour les amoureux de nature et d’authenticité, à quelques minutes du centre-ville de Nîmes.
Voir plus

Référence: 08349
Honoraires d'agence de 4% à la charge de l'acquéreur
Barème des honoraires
DPE
A
B
C
D
E
F
G
GES
A
B
C
D
E
F
G

Prêt immobilier

Vous souhaitez connaître votre capacité d’emprunt et trouver le meilleur crédit immobilier ?
Réaliser une simulation gratuite

Maison à NIMES
Maison à NIMES
Maison à NIMES
Maison à NIMES
Maison à NIMES
Maison à NIMES
Maison à NIMES
Maison à NIMES
Maison à NIMES
Maison à NIMES
Maison à NIMES
Maison à NIMES
Maison à NIMES
Maison à NIMES
Maison à NIMES
Maison à NIMES
Maison à NIMES
Maison à NIMES
Maison à NIMES
Maison à NIMES
Maison à NIMES
Maison à NIMES
Maison à NIMES
Maison à NIMES
Maison à NIMES
Maison à NIMES
Maison à NIMES
Maison à NIMES
Maison à NIMES
Ce site est protégé par reCAPTCHA la Politique de confidentialité et les Conditions d’utilisation de Google s’appliquent.
Obtenir un prêt immobilier au meilleur taux ?

En poursuivant votre navigation sans modifier vos paramètres, vous acceptez l'utilisation de cookies susceptibles de réaliser des statistiques de visite. Cliquez ici pour plus d'informations