Bénéficiez des services de nos partenaires locaux soigneusement sélectionnés
pour vous accompagner dans votre parcours d'achat immobilier

Appartement 188m² à tonnerre

— Tonnerre 89700 —
48 000 €
188 m²

Nos partenaires locaux
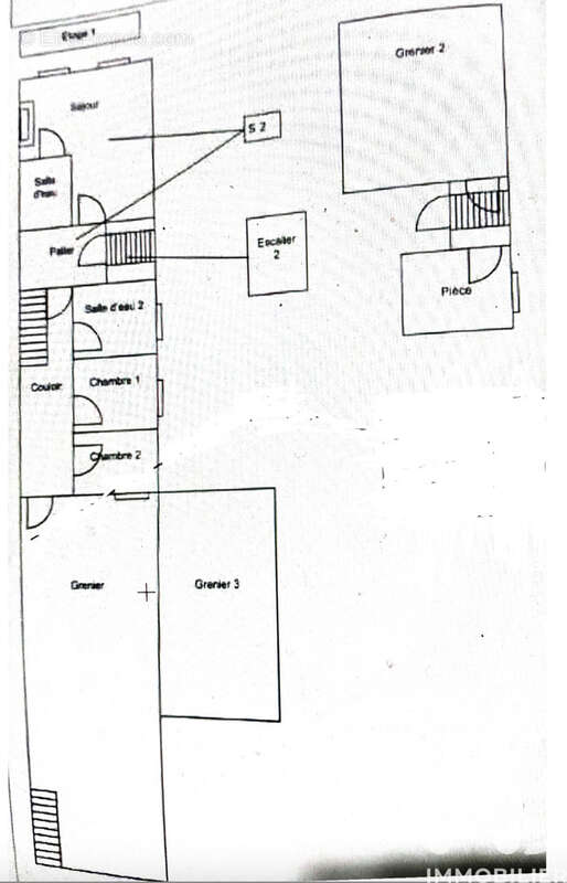
Iad France - Dominique Auvitu vous propose : Ancien bar en rez-de-chaussée + Logement à l'étage + Grenier de 74 m² (aménageable) + Terrain de 114 m²
Tonnerre (Yonne) - 26 Rue du Général Campenon - 188 m² au prix exceptionnel de 255 ¤ / m² !
Double accès permettant de séparer un logement et un local professionnel.
Potentiels d'exploitation : Création de 2 à 3 logements meublés (rentabilité estimée 8 à 10 %) ou Coworking / café / commerce ou Location saisonnière : forte demande, 70-80 % d'occupation en haute saison
Travaux à prévoir : Toiture + électricité (budget estimé 30 à 50 k¤)
Pour qui ? Investisseurs ou Bricoleurs cherchant une belle plus-value après rénovation ou Entrepreneurs voulant lancer un commerce avec logement au-dessus

Honoraires d'agence à la charge du vendeur.
Bien non soumis au DPE. Les informations sur les risques auxquels ce bien est exposé, y compris l'obligation légale de débroussaillement, sont disponibles sur le site Géorisques : http://www.georisques.gouv.fr.
La présente annonce immobilière a été rédigée sous la responsabilité éditoriale de M Dominique Auvitu mandataire indépendant en immobilier (sans détention de fonds), agent commercial de la SAS I@D France immatriculé au RSAC de AUXERRE sous le numéro 402878623, titulaire de la carte de démarchage immobilier pour le compte de la société I@D France SAS.
Informations LOI ALUR :
Honoraires charge vendeur. (gedeon_6727_32209123)
Voir plus

Référence: 1894360
Honoraires à la charge du vendeur.

Prêt immobilier

Vous souhaitez connaître votre capacité d’emprunt et trouver le meilleur crédit immobilier ?
Réaliser une simulation gratuite

Photo 1 - Appartement à TONNERRE
Photo 1
Photo 2 - Appartement à TONNERRE
Photo 2
Photo 3 - Appartement à TONNERRE
Photo 3
Photo 4 - Appartement à TONNERRE
Photo 4
Photo 5 - Appartement à TONNERRE
Photo 5
Photo 6 - Appartement à TONNERRE
Photo 6
Ce site est protégé par reCAPTCHA la Politique de confidentialité et les Conditions d’utilisation de Google s’appliquent.
Obtenir un prêt immobilier au meilleur taux ?

En poursuivant votre navigation sans modifier vos paramètres, vous acceptez l'utilisation de cookies susceptibles de réaliser des statistiques de visite. Cliquez ici pour plus d'informations