Bénéficiez des services de nos partenaires locaux soigneusement sélectionnés
pour vous accompagner dans votre parcours d'achat immobilier

Maison avec garage et atelier

— Quinsac 33360 —
230 000 €
150 m² / 620 m²
7 pièces
parkingjardin

Nos partenaires locaux
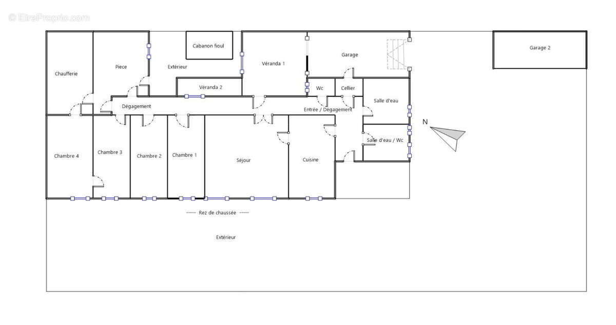
Quinsac-Esconnac, à proximité du restaurant le Robinson, 17 km de Bordeaux Centre, venez découvrir cette maison à rénover. D'une surface habitable d'environ 150 M2, elle comptabilise 4 chambres, un salon-séjour de 26 M2, une cuisine de 16 M2, deux salles d'eau. La maison possède également une véranda, un atelier, une pièce avec cheminée ainsi qu'un double garage. Des travaux sont à prévoir (remaniement des pièces, système de chauffage, électricité, sols, isolation, cuisine et salles d'eau). A vos projets ! Pour plus d'informations, n'hésitez pas à nous contacter. Une vidéo de la maison est disponible sur demande.
Voir plus

Référence: 474
Honoraires à la charge du vendeur.
Barème des honoraires
DPE
A
B
C
D
E
F
G
GES
A
B
C
D
E
F
G

Prêt immobilier

Vous souhaitez connaître votre capacité d’emprunt et trouver le meilleur crédit immobilier ?
Réaliser une simulation gratuite

Maison à QUINSAC
Maison à QUINSAC
Maison à QUINSAC
Maison à QUINSAC
Maison à QUINSAC
Maison à QUINSAC
Maison à QUINSAC
Maison à QUINSAC
Maison à QUINSAC
Maison à QUINSAC
Ce site est protégé par reCAPTCHA la Politique de confidentialité et les Conditions d’utilisation de Google s’appliquent.
Obtenir un prêt immobilier au meilleur taux ?

En poursuivant votre navigation sans modifier vos paramètres, vous acceptez l'utilisation de cookies susceptibles de réaliser des statistiques de visite. Cliquez ici pour plus d'informations