Bénéficiez des services de nos partenaires locaux soigneusement sélectionnés
pour vous accompagner dans votre parcours d'achat immobilier

La-roque-d'anthéron - maison de village de 152 m² avec terrasse

— La Roque-D'antheron 13640 —
310 000 €
152 m²
6 pièces
parkingbalcon/terrasse

Nos partenaires locaux
Bienvenue chez Abriculteurs, l’agence familiale qui s’engage à un service d’exception. Découvrez une présentation soignée de ce bien : des photos pro, un plan détaillé et une visite virtuelle immersive pour vous projeter. Faites confiance à notre expertise pour transformer vos projets immobiliers en réussites remarquables.

Au cœur du village de La-Roque-d’Anthéron, à deux pas des commodités, cette maison de 152 m² séduit par son authenticité et son charme provençal.

Le rez-de-chaussée accueille un appartement T2 indépendant comprenant une pièce de vie avec cuisine ouverte, une chambre et une salle de bains avec WC. Idéal pour recevoir famille et amis ou envisager un projet locatif.
Une cave complète ce niveau et offre un espace de rangement supplémentaire.

À l’étage, la maison principale s’articule autour d’une pièce de vie lumineuse de 30,6 m² avec poêle à bois, d’une cuisine indépendante et d’une terrasse de 28 m² exposée plein Sud.

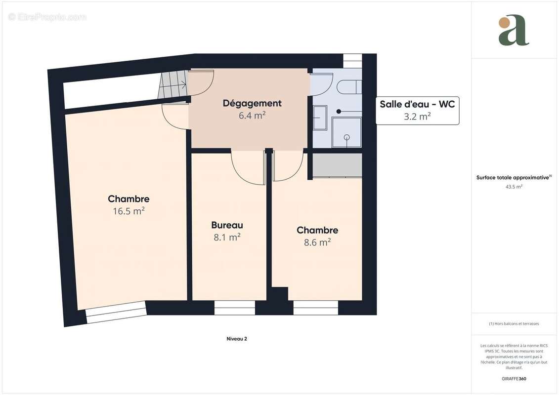
Le dernier niveau propose deux chambres, dont une spacieuse de 16,5 m², un bureau ainsi qu’une salle d’eau avec WC.

Alliant espace, luminosité et potentiel, cette maison s’adresse aussi bien à une famille en quête de confort qu’à ceux qui souhaitent conjuguer résidence principale et projet locatif.

Les + du bien :
- Toutes commodités à pied
- Luminosité
- Terrasse de 28 m²
- Cave
- Dépendance

A noter :
- Etat du bien : rafraichissement à prévoir
- PVC double vitrage
- Fibre optique
- Eau de ville
- Tout à l'égout
- Taxe foncière : 530 € / an.

Performance énergétique :
- Consommation conventionnelle (kWhEP/m2.an) : 224 (D)
- Estimation des émissions (kgCO2/m2.an) : 7 (B)
- Coût de l'énergie min / max : 2 360 € et 3 240 €
- Année de référence des prix : 2021, 2022, 2023

Prix de vente : 310 000 € TTC (Honoraires Abriculteurs à la charge du vendeur).

Ce bien a retenu votre intérêt ? Pour organiser la visite avec nous, rien de plus simple, prenez rendez-vous en ligne au moment qui vous convient le mieux.

Les informations sur les risques auxquels ce bien est exposé sont disponibles sur le site Géorisques : www.georisques.gouv.fr.

Annonce rédigée sous la responsabilité éditoriale de M. RICHIER Matthieu , agent commercial (EI), immatriculé au RSAC de Salon-de-Provence sous le n° 850 335 530, sans détention de fonds, agissant pour le compte de la SARL Abriculteurs immobilier, au capital de 5 000 €, immatriculée sous le SIREN n° 837 704 584, titulaire de la carte professionnelle n° CPI 75[Coordonnées masquées]25 842 délivrée par la CCI de Paris Île-de-France, dont le représentant légal est M. Adrien Piot, ayant son siège social au 12 rue des Halles, 75001 Paris.
Voir plus

Référence: MRVM3176
Barème des honoraires
DPE
A
B
C
D
E
F
G
GES
A
B
C
D
E
F
G

Prêt immobilier

Vous souhaitez connaître votre capacité d’emprunt et trouver le meilleur crédit immobilier ?
Réaliser une simulation gratuite

Maison à LA ROQUE-D'ANTHERON
Maison à LA ROQUE-D'ANTHERON
Maison à LA ROQUE-D'ANTHERON
Maison à LA ROQUE-D'ANTHERON
Maison à LA ROQUE-D'ANTHERON
Maison à LA ROQUE-D'ANTHERON
Maison à LA ROQUE-D'ANTHERON
Maison à LA ROQUE-D'ANTHERON
Maison à LA ROQUE-D'ANTHERON
Maison à LA ROQUE-D'ANTHERON
Maison à LA ROQUE-D'ANTHERON
Maison à LA ROQUE-D'ANTHERON
Maison à LA ROQUE-D'ANTHERON
Maison à LA ROQUE-D'ANTHERON
Maison à LA ROQUE-D'ANTHERON
Maison à LA ROQUE-D'ANTHERON
Maison à LA ROQUE-D'ANTHERON
Maison à LA ROQUE-D'ANTHERON
Maison à LA ROQUE-D'ANTHERON
Maison à LA ROQUE-D'ANTHERON
Ce site est protégé par reCAPTCHA la Politique de confidentialité et les Conditions d’utilisation de Google s’appliquent.
Obtenir un prêt immobilier au meilleur taux ?

En poursuivant votre navigation sans modifier vos paramètres, vous acceptez l'utilisation de cookies susceptibles de réaliser des statistiques de visite. Cliquez ici pour plus d'informations