Bénéficiez des services de nos partenaires locaux soigneusement sélectionnés
pour vous accompagner dans votre parcours d'achat immobilier

Levallois-perret - wilson-rivay - 2 pièces

— Levallois-Perret 92300 —
450 000 €
48 m²
2 pièces

Nos partenaires locaux
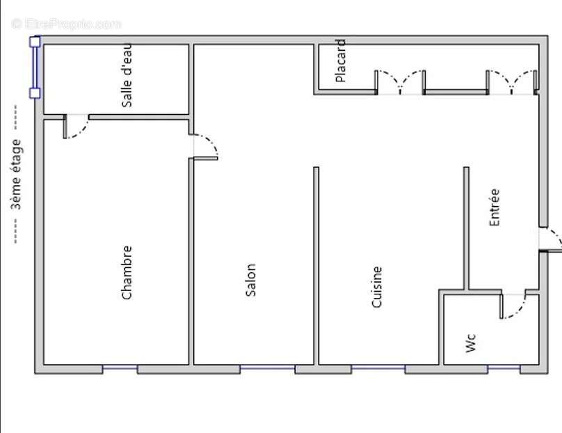
Situé dans le quartier Wilson-Rivay, l'agence MAXIME DESPÈRES vous propose un appartement de deux pièces de 48.14m² dans un immeuble de 1890. Au troisième étage (sans ascenseur), ce bien au charme de l'ancien se compose: d'une entrée, d'un séjour, d'une chambre, d'une cuisine ouverte, d'une salle de d'eau et d'un WC indépendant.
Une cave complète ce bien. Idéal pour un premier achat ou un investissement locatif.
Honoraires à la charge de l'acquéreur de 1% (prix hors honoraires: 445 550€). Pas de procédure en cours. Nombre total de lots : 102. Lots d’habitation : 42. Charges annuelles: 1 200€/an. Les informations sur les risques auxquels ce bien est exposé sont disponibles sur le site Géorisques https://www.georisques.gouv.fr
Voir plus

Référence: 86463506
Barème des honoraires
DPE
A
B
C
D
E
F
G
GES
A
B
C
D
E
F
G

Prêt immobilier

Vous souhaitez connaître votre capacité d’emprunt et trouver le meilleur crédit immobilier ?
Réaliser une simulation gratuite

Appartement à LEVALLOIS-PERRET
Appartement à LEVALLOIS-PERRET
Appartement à LEVALLOIS-PERRET
Appartement à LEVALLOIS-PERRET
Appartement à LEVALLOIS-PERRET
Appartement à LEVALLOIS-PERRET
Appartement à LEVALLOIS-PERRET
Appartement à LEVALLOIS-PERRET
Appartement à LEVALLOIS-PERRET
Ce site est protégé par reCAPTCHA la Politique de confidentialité et les Conditions d’utilisation de Google s’appliquent.
Obtenir un prêt immobilier au meilleur taux ?

En poursuivant votre navigation sans modifier vos paramètres, vous acceptez l'utilisation de cookies susceptibles de réaliser des statistiques de visite. Cliquez ici pour plus d'informations