Bénéficiez des services de nos partenaires locaux soigneusement sélectionnés
pour vous accompagner dans votre parcours d'achat immobilier

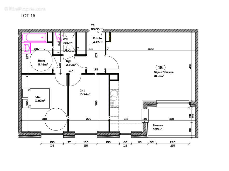
Appartement neuf - seyssel - 3 pièces de 68,22 m² + terrasse + poss garage et place de stationnement

— Seyssel 01420 —
227 900 €
68 m²
3 pièces
ascenseur

Nos partenaires locaux
APPARTEMENT NEUF - SEYSSEL - 3 pièces de 68,22 m² + TERRASSE + poss GARAGE et PLACE DE STATIONNEMENT Vous rêvez d'un foyer alliant confort, espace et sérénité ? Ne cherchez plus, ce magnifique appartement de 68,22 m² est fait pour vous ! Cet appartement se compose d'une pièce de vie s'ouvrant sur une terrasse, de deux chambres, d'une salle de bains et de WC séparés. Située dans la charmante commune de SEYSSEL, cet appartement est l'endroit idéal pour vivre, avec toutes les commodités tout en habitant un environnement paisible et verdoyant. Pour plus de renseignements, n'hésitez pas à nous retrouver au 38 avenue du Parmelan, 74000 ANNECY ou nous contacter par téléphone au [Coordonnées masquées] ou par e-mail : [Coordonnées masquées]. Les informations sur les risques auxquels ce bien est exposé sont disponibles sur le site: www.georisque.gouv.fr Copropriété de 64 lots - dont 32 lots habitation.(Pas de procédure en cours).
Voir plus

Référence: 1071
Bien en copropriété. Nombre de lots : 64.
Barème des honoraires

Prêt immobilier

Vous souhaitez connaître votre capacité d’emprunt et trouver le meilleur crédit immobilier ?
Réaliser une simulation gratuite

Appartement à SEYSSEL
Appartement à SEYSSEL
Ce site est protégé par reCAPTCHA la Politique de confidentialité et les Conditions d’utilisation de Google s’appliquent.
Obtenir un prêt immobilier au meilleur taux ?

En poursuivant votre navigation sans modifier vos paramètres, vous acceptez l'utilisation de cookies susceptibles de réaliser des statistiques de visite. Cliquez ici pour plus d'informations