Maison 210m² à saint-pryve-saint-mesmin

— Saint-Pryve-Saint-Mesmin 45750 —
499 000 €
210 m² / 2 020 m²
7 pièces
parkingbalcon/terrassejardin

LOIRET_ SAINT -PRYVE–210M2 _ 5 chambres – Grand terrain – PAS DE TRAVAUX

effiCity, par l'intermédiaire d'Agnes Rocher l'agence qui estime votre bien en ligne, vous propose cette magnifique maison située dans un quartier résidentiel prisé de Saint-Pryvé-Saint-Mesmin.

LES +
Collaboration avec une architecte d'intérieur pour une projection sur mesure.
2 garages carrelés et isolés
Abris bois
Espace supplémentaire sur la parcelle de 20m2 au sol et sa mezzanine
Alarme
Isolation des combles datant de 2020
Menuiseries changées en 2023 fenêtres PVC et volets alu
Terrasse de 80 m2 , équipé d'un store banne éclairé avec table et banc en marbre intégrés
Radiateur datant de 2018
fibre

Cette demeure traditionnelle de 210 m² au sol , sur 2 niveaux, offre de beaux espaces de vie lumineux et chaleureux.
Avec 6 pièces dont 5 chambres, elle saura accueillir confortablement toute votre famille.
la maison se compose comme suit:

L'entrée ouverte sur le salon, propose un espace d 'environ 50m2 ,avec des poutres, une cheminée avec insert (tubé),chauffage électrique dernière génération calo porteur.
suit une confortable cuisine refaite en 2023 , dinatoire neuve aménagée et équipée.
puis une chambre et un dressing ou bureau puis la salle d' eau très récente .(2022)

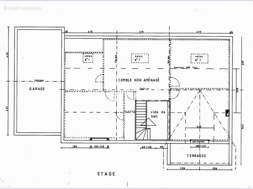
L'étage par lequel on empreinte un escalier massif ,se repartie une lingerie ,une salle de bain et 3 chambres

Le comble aménagé au dessus du garage , offre une surface de 15 m², représentent un réel potentiel pour créer un espace supplémentaire selon vos besoins et vos envies.
Une surface indépendante propose 20 m2 supplémentaire dédié soit à un pool housse ou espace invités le terrain étant piscinable

Construite dans les années 80, cette maison de construction artisanale avec son toit en tuile artisanale a été parfaitement entretenue au fil des ans, nous retrouvons une cuisine, neuve entièrement équipée et aménagée, une salle d 'eau en rez de chaussé neuve également .

Implantée sur un terrain spacieux de plus de 2000m2 , l'exposition ouest assure une luminosité agréable tout au long de la journée. Vous pourrez profiter pleinement de votre jardin et organiser de belles journées en extérieur.

Cette propriété est idéalement située, proche des commodités, des écoles et des transports en commun, offrant un cadre de vie paisible et pratique pour toute la famille.
la fosse septique a fait l'objet d une vérification des normes en mars 2025 ainsi qu'une vidange en avril.

Ne laissez pas passer cette opportunité unique ! Contactez-moi dès maintenant au [Coordonnées masquées],Agnes ROCHER effiCity, pour organiser une visite et découvrir le charme de cette maison spacieuse et accueillante.
Les informations sur les risques auxquels ce bien est exposé sont disponibles sur le site Georisque : georisques. gouv. fr
Agnès Rocher - EI - est Agent Commercial mandataire en immobilier, immatriculé au Registre Spécial des Agents Commerciaux du Tribunal de Commerce de Orléans sous le n°911886208.
Siège social du mandant : effiCity, 48 avenue de Villiers - 75017 PARIS - Société par Actions Simplifiée, société au capital de 132 373,05 euros, immatriculée au RCS Paris 497 617 746 et titulaire de la Carte professionnelle CPI 75[Coordonnées masquées]02 025 - CCI Paris IDF - Caisse de Garantie : GALIAN Assurances 89 rue de la Boétie 75008 Paris
Voir plus

Référence: 178544
Honoraires à la charge du vendeur.
Barème des honoraires
DPE
A
B
C
D
E
F
G
GES
A
B
C
D
E
F
G

Prêt immobilier

Vous souhaitez connaître votre capacité d’emprunt et trouver le meilleur crédit immobilier ?
Réaliser une simulation gratuite

Maison à SAINT-PRYVE-SAINT-MESMIN
Maison à SAINT-PRYVE-SAINT-MESMIN
Maison à SAINT-PRYVE-SAINT-MESMIN
Maison à SAINT-PRYVE-SAINT-MESMIN
Maison à SAINT-PRYVE-SAINT-MESMIN
Maison à SAINT-PRYVE-SAINT-MESMIN
Maison à SAINT-PRYVE-SAINT-MESMIN
Maison à SAINT-PRYVE-SAINT-MESMIN
Maison à SAINT-PRYVE-SAINT-MESMIN
Maison à SAINT-PRYVE-SAINT-MESMIN
Maison à SAINT-PRYVE-SAINT-MESMIN
Maison à SAINT-PRYVE-SAINT-MESMIN
Maison à SAINT-PRYVE-SAINT-MESMIN
Maison à SAINT-PRYVE-SAINT-MESMIN
Maison à SAINT-PRYVE-SAINT-MESMIN
Maison à SAINT-PRYVE-SAINT-MESMIN
Maison à SAINT-PRYVE-SAINT-MESMIN
Maison à SAINT-PRYVE-SAINT-MESMIN
Ce site est protégé par reCAPTCHA la Politique de confidentialité et les Conditions d’utilisation de Google s’appliquent.
Obtenir un prêt immobilier au meilleur taux ?

En poursuivant votre navigation sans modifier vos paramètres, vous acceptez l'utilisation de cookies susceptibles de réaliser des statistiques de visite. Cliquez ici pour plus d'informations