Bénéficiez des services de nos partenaires locaux soigneusement sélectionnés
pour vous accompagner dans votre parcours d'achat immobilier

Vente maison castres(81100) 330 000ᅵ

— Castres 81100 —
330 000 €
113 m²
6 pièces

Nos partenaires locaux
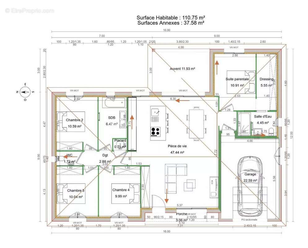
Castres : offrez à votre famille une maison neuve clé en main dans un environnement paisible et bien desservi. cadre de vie idéal, confort moderne et prestations haut de gamme : cette maison familiale a tout pour vous séduire. offrez à votre famille une maison neuve clé en main (2024), parfaitement située dans un environnement résidentiel paisible, à deux pas des écoles, crèches, transports et axes routiers. un lieu de vie harmonieux, conçu pour allier bien-être, praticité et modernité. caractéristiques principales : surface habitable : 110 m² terrain : 600 m² avec terrasse couverte garage : 22 m² orientation optimale offrant une luminosité naturelle exceptionnelle extérieur aménageable : jardin, piscine, potager. composition : 3 chambres lumineuses 1 suite parentale avec salle d'eau privative et dressing grande pièce de vie ouverte sur la cuisine cuisine haut de gamme sur mesure (valeur 20 000 euros) : ? plan de travail en céramique ? electroménager schneider (four, micro-ondes, lave-vaisselle), hotte electrolux, réfrigérateur scholtes confort & équipements : volets roulants motorisés centralisés chauffage gainable par pompe à chaleur atlantic avec thermostat individuel très bonne performance énergétique (estimée à 500 euros/an) environnement : crèche et arrêt de bus à proximité immédiate accès rapide aux grands axes routiers quartier calme et sécurisé, idéal pour les familles les informations sur les risques auxquels ce bien est exposé sont disponibles sur le site géorisques:www.georisques.gouv.fr . les photos avec l'inscription ia sont des images générées par ia comme étant des idées de décoration ; elles ne sont donc pas contractuelles.
Voir plus

Référence: 85905287D
DPE
A
B
C
D
E
F
G
GES
A
B
C
D
E
F
G

Prêt immobilier

Vous souhaitez connaître votre capacité d’emprunt et trouver le meilleur crédit immobilier ?
Réaliser une simulation gratuite

Maison à CASTRES
Maison à CASTRES
Maison à CASTRES
Maison à CASTRES
Maison à CASTRES
Maison à CASTRES
Maison à CASTRES
Maison à CASTRES
Maison à CASTRES
Maison à CASTRES
Ce site est protégé par reCAPTCHA la Politique de confidentialité et les Conditions d’utilisation de Google s’appliquent.
Obtenir un prêt immobilier au meilleur taux ?

En poursuivant votre navigation sans modifier vos paramètres, vous acceptez l'utilisation de cookies susceptibles de réaliser des statistiques de visite. Cliquez ici pour plus d'informations