Bénéficiez des services de nos partenaires locaux soigneusement sélectionnés
pour vous accompagner dans votre parcours d'achat immobilier

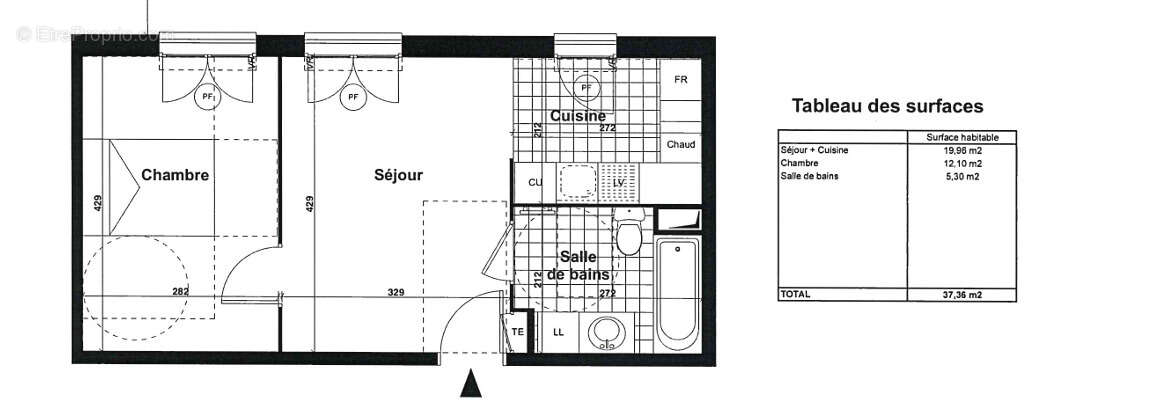
Appartement 37m² à chennevieres-sur-marne

— Chennevieres-Sur-Marne 94430 —
199 000 €
37 m²
2 pièces
ascenseur

Nos partenaires locaux
Iad France - Aurelia Fernandes vous propose : À Chennevières sur Marne, un appartement de type 2 pièces dans une résidence construite en 2021, au 1er étage sur 2 avec ascenseur, comprenant : pièce de vie, cuisine aménagée et équipée, chambre avec placards (12 m²) et salle de bains avec wc. Une place de stationnement en sous-sol complète ce bien. Des informations ou visite ? N'hésitez pas à me contacter !

La presente annonce immobiliere vise 2 lots situés dans une copropriété de 79 lots au total et ne faisant l'objet d'aucune procédure en cours citée à l'article L. 721-1 du code de la construction et de l'habitation. Montant moyen mensuel de charges déclaré par le vendeur : 105¤ par mois (soit 1260 ¤ annuel). Honoraires d'agence à la charge du vendeur.
Information d'affichage énergétique sur ce bien : classe ENERGIE C indice 86 et classe CLIMAT C indice 18. Les informations sur les risques auxquels ce bien est exposé, y compris l'obligation légale de débroussaillement, sont disponibles sur le site Géorisques : http://www.georisques.gouv.fr.
La présente annonce immobilière a été rédigée sous la responsabilité éditoriale de Mme Aurelia Fernandes mandataire indépendant en immobilier (sans détention de fonds), agent commercial de la SAS I@D France immatriculé au RSAC de creteil sous le numéro 538327040, titulaire de la carte de démarchage immobilier pour le compte de la société I@D France SAS.
Informations LOI ALUR :
Soumis au régime de copropriété.
Nombre de lots : 79.
Quote part annuelle(moyenne) : 1260 euros.
Honoraires charge vendeur. (gedeon_6727_32219533)
Voir plus

Référence: 1895523
Bien en copropriété. Nombre de lots : 79. Charges de copropriété : 1260 €.
Honoraires à la charge du vendeur.
DPE
A
B
C
D
E
F
G
GES
A
B
C
D
E
F
G

Prêt immobilier

Vous souhaitez connaître votre capacité d’emprunt et trouver le meilleur crédit immobilier ?
Réaliser une simulation gratuite

Photo 1 - Appartement à CHENNEVIERES-SUR-MARNE
Photo 1
Photo 2 - Appartement à CHENNEVIERES-SUR-MARNE
Photo 2
Photo 3 - Appartement à CHENNEVIERES-SUR-MARNE
Photo 3
Photo 4 - Appartement à CHENNEVIERES-SUR-MARNE
Photo 4
Photo 5 - Appartement à CHENNEVIERES-SUR-MARNE
Photo 5
Photo 6 - Appartement à CHENNEVIERES-SUR-MARNE
Photo 6
Photo 7 - Appartement à CHENNEVIERES-SUR-MARNE
Photo 7
Photo 8 - Appartement à CHENNEVIERES-SUR-MARNE
Photo 8
Ce site est protégé par reCAPTCHA la Politique de confidentialité et les Conditions d’utilisation de Google s’appliquent.
Obtenir un prêt immobilier au meilleur taux ?

En poursuivant votre navigation sans modifier vos paramètres, vous acceptez l'utilisation de cookies susceptibles de réaliser des statistiques de visite. Cliquez ici pour plus d'informations