Bénéficiez des services de nos partenaires locaux soigneusement sélectionnés
pour vous accompagner dans votre parcours d'achat immobilier

Vend t3 terrasse garage calme 13008 borély - la plage

— Marseille-8e 13008 —
485 000 €
73 m²
3 pièces
balcon/terrasseascenseur

Nos partenaires locaux
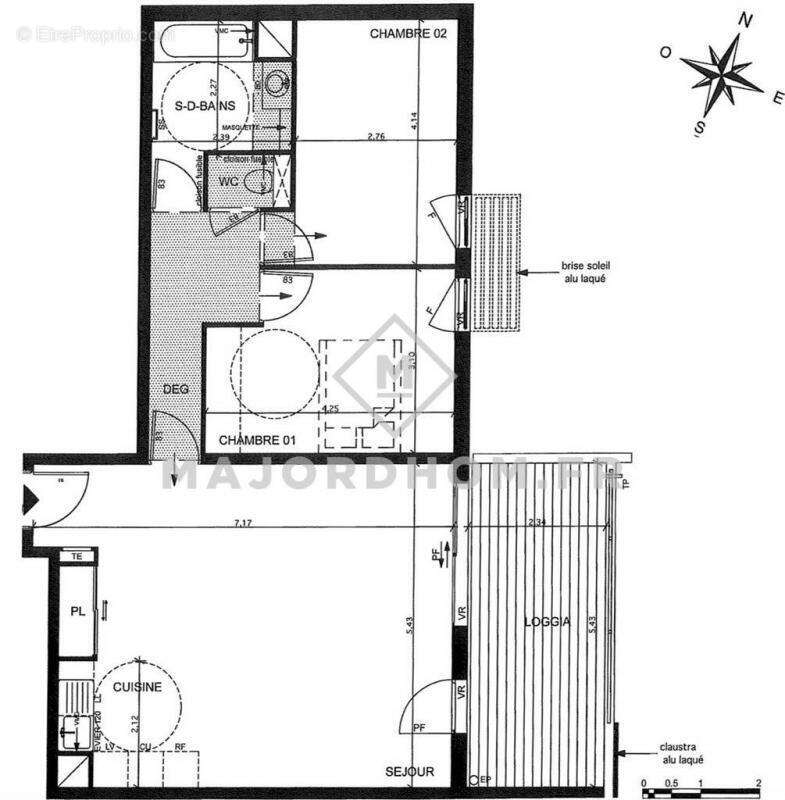
À deux pas de Borély et de la plage , dans un environnement recherché et privilégié, découvrez ce superbe appartement de 73 m² situé dans une résidence récente encore sous garantie.

Dès l'entrée, vous serez séduits par un vaste salon-séjour de 36,3 m², baigné de lumière, avec sa cuisine ouverte entièrement équipée. Cet espace de vie s'ouvre sur une belle terrasse de 12,7 m², exposée sud-ouest, offrant une vue dégagée sans aucun vis-à-vis, idéale pour profiter des fins de journée en toute tranquillité.

L'espace nuit se compose de deux chambres confortables de 12,2 m² et 11,9 m², d'une salle de bain fonctionnelle et de WC séparés.

Les prestations sont à la hauteur d'un bien de standing : double vitrage, volets roulants électriques, climatisation réversible gainée. Le calme absolu, l'absence totale de vis-à-vis et la qualité de la résidence confèrent à cet appartement une atmosphère sereine et raffinée.

Classé DPE A / GES A, il ne nécessite aucun travaux. Un garage privatif vient compléter ce bien rare à la vente.

Un emplacement exceptionnel, une construction récente et des prestations de qualité font de cet appartement un bien d'exception, idéal pour une résidence principale ou un investissement patrimonial.
Pour vous accompagner dans ce projet, vous bénéficiez de l'expertise de l'agence MAJORDHOM, représentée par un agent commercial titulaire de la carte professionnelle délivrée par la CCI.

En tant que professionnel de l'immobilier, MAJORDHOM s'engage à respecter scrupuleusement la loi Hoguet garantissant une transaction sécurisée et transparente. Les honoraires d'agence sont exclusivement à la charge du vendeur, un avantage non négligeable.

N'attendez plus pour découvrir ce bien. Rendez-vous sur Majordhom.fr pour une visite virtuelle haute définition, des plans détaillés et des photos supplémentaires. Et pour ne manquer aucune opportunité, contactez nous !

Consommation énergie primaire: est supérieur à 70 kWh/m²/an
Montant estimé des dépenses annuelles d'énergie pour un usage standard est de 971€
Voir plus

Référence: 6388K4
DPE
A
B
C
D
E
F
G
GES
A
B
C
D
E
F
G

Prêt immobilier

Vous souhaitez connaître votre capacité d’emprunt et trouver le meilleur crédit immobilier ?
Réaliser une simulation gratuite

Appartement à MARSEILLE-8E
Appartement à MARSEILLE-8E
Appartement à MARSEILLE-8E
Appartement à MARSEILLE-8E
Appartement à MARSEILLE-8E
Appartement à MARSEILLE-8E
Appartement à MARSEILLE-8E
Appartement à MARSEILLE-8E
Appartement à MARSEILLE-8E
Appartement à MARSEILLE-8E
Appartement à MARSEILLE-8E
Appartement à MARSEILLE-8E
Appartement à MARSEILLE-8E
Ce site est protégé par reCAPTCHA la Politique de confidentialité et les Conditions d’utilisation de Google s’appliquent.
Obtenir un prêt immobilier au meilleur taux ?

En poursuivant votre navigation sans modifier vos paramètres, vous acceptez l'utilisation de cookies susceptibles de réaliser des statistiques de visite. Cliquez ici pour plus d'informations