Bénéficiez des services de nos partenaires locaux soigneusement sélectionnés
pour vous accompagner dans votre parcours d'achat immobilier

Appartement 297m² à limoges

— Limoges 87000 —
468 000 €
297 m²
7 pièces
parkingbalcon/terrasse

Nos partenaires locaux
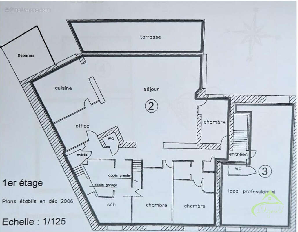
Au coeur de Limoges, au fond d'une impasse paisible, superbe loft dans une petite copropriété de deux lots.
Au RDC : grand hall d'entrée privatif avec rangements. Garage et cave.
Au 1er étage : grande pièce de vie lumineuse de 68 m2 avec accès terrasse de 30 m2 et vue dégagée. Grande cuisine indépendante de 21 m2 et buanderie. 3 belles chambres dont 2 avec dressing. 2 salles d'eau dont une avec baignoire, 2 toilettes.
Au même niveau, espace indépendant avec toilettes, de plus de 55 m2 avec porte coulissante pour 2 chambres supplémentaires, espace professionnel ou location.
Combles aménagés.
Double vitrage, chauffage avec pompe à chaleur Air/Air de 2007, volets roulants électriques.
Posez dès maintenant vos valises dans cet incroyable loft totalement unique avec accès piéton à tous les commerces !

Montant estimé des dépenses annuelles d'énergie pour un usage standard : entre 3 447 € et 4 663 € par an. Prix moyens des énergies indexés sur l'année 2021, 2022, 2023 (abonnements compris).
Consommation énergie finale : 66 KWh/m2/an
DPE réalisé le 08/07/2025

Les informations sur les risques auxquels ce bien est exposé sont disponibles sur le site Géorisques : www.georisques.gouv.fr

Honoraires inclus de 4% TTC à la charge de l'acquéreur. Prix hors honoraires 450 000 €. Dans une copropriété de 2 lots. Aucune procédure n'est en cours. Classe énergie C, Classe climat A Montant moyen estimé des dépenses annuelles d'énergie pour un usage standard, établi à partir des prix de l'énergie de l'année 2025 : entre 3447.00 et 4663.00 €. Les informations sur les risques auxquels ce bien est exposé sont disponibles sur le site Géorisques : georisques.gouv.fr.

Votre conseiller L'agence 87 : Julien Bossis
Agent commercial (Entreprise individuelle)
RSAC 802028506 R.S.A.C
Voir plus

Référence: VA1918-AGENCE87SB
Bien en copropriété. Nombre de lots : 2.
Honoraires d'agence de 4% à la charge de l'acquéreur
Barème des honoraires
DPE
A
B
C
D
E
F
G
GES
A
B
C
D
E
F
G

Prêt immobilier

Vous souhaitez connaître votre capacité d’emprunt et trouver le meilleur crédit immobilier ?
Réaliser une simulation gratuite

Appartement à LIMOGES
Appartement à LIMOGES
Appartement à LIMOGES
Appartement à LIMOGES
Appartement à LIMOGES
Appartement à LIMOGES
Appartement à LIMOGES
Appartement à LIMOGES
Appartement à LIMOGES
Ce site est protégé par reCAPTCHA la Politique de confidentialité et les Conditions d’utilisation de Google s’appliquent.
Obtenir un prêt immobilier au meilleur taux ?

En poursuivant votre navigation sans modifier vos paramètres, vous acceptez l'utilisation de cookies susceptibles de réaliser des statistiques de visite. Cliquez ici pour plus d'informations