A portiragnes, maison rt2020

— Portiragnes 34420 —
289 000 €
80 m² / 175 m²
3 pièces
parkingbalcon/terrasse

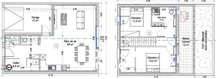
Idéalement située sur la commune de Portiragnes, entre cœur de village et station balnéaire, cette maison neuve en cours de construction bénéficie d'un emplacement privilégié à seulement quelques minutes de Portiragnes-Plage. D'une surface habitable de 80 m², elle propose une exposition traversante est-ouest qui permet de profiter d'un bel ensoleillement tout au long de la journée. Dès l'entrée, un cellier de plus de 4 m² offre un espace de rangement pratique et fonctionnel, idéal pour l'organisation du quotidien suivie d'une pièce de vie spacieuse et lumineuse de 40 m² À l'étage, l'espace nuit se compose de deux chambres de 11 m² et 15 m² ainsi que d'une salle de bain équipée avec WC, créant un étage confortable et bien agencé, un WC indépendant se trouve également en rez de chaussée. À l'extérieur, la maison offre plusieurs espaces de vie en plein air avec une terrasse en rez-de-chaussée, un jardin privatif à aménager selon vos envies, et un balcon couvert de 12 m² à l'étage pour profiter de la douceur du climat en toute saison Un garage de 15 m² complète l'ensemble ainsi que 2 places de stationnement. Construite selon les dernières normes environnementales RT 2020, cette maison garantit une faible consommation énergétique grâce à des matériaux de qualité, une pompe à chaleur, du double vitrage, un ballon thermodynamique et une excellente isolation thermique La construction bénéficie de la garantie décennale ainsi que de la garantie dommages-ouvrage, pour un achat en toute tranquillité Avec des frais de notaire réduits à environ 3,5 % et une livraison prévue en octobre 2025, cette maison représente une belle opportunité à saisir, que ce soit pour y vivre à l'année ou pour profiter d'un pied-à-terre proche de la mer Pour tout renseignement complémentaire ou pour découvrir les plans, contactez-moi au [Coordonnées masquées], disponible 7 jours sur 7 Sylvia CROS, Déclic IMMO 34 Réf 1603. DECLIC IMMO 34 Les informations sur les risques auxquels ce bien est exposé sont disponibles sur le site Géorisques : www.georisques.gouv.fr. Annonce proposée et rédigée sous la responsabilité éditoriale de CROS Sylvia - [Coordonnées masquées] - [Coordonnées masquées] - RSAC N° 920 101 730 Ville du greffe : BEZIERS Réf 1603. DECLIC IMMO 34 Les informations sur les risques auxquels ce bien est exposé sont disponibles sur le site Géorisques : www.georisques.gouv.fr. Annonce proposée et rédigée sous la responsabilité éditoriale de CROS Sylvia - [Coordonnées masquées] - [Coordonnées masquées] - RSAC N° 920 101 730 Ville du greffe : BEZIERS Prix TTC et Honoraires à charge vendeur TTC
Voir plus

Référence: 1603
Honoraires à la charge du vendeur.
Barème des honoraires

Prêt immobilier

Vous souhaitez connaître votre capacité d’emprunt et trouver le meilleur crédit immobilier ?
Réaliser une simulation gratuite

Maison à PORTIRAGNES
Maison à PORTIRAGNES
Maison à PORTIRAGNES
Maison à PORTIRAGNES
Maison à PORTIRAGNES
Maison à PORTIRAGNES
Maison à PORTIRAGNES
Maison à PORTIRAGNES
Ce site est protégé par reCAPTCHA la Politique de confidentialité et les Conditions d’utilisation de Google s’appliquent.
Obtenir un prêt immobilier au meilleur taux ?

En poursuivant votre navigation sans modifier vos paramètres, vous acceptez l'utilisation de cookies susceptibles de réaliser des statistiques de visite. Cliquez ici pour plus d'informations