Bénéficiez des services de nos partenaires locaux soigneusement sélectionnés
pour vous accompagner dans votre parcours d'achat immobilier

Duplex de 5 pièces-103 m2 + terrasse 20 m2 bords de marne noisy-le-grand proche rer a

— Noisy-Le-Grand 93160 —
487 000 €
103 m²
5 pièces
parkingbalcon/terrasse

Nos partenaires locaux
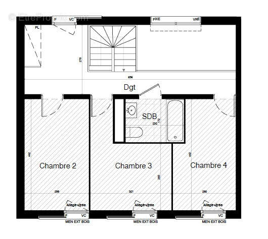
Découvrez ce superbe Duplex de 103 m2, niché au cœur de l’écoquartier de la Marne à Noisy-le-Grand, à seulement 20 minutes de Paris par le RER A
Bénéficiez d’un cadre de vie exceptionnel, entre nature et commodités urbaines, dans une résidence haut de gamme alliant confort, lumière et espaces généreux.
- Surface habitable de 103 m2 (127,64 m2 avec terrasse et balcon),
- 4 chambres spacieuses (dont une au rez-de-chaussée), vues dégagées sur le parc ou la Marne,
- Séjour-cuisine ouvert de 32 m2, avec un accès direct à une terrasse de 20 m2 et un balcon de 4 m2
- Salle de bain et salle d’eau contemporaines, WC indépendant, et nombreux rangements
 - Double exposition et larges baies vitrées pour une luminosité optimale toute la journée.
Un écoquartier d’exception :
Face à un parc de 6 hectares et aux berges de la Marne, ce bien est au cœur d’un cadre verdoyant, des espaces de détente, des jardins partagés et des équipements de proximité (commerces, crèche, restaurant).
Proche de toutes les commodités : gares RER A (Noisy-Champs, Noisy-le-Grand), centres commerciaux (Les Arcades), écoles, espaces culturels et sportifs.
Résidence sécurisée avec ascenseur, local à vélos, et parkings privatifs
Contactez-nous dès maintenant pour une visite ou plus d’informations 
Pas de Frais d’agence Frais de Notaires réduits
Voir plus

Barème des honoraires
DPE
A
B
C
D
E
F
G
GES
A
B
C
D
E
F
G

Prêt immobilier

Vous souhaitez connaître votre capacité d’emprunt et trouver le meilleur crédit immobilier ?
Réaliser une simulation gratuite

Appartement à NOISY-LE-GRAND
Appartement à NOISY-LE-GRAND
Appartement à NOISY-LE-GRAND
Appartement à NOISY-LE-GRAND
Appartement à NOISY-LE-GRAND
Ce site est protégé par reCAPTCHA la Politique de confidentialité et les Conditions d’utilisation de Google s’appliquent.
Obtenir un prêt immobilier au meilleur taux ?

En poursuivant votre navigation sans modifier vos paramètres, vous acceptez l'utilisation de cookies susceptibles de réaliser des statistiques de visite. Cliquez ici pour plus d'informations