Maison 215m² à bersee

— Bersee 59235 —
535 000 €
215 m² / 1 600 m²
7 pièces
balcon/terrasse

59235 BERSÉE - MAISON FAMILIALE 215 M² - 3 ESPACES DE VIE INDÉPENDANTS - VUE CAMPAGNE

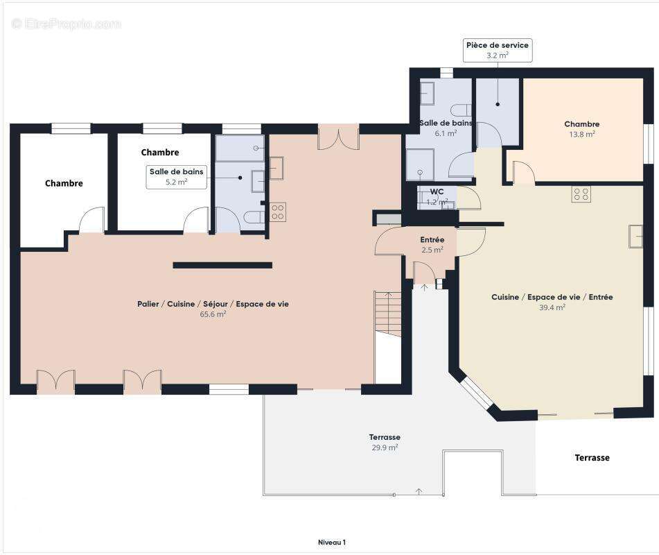
Efficity, l'agence qui estime votre bien en ligne, vous propose cette villa de 215 m² à Bersée, au calme absolu, avec vue imprenable sur les pâtures et une organisation unique en 3 espaces de vie distincts.

L'aile principale séduit par sa pièce de vie de 60 m², baignée de lumière, avec cuisine ouverte, salon et salle à manger, prolongée par une terrasse plein sud.
Deux premières chambres et une salle d'eau avec WC complètent ce niveau.

L'aile droite : un espace semi-indépendant avec salon cosy, coin cuisine, chambre, salle de bain et terrasse privative avec vue jardin.

Au niveau inférieur, l'aile du bas offre 2 chambres, une salle de bain/buanderie, un grand dressing et un atelier.

À l'extérieur : 1600 m² de jardin paysagé, cuisine d'été, terrain de pétanque, aire de jeux et vue dégagée sans vis-à-vis.
Garage et vaste zone de stationnement pour faciliter le quotidien.
Un agencement idéal pour les familles nombreuses, recomposées ou pour accueillir Papi ou Mamie.

Contactez-moi vite pour une visite !
.
Les informations sur les risques auxquels ce bien est exposé sont disponibles sur le site Georisque : georisques. gouv. fr
Hugo Liot - EI - est Agent Commercial mandataire en immobilier, immatriculé au Registre Spécial des Agents Commerciaux du Tribunal de Commerce de Valenciennes sous le n°841923865.
Siège social du mandant : effiCity, 48 avenue de Villiers - 75017 PARIS - Société par Actions Simplifiée, société au capital de 132 373,05 euros, immatriculée au RCS Paris 497 617 746 et titulaire de la Carte professionnelle CPI 75[Coordonnées masquées]02 025 - CCI Paris IDF - Caisse de Garantie : GALIAN Assurances 89 rue de la Boétie 75008 Paris
Voir plus

Référence: 200021
Honoraires à la charge du vendeur.
Barème des honoraires
DPE
A
B
C
D
E
F
G
GES
A
B
C
D
E
F
G

Prêt immobilier

Vous souhaitez connaître votre capacité d’emprunt et trouver le meilleur crédit immobilier ?
Réaliser une simulation gratuite

Maison à BERSEE
Maison à BERSEE
Maison à BERSEE
Maison à BERSEE
Maison à BERSEE
Maison à BERSEE
Maison à BERSEE
Maison à BERSEE
Maison à BERSEE
Maison à BERSEE
Maison à BERSEE
Maison à BERSEE
Maison à BERSEE
Maison à BERSEE
Maison à BERSEE
Maison à BERSEE
Maison à BERSEE
Maison à BERSEE
Maison à BERSEE
Maison à BERSEE
Ce site est protégé par reCAPTCHA la Politique de confidentialité et les Conditions d’utilisation de Google s’appliquent.
Obtenir un prêt immobilier au meilleur taux ?

En poursuivant votre navigation sans modifier vos paramètres, vous acceptez l'utilisation de cookies susceptibles de réaliser des statistiques de visite. Cliquez ici pour plus d'informations