Bénéficiez des services de nos partenaires locaux soigneusement sélectionnés
pour vous accompagner dans votre parcours d'achat immobilier

Magnifique propriété avec terrain, piscine/ poolhouse, dépendance à rognes 13840

— Rognes 13840 —
1 190 000 €
252 m² / 6 274 m²
8 pièces
parkingbalcon/terrassejardinpiscine

Nos partenaires locaux
Bienvenue chez Abriculteurs, l’agence familiale qui s’engage à un service d’exception. Découvrez une présentation soignée de ce bien et en avant première. Faites confiance à notre expertise pour transformer vos projets immobiliers en réussites remarquables.

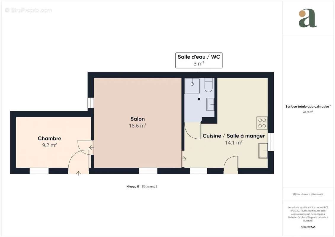
À Rognes, au cœur de la Provence, cette élégante propriété d’environ 252 m² habitables se niche dans le quartier prisé des Garrigues à Rognes.
Rénovée avec goût en 2016, la maison principale offre 207 m² de confort et de lumière, répartis sur deux niveaux. Les espaces de vie s’ouvrent sur de belles terrasses arborées : une cuisine équipée à l’américaine, un vaste salon baigné de lumière avec verrière et poêle à bois, une salle à manger sous plafond cathédrale et un salon TV avec cheminée créent une atmosphère conviviale et chaleureuse. Deux suites parentales avec salle de bain au rez-de-chaussée, des toilettes, un bureau et une buanderie complètent ce niveau.
À l’étage, une salle de jeux avec cheminée, deux chambres supplémentaires, une salle d’eau et un balcon prolongent harmonieusement l’ensemble.

Une maison d’hôtes indépendante d’environ 45 m² offre un cadre idéal pour recevoir famille et amis ou envisager une activité locative. Elle comprend un séjour, une cuisine, une chambre, une salle de douche avec toilettes, ainsi qu’une entrée et un jardin privatifs.

Les extérieurs invitent à la détente et à la convivialité : un terrain paysagé d’environ 6 200 m² abrite une piscine chauffée de 11x5 mètres, bordée d’une terrasse et d’un pool house, ainsi qu’un terrain de pétanque.
Les amoureux des chevaux apprécieront les installations équestres comprenant quatre boxes, un espace pour une carrière de 10x20 mètres, un atelier et une zone de 2 000 m² aménageable en paddock.
Lieux sécurisé, terrain entièrement clos, avec un portail électrique.
Un lieu rare où charme provençal, confort contemporain et nature s’unissent dans un cadre paisible et recherché.

Les + du bien :
- Rénovation faite avec gôut
- Terrain clôturé de plus de 6 200 m²
- Terrasses
- Piscine chauffée et poolhouse
- Terrain de pétanque
- Dépendance avec rentabilité locative
- Jacuzzi
- Salle de jeux
- Infrastructures pour les chevaux

À noter :
- Taxe foncière : 3 455€ / an
- Coût annuel du chauffage : 2 500€ / an
- Fosse septique ( à remettre aux normes)
- Consommation conventionnelle estimée (kWhEP/m2.an) : 87 (C)
- Estimation des émissions (kg CO2/m2.an) : 14 (C)
- Estimation des coûts annuels d'énergie : entre 1 500€ et 2 080€ /an
- Année de référence des prix : 2021, 2022, 2023


Prix de vente : 1 190 000 € TTC (Honoraires Abriculteurs à la charge du vendeur)

Ce bien a retenu votre intérêt ? Pour organiser la visite avec nous, rien de plus simple, prenez rendez-vous en ligne au moment qui vous convient le mieux.
Les informations sur les risques auxquels ce bien est exposé sont disponibles sur le site Géorisques : www.georisques.gouv.fr

Annonce rédigée sous la responsabilité éditoriale de Mme PEFFERT Laura , agent commercial (EI), immatriculé au RSAC de Salon-de-Provence sous le n° 904 617 404, sans détention de fonds, agissant pour le compte de la SARL Abriculteurs immobilier, au capital de 5 000 €, immatriculée sous le SIREN n° 837 704 584, titulaire de la carte professionnelle n° CPI 75[Coordonnées masquées]25 842 délivrée par la CCI de Paris Île-de-France, dont le représentant légal est M. Adrien Piot, ayant son siège social au 12 rue des Halles, 75001 Paris.
Voir plus

Référence: LPVM3183
Barème des honoraires
DPE
A
B
C
D
E
F
G
GES
A
B
C
D
E
F
G

Prêt immobilier

Vous souhaitez connaître votre capacité d’emprunt et trouver le meilleur crédit immobilier ?
Réaliser une simulation gratuite

Maison à ROGNES
Maison à ROGNES
Maison à ROGNES
Maison à ROGNES
Maison à ROGNES
Maison à ROGNES
Maison à ROGNES
Maison à ROGNES
Maison à ROGNES
Maison à ROGNES
Maison à ROGNES
Maison à ROGNES
Maison à ROGNES
Maison à ROGNES
Maison à ROGNES
Maison à ROGNES
Maison à ROGNES
Maison à ROGNES
Maison à ROGNES
Maison à ROGNES
Maison à ROGNES
Maison à ROGNES
Maison à ROGNES
Maison à ROGNES
Maison à ROGNES
Maison à ROGNES
Maison à ROGNES
Maison à ROGNES
Maison à ROGNES
Maison à ROGNES
Maison à ROGNES
Maison à ROGNES
Maison à ROGNES
Maison à ROGNES
Maison à ROGNES
Maison à ROGNES
Maison à ROGNES
Maison à ROGNES
Maison à ROGNES
Maison à ROGNES
Maison à ROGNES
Maison à ROGNES
Maison à ROGNES
Maison à ROGNES
Ce site est protégé par reCAPTCHA la Politique de confidentialité et les Conditions d’utilisation de Google s’appliquent.
Obtenir un prêt immobilier au meilleur taux ?

En poursuivant votre navigation sans modifier vos paramètres, vous acceptez l'utilisation de cookies susceptibles de réaliser des statistiques de visite. Cliquez ici pour plus d'informations