Bénéficiez des services de nos partenaires locaux soigneusement sélectionnés
pour vous accompagner dans votre parcours d'achat immobilier

Maison 95m² à lhommaize

— Lhommaize 86410 —
225 000 €
95 m² / 15 000 m²
3 pièces
jardin

Nos partenaires locaux
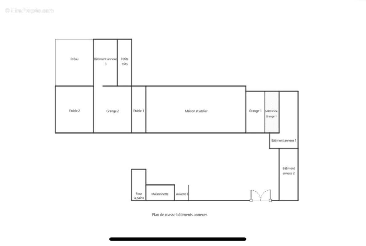
Exceptionnel, grand corps de ferme en pierres sur un vaste terrain paysager avec verger comprenant une habitation neuve 95 m² construite dans les règles de l'art
Reste à faire sanitaires, revêtements de sol, peinture
maisonnette avec four à pains, caves, étables, granges (hauteur sous faîtage 6.50) hangar, greniers et quelques toits à cochons
Couverture neuve (640 m²)
L'habitation possède la climatisation réversible dans les pièces de vie, Cuisine et Chambre
Menuiseries extérieures en aluminium fournies et store banne électrique
Pac air / air réversible programmable type spilt
Assainissement individuel à revoir
Permis de construire (ferme pédagogique) établi par un architecte, accepté en 2021
Diagnostic du 20 / 01 / 25 classe C / E
Coût énergétique annuel 950 / 1340 ¤
A l'entrée de la commune de Lhommaizé, 5' de Civaux, Centre aquatique, île aux crocodiles et Defiplanet
20' du CHU, Université Poitiers et 30' Futuroscope, Gare TGV
Taxe foncière 460¤
Devis à disposition
N'hésitez pas à me joindre 7 / 7 de 8h à 20h
Rendez-vous visite possible 7 / 7 de 9h à 18h

Les informations sur les risques auxquels ce bien est exposé sont disponibles sur le site Géorisques : www.georisques.gouv.fr
Prix de vente : 225 000 ¤
Honoraires charge vendeur

Contactez votre conseiller SAFTI : Patrick FOUCAULT, Tél. : [Coordonnées masquées], E-mail : [Coordonnées masquées] - EI - Agent commercial immatriculé au RSAC de La Rochelle sous le numéro 890 205 461.
Informations LOI ALUR :
Honoraires charge vendeur. (gedeon_26118_32228030)
Voir plus

Référence: 1443017
Honoraires à la charge du vendeur.
Barème des honoraires
DPE
A
B
C
D
E
F
G
GES
A
B
C
D
E
F
G

Prêt immobilier

Vous souhaitez connaître votre capacité d’emprunt et trouver le meilleur crédit immobilier ?
Réaliser une simulation gratuite

Photo 1 - Maison à LHOMMAIZE
Photo 1
Photo 2 - Maison à LHOMMAIZE
Photo 2
Photo 3 - Maison à LHOMMAIZE
Photo 3
Photo 4 - Maison à LHOMMAIZE
Photo 4
Photo 5 - Maison à LHOMMAIZE
Photo 5
Photo 6 - Maison à LHOMMAIZE
Photo 6
Photo 7 - Maison à LHOMMAIZE
Photo 7
Photo 8 - Maison à LHOMMAIZE
Photo 8
Photo 9 - Maison à LHOMMAIZE
Photo 9
Ce site est protégé par reCAPTCHA la Politique de confidentialité et les Conditions d’utilisation de Google s’appliquent.
Obtenir un prêt immobilier au meilleur taux ?

En poursuivant votre navigation sans modifier vos paramètres, vous acceptez l'utilisation de cookies susceptibles de réaliser des statistiques de visite. Cliquez ici pour plus d'informations