Bénéficiez des services de nos partenaires locaux soigneusement sélectionnés
pour vous accompagner dans votre parcours d'achat immobilier

Maison 150m² à cahagnes

— Cahagnes 14240 —
286 000 €
150 m²
8 pièces
jardin

Nos partenaires locaux
Nouveau bien en vente chez UNI IMMOBILIER !

Maison T7 de 150 m² sur un terrain de 900 m².

Localisation : CAHAGNES – à 5 min de l'A84

Les points forts du bien :

• Maison avec beaucoup de charme
• Extérieur très agréable
• 4 chambres
• À 5 minutes de l'A84

Ce bien se compose comme suit :

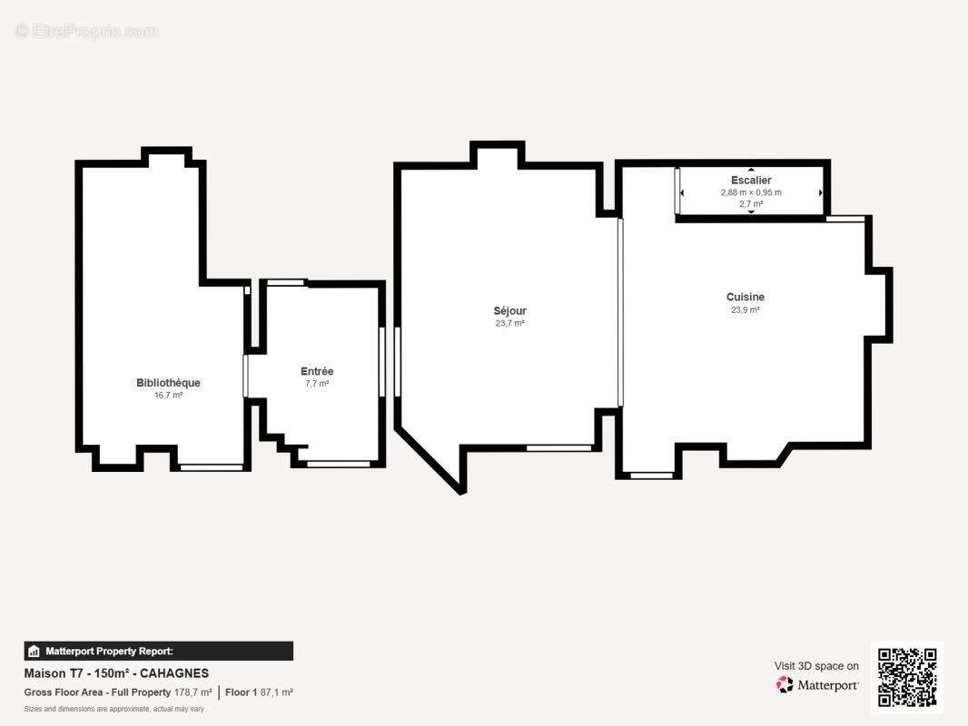
Rez-de-chaussée :
• 1 grand séjour / salle à manger
• 1 cuisine aménagée ouverte sur la salle à manger
• 1 salle d'eau
• 1 WC

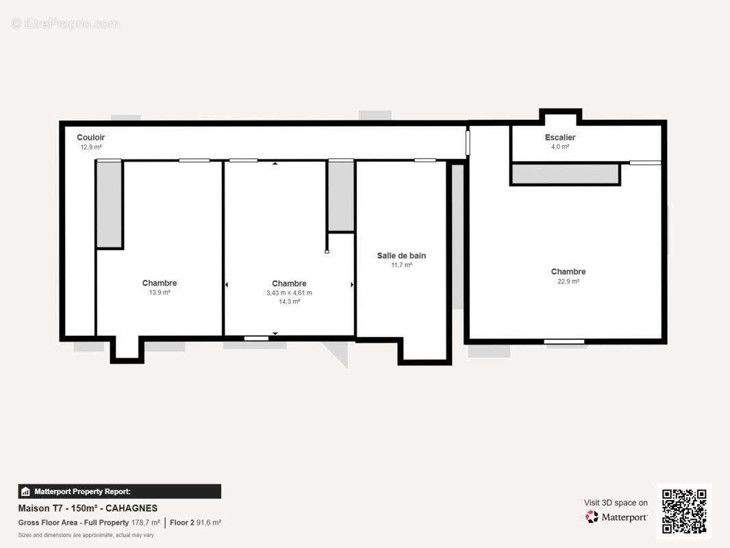
1er étage :
• 3 chambres
• 1 salle de bain avec baignoire et douche
• 1 WC

2nd étage :
• 1 grande pièce à aménager

Un atelier et un espace de stockage complètent ce bien.

Huisseries : double vitrage PVC
Type de chauffage : poêle à bois
DPE : D (187) – GES : A (5)
Estimation du coût annuel d'énergie du logement : entre 2 450 et 3 340 euros
Taxe foncière : 659 €

Prix : 288 500 € HAI
(6,8 % TTC d'honoraires à la charge de l'acquéreur, soit 270 000 € hors honoraires)

Les informations sur les risques auxquels ce bien est exposé sont disponibles sur le site Géorisques : www.georisques.gouv.fr

Visite virtuelle : https://my.matterport.com/show/?m=yUodZphFL95
Site internet : www.uni-immobilier.fr

Contact direct :
Maxime LAMBERT – [Coordonnées masquées]
[Coordonnées masquées]

Cette annonce a été rédigée par l'agence immobilière UNI (SIRET : 9[Coordonnées masquées]011) et par Maxime LAMBERT, mandataire indépendant en immobilier, agent commercial de l'agence UNI (Immatriculation au RCS : 829 462 480 R.C.S. CAEN).
Voir plus

Référence: 7276966
DPE
A
B
C
D
E
F
G
GES
A
B
C
D
E
F
G

Prêt immobilier

Vous souhaitez connaître votre capacité d’emprunt et trouver le meilleur crédit immobilier ?
Réaliser une simulation gratuite

Maison à CAHAGNES
Maison à CAHAGNES
Maison à CAHAGNES
Maison à CAHAGNES
Maison à CAHAGNES
Maison à CAHAGNES
Maison à CAHAGNES
Maison à CAHAGNES
Maison à CAHAGNES
Maison à CAHAGNES
Maison à CAHAGNES
Maison à CAHAGNES
Maison à CAHAGNES
Maison à CAHAGNES
Maison à CAHAGNES
Maison à CAHAGNES
Maison à CAHAGNES
Ce site est protégé par reCAPTCHA la Politique de confidentialité et les Conditions d’utilisation de Google s’appliquent.
Obtenir un prêt immobilier au meilleur taux ?

En poursuivant votre navigation sans modifier vos paramètres, vous acceptez l'utilisation de cookies susceptibles de réaliser des statistiques de visite. Cliquez ici pour plus d'informations