Maison 160m² à estoublon

— Estoublon 04270 —
315 500 €
160 m² / 1 169 m²
5 pièces
parking

04270 ESTOUBLON – MAISON TRAVERSANTE 5 PIÈCES SANS VIS-À-VIS - 4 CHAMBRES - POSSIBILITÉ DE CRÉER DEUX LOGEMENTS, JARDIN - GARAGE - ATELIER - CUISINE D'ÉTÉ – EXPOSITION SUD-EST

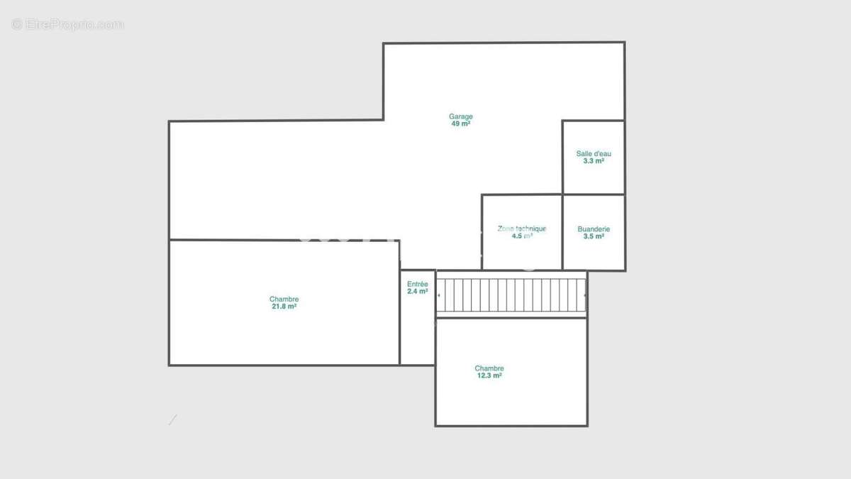
effiCity vous présente cette maison individuelle traversante d'environ 156 m², édifiée sur une parcelle d'environ 1169 m², orientée sud-est et parfaitement préservée de tout vis-à-vis.

Le rez-de-chaussée comprend deux chambres dont une d'environ 22 m², une salle d'eau avec WC, une cuisine séparée, une buanderie, ainsi qu'un garage d'environ 24 m², un atelier d'environ 25 m² et une grande cuisine d'été d'environ 30 m² équipée d'un bar et d'un four à pizza.
À l'étage, le séjour lumineux d'environ 44 m² avec cheminée donne accès à un balcon-terrasse couvert. La cuisine ouverte aménagée et équipée d'environ 14 m² ouvre elle aussi sur le balcon-terrasse. Ce niveau propose également deux chambres d'environ 8,5 m² et 13 m², ainsi qu'une salle de bain d'environ 5 m² et un WC séparé.

Cette maison en grande partie rénovée présente un potentiel rare : possibilité de diviser en deux appartements indépendants ou d'y installer une activité médicale, paramédicale ou libérale. Le jardin clos et arboré, les nombreuses annexes et les nombreuses places de stationnement renforcent son attractivité.

ATTRACTIVITÉ : GARAGE AVEC PORTE AUTOMATIQUE. ATELIER. JARDIN CLOTURÉ ET ARBORÉ. CUISINE D'ÉTÉ. NOMBREUSES PLACES DE STATIONNEMENT. VOLETS BOIS. NOMBREUX PLACARDS DE RANGEMENT.

TAXE FONCIÈRE : 1700 €
Les informations sur les risques auxquels ce bien est exposé sont disponibles sur le site Georisque : georisques. gouv. fr
Corinne Hanin - EI - est Agent Commercial mandataire en immobilier, immatriculé au Registre Spécial des Agents Commerciaux du Tribunal de Commerce de Manosque sous le n°919291351.
Siège social du mandant : effiCity, 48 avenue de Villiers - 75017 PARIS - Société par Actions Simplifiée, société au capital de 132 373,05 euros, immatriculée au RCS Paris 497 617 746 et titulaire de la Carte professionnelle CPI 75[Coordonnées masquées]02 025 - CCI Paris IDF - Caisse de Garantie : GALIAN Assurances 89 rue de la Boétie 75008 Paris
Voir plus

Référence: 199623
Honoraires à la charge du vendeur.
Barème des honoraires
DPE
A
B
C
D
E
F
G
GES
A
B
C
D
E
F
G

Prêt immobilier

Vous souhaitez connaître votre capacité d’emprunt et trouver le meilleur crédit immobilier ?
Réaliser une simulation gratuite

Maison à ESTOUBLON
Maison à ESTOUBLON
Maison à ESTOUBLON
Maison à ESTOUBLON
Maison à ESTOUBLON
Maison à ESTOUBLON
Maison à ESTOUBLON
Maison à ESTOUBLON
Maison à ESTOUBLON
Maison à ESTOUBLON
Maison à ESTOUBLON
Ce site est protégé par reCAPTCHA la Politique de confidentialité et les Conditions d’utilisation de Google s’appliquent.
Obtenir un prêt immobilier au meilleur taux ?

En poursuivant votre navigation sans modifier vos paramètres, vous acceptez l'utilisation de cookies susceptibles de réaliser des statistiques de visite. Cliquez ici pour plus d'informations