Bénéficiez des services de nos partenaires locaux soigneusement sélectionnés
pour vous accompagner dans votre parcours d'achat immobilier

Vente duplex t3 _ coulommiers

— Coulommiers 77120 —
149 060 €
78 m²
3 pièces

Nos partenaires locaux
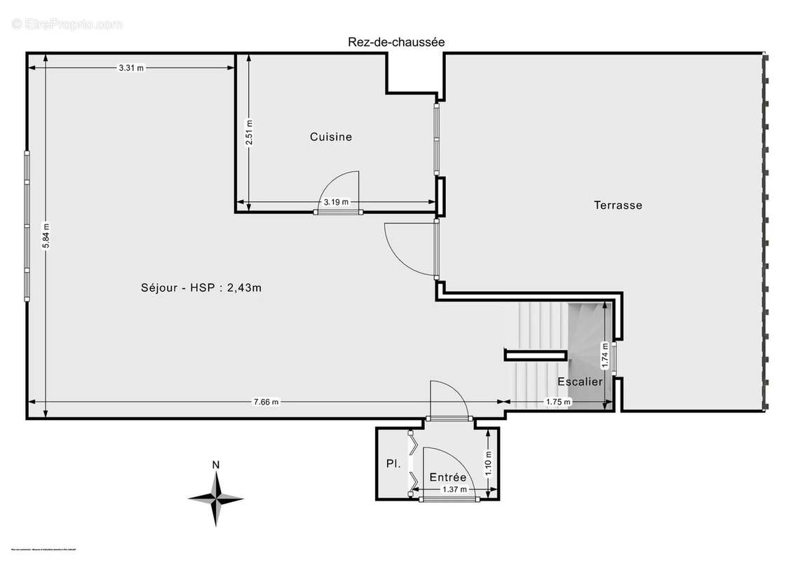
Laissez-vous charmer par ce duplex lumineux et généreux, perché aux 3ᵉ et 4ᵉ étages d’une résidence paisible. Ses 78,1 m² idéalement répartis offrent un véritable confort de vie au quotidien.

Dès l’entrée, vous serez charmé par le séjour baigné de lumière, offrant de beaux volumes pour vos moments de détente ou de réception. La cuisine, pratique et facilement aménageable, complète idéalement l’espace de vie.

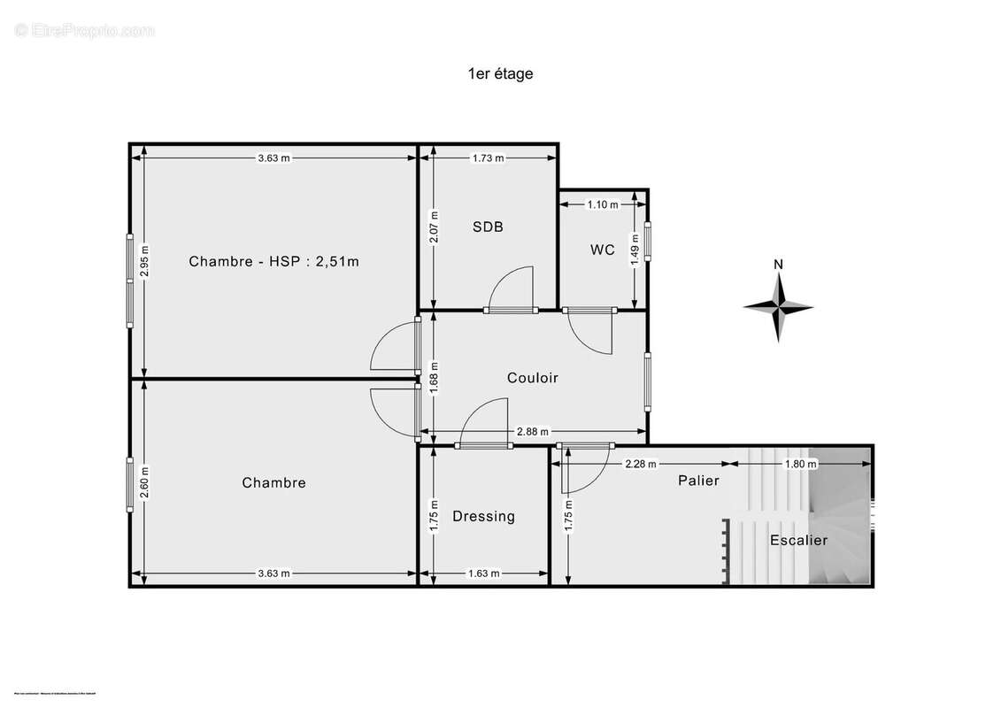
À l’étage, vous trouverez deux chambres généreuses, une salle de bains, un WC séparé, ainsi que plusieurs espaces de rangement très appréciables.

Le véritable atout de ce duplex ?

Une magnifique terrasse sans vis-à-vis, un véritable havre de paix en extérieur, idéal pour profiter du calme ou partager des moments conviviaux en toute intimité.

Situé à seulement 8 minutes de la gare Ligne P – Coulommiers, vous profitez d’un emplacement stratégique, combinant tranquillité, confort et proximité des commodités : commerces, écoles, services…

Un stationnement privatif en sous-sol vient compléter ce bien, un véritable atout dans le secteur.

BON PLAN : FRAIS DE NOTAIRE RÉDUITS à 3,5 % au lieu de 8 % !

Un duplex fonctionnel, spacieux et doté d’un bel extérieur – une opportunité à saisir sans tarder !

Copropriété de 150 lots principaux
Absence de procédure en cours
Quote-part annuelle des charges courantes prévisionnelles 2024 : 2 500 € / an
Estimation de la taxe foncière 2023 : 1 300 €
DPE : E
Chauffage et production d’eau chaude : Collectif Gaz

*Mentions légales :
Immobilière 3F - 159 rue Nationale - 75638 Paris Cedex - RCS : 13. 552 141 533

Honoraires à la charge du vendeur et Frais de notaire à la charge de l'acquéreur.

MODALITES DE VISITES ET DE REMISE DES OFFRES D’ACHAT Visites sur rendez-vous, renseignements et dépôt des candidatures avec dossier complet en contactant :

Pour toute information, contactez le [Coordonnées masquées].

Conformément à l'article l.561-5 du code monétaire et financier, la copie de la pièce d'identité de tous les visiteurs sera demandée avant la visite. Nous vous remercions de faciliter cette démarche à votre conseiller.

Conformément à l’article R123-237 du code de commerce :

Trans’Actif Immobilier SAS

24 rue de Paradis-75 010 PARIS

N°SIRET 514 367 978 00046 - RCS Paris

Conformément à l’article 94 du décret n°72-678 du 20 juillet 1972 « l’agence ne doit recevoir ni détenir d’autres fonds, effets ou valeurs que ceux représentatifs de sa rémunération ou de ses honoraires ».

Prix et conditions soumis à ressources selon l'article L443-11 et suivants du CCH.

Délais de remise des offres : Au plus tard 1 mois à compter de la date de parution de la dernière
publicité légale.

Modalités de remise des offres : Par mail, remise en mains propres ou par tout autre moyen.

Les informations sur les risques auxquels ce bien est exposé sont disponibles sur le site Géorisques : www.georisques.gouv.fr
Voir plus

Référence: 8174L-0043 - JAS
DPE
A
B
C
D
E
F
G
GES
A
B
C
D
E
F
G

Prêt immobilier

Vous souhaitez connaître votre capacité d’emprunt et trouver le meilleur crédit immobilier ?
Réaliser une simulation gratuite

Appartement à COULOMMIERS
Appartement à COULOMMIERS
Appartement à COULOMMIERS
Appartement à COULOMMIERS
Appartement à COULOMMIERS
Appartement à COULOMMIERS
Appartement à COULOMMIERS
Appartement à COULOMMIERS
Appartement à COULOMMIERS
Appartement à COULOMMIERS
Appartement à COULOMMIERS
Appartement à COULOMMIERS
Appartement à COULOMMIERS
Appartement à COULOMMIERS
Appartement à COULOMMIERS
Appartement à COULOMMIERS
Appartement à COULOMMIERS
Appartement à COULOMMIERS
Ce site est protégé par reCAPTCHA la Politique de confidentialité et les Conditions d’utilisation de Google s’appliquent.
Obtenir un prêt immobilier au meilleur taux ?

En poursuivant votre navigation sans modifier vos paramètres, vous acceptez l'utilisation de cookies susceptibles de réaliser des statistiques de visite. Cliquez ici pour plus d'informations