Bénéficiez des services de nos partenaires locaux soigneusement sélectionnés
pour vous accompagner dans votre parcours d'achat immobilier

Beau projet de rénovation

— Nouvoitou 35410 —
139 360 €
155 m² / 1 325 m²
6 pièces
parkingjardin

Nos partenaires locaux
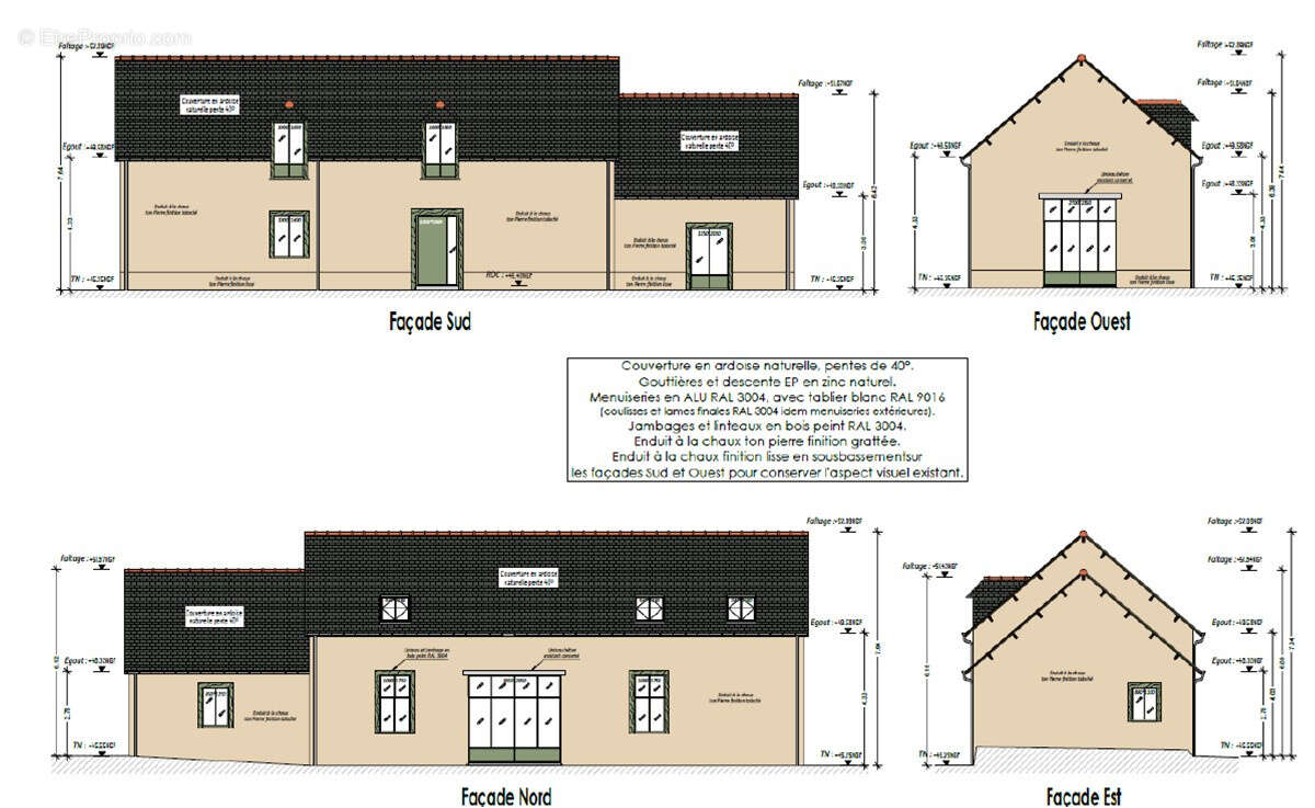
VERN SUR SEICHE : Entre Nouvoitou et Vern-sur Seiche, très beau projet de rénovation pour cette maison indépendante ancienne en pierres et terres. Permis de construire accepté pour une maison de 155 m2 habitables. Un préau à rénover sur la parcelle pouvant faire office de garage. Les réseaux de viabilisation sont en attente au bord du terrain. L'ensemble sur une parcelle d'environ 1325 m2.
Bien non soumis au DPE.
Prix : 134 000 € + 5360 € (Honoraire 4 % TTC à la charge de l'acquéreur).
Pour tous renseignements, merci de contacter C'TOUTAIN & A'LAVENNE Immobilier au [Coordonnées masquées] ou [Coordonnées masquées]
Voir plus

Référence: 160
Honoraires d'agence de 4% à la charge de l'acquéreur

Prêt immobilier

Vous souhaitez connaître votre capacité d’emprunt et trouver le meilleur crédit immobilier ?
Réaliser une simulation gratuite

Maison à NOUVOITOU
Maison à NOUVOITOU
Maison à NOUVOITOU
Maison à NOUVOITOU
Maison à NOUVOITOU
Maison à NOUVOITOU
Maison à NOUVOITOU
Maison à NOUVOITOU
Maison à NOUVOITOU
Ce site est protégé par reCAPTCHA la Politique de confidentialité et les Conditions d’utilisation de Google s’appliquent.
Obtenir un prêt immobilier au meilleur taux ?

En poursuivant votre navigation sans modifier vos paramètres, vous acceptez l'utilisation de cookies susceptibles de réaliser des statistiques de visite. Cliquez ici pour plus d'informations