Bénéficiez des services de nos partenaires locaux soigneusement sélectionnés
pour vous accompagner dans votre parcours d'achat immobilier

Maison d'architecte avec de beaux volumes - bécon courbevoie -

— Courbevoie 92400 —
1 950 000 €
262 m² / 354 m²
8 pièces
parking

Nos partenaires locaux
l Caroline BRETON l Conseillère en immobilier - Capifrance l

Située au cœur du quartier Bécon, cette maison d'architecte de 260 m² offre un cadre de vie rare, à l'abri des regards.

Ici, on ne propose pas du mètre carré — on propose un art de vivre, un style où chaque espace a été pensé avec exigence, pour conjuguer lumière, volume, intimité et confort.

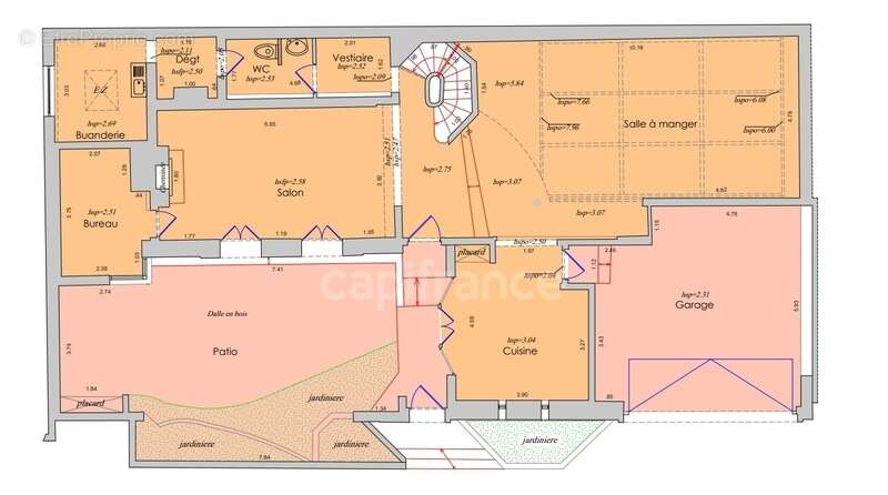
Élevée sur trois niveaux, la maison offre au rez-de-chaussée une entrée, un vaste séjour sous verrière zénithale, une cuisine dinatoire, un salon avec cheminée, un bureau, un dressing, une buanderie, un cabinet de toilette et un rooftop végétalisé de 58 m², véritable pièce à vivre extérieure.

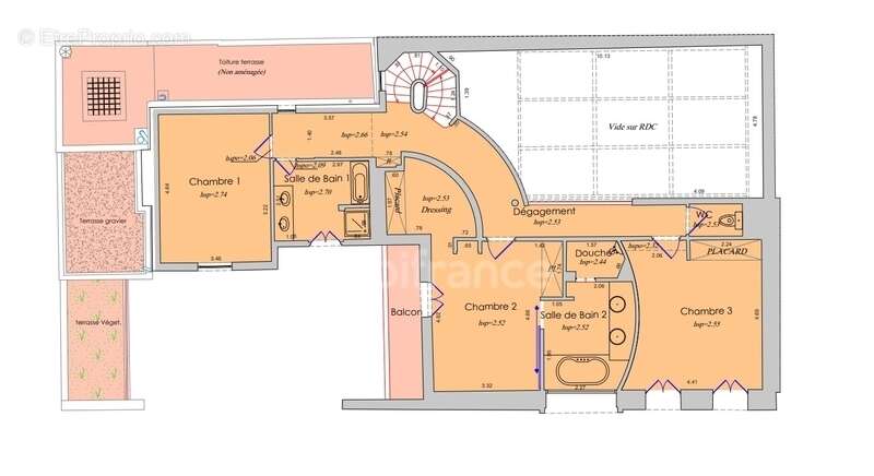
Au premier étage, une coursive distribue une élégante suite parentale (chambre, dressing, salle de bain avec douche et balcon), deux chambres, une salle de bain indépendante et des toilettes séparées.

Le deuxième étage accueille une quatrième chambre, un bureau, un débarras ainsi qu'un jardin avec grande terrasse de 67 m², offrant une vue dégagée et un bel espace de détente.

Le sous-sol partiel comprend une cave à vin et un dressing.

Un escalier remarquable, une circulation fluide et une véritable signature architecturale font de cette maison un bien unique. L'ensemble est en bon état général et un rafraîchissement classique pourra être envisagé pour permettre aux futurs propriétaires d'y affirmer leur propre style.

Les +++
- Grands espaces de vie
- Garage pour deux véhicules
- Terrasse à l'abri des regards

Bon à savoir :
- Chauffage gaz
- Gare de Bécon
- Proximité immédiate des commerces, des écoles Armand Silvestre, Montalembert
.
.
Les honoraires sont à la charge du vendeur.
Les informations sur les risques auxquels ce bien est exposé sont disponibles sur le site Géorisques : www. georisques. gouv. fr.

Réseau Immobilier CAPIFRANCE - Votre agent commercial (RSAC N°847 902 012 - Greffe de NANTERRE) Caroline BRETON Entrepreneur Individuel [Coordonnées masquées] - Réf.923057
Voir plus

Référence: 340931334303
Honoraires à la charge du vendeur.
DPE
A
B
C
D
E
F
G
GES
A
B
C
D
E
F
G

Prêt immobilier

Vous souhaitez connaître votre capacité d’emprunt et trouver le meilleur crédit immobilier ?
Réaliser une simulation gratuite

Maison à COURBEVOIE
Maison à COURBEVOIE
Maison à COURBEVOIE
Maison à COURBEVOIE
Maison à COURBEVOIE
Maison à COURBEVOIE
Maison à COURBEVOIE
Maison à COURBEVOIE
Maison à COURBEVOIE
Maison à COURBEVOIE
Maison à COURBEVOIE
Maison à COURBEVOIE
Maison à COURBEVOIE
Maison à COURBEVOIE
Maison à COURBEVOIE
Maison à COURBEVOIE
Maison à COURBEVOIE
Maison à COURBEVOIE
Maison à COURBEVOIE
Maison à COURBEVOIE
Maison à COURBEVOIE
Maison à COURBEVOIE
Ce site est protégé par reCAPTCHA la Politique de confidentialité et les Conditions d’utilisation de Google s’appliquent.
Obtenir un prêt immobilier au meilleur taux ?

En poursuivant votre navigation sans modifier vos paramètres, vous acceptez l'utilisation de cookies susceptibles de réaliser des statistiques de visite. Cliquez ici pour plus d'informations