Bénéficiez des services de nos partenaires locaux soigneusement sélectionnés
pour vous accompagner dans votre parcours d'achat immobilier

Appartement 62m² à villeurbanne

— Villeurbanne 69100 —
260 000 €
62 m²
3 pièces
parkingascenseur

Nos partenaires locaux
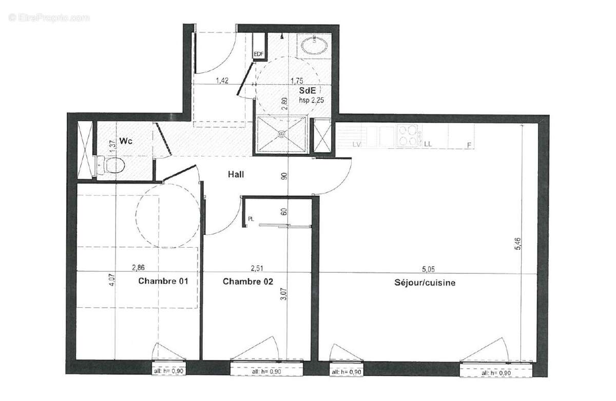
PLACE WILSON – Dans une résidence BBC de haut standing (2016), au 5ème étage avec ascenseur, découvrez un lumineux T3 de 62m², récent, fonctionnel et parfaitement entretenu.

À proximité immédiate du métro Charpennes, des tramways T1 et T4 (accès direct gare SNCF Part-Dieu) ainsi que du futur T6 prévu pour 2026, vous profiterez d’une excellente desserte. Les écoles, collèges, l’université Claude Bernard, le prestigieux Parc de la Tête d’Or et les grands axes routiers sont rapidement accessibles. Le quartier offre également un marché trois fois par semaine et de nombreux commerces de proximité, pour une vie quotidienne simple et agréable.

APPARTEMENT :
- Hall d’entrée confortable desservant l’ensemble des pièces
- Séjour de 27 m², exposé sud-est, avec cuisine américaine entièrement équipée
- Deux chambres cosy en parquet, dont une avec placards aménagés
- Salle d’eau contemporaine avec douche à l’italienne et emplacement lave-linge
- WC séparés aux normes PMR
- Fenêtres double vitrage et volets roulants électriques
- Excellent DPE : classé B

Local à vélos sécurisé au sein de la résidence.
Possibilité d’acquérir un garage en sous-sol.

Bien soumis au statut de la copropriété. Honoraires d'agence à la charge du vendeur.
Contactez l'agence SALENGRO IMMO (13 Place Wilson 69100 Villeurbanne) au [Coordonnées masquées].



- Montant estimé des dépenses annuelles d'énergie pour un usage standard : Entre 370 Euros et 540 Euros par an. Prix moyens des énergies indexés au 1er janvier NC (abonnement compris)
Voir plus

Référence: 2636A
Bien en copropriété.
Honoraires à la charge du vendeur.
DPE
A
B
C
D
E
F
G
GES
A
B
C
D
E
F
G

Prêt immobilier

Vous souhaitez connaître votre capacité d’emprunt et trouver le meilleur crédit immobilier ?
Réaliser une simulation gratuite

Appartement à VILLEURBANNE
Appartement à VILLEURBANNE
Appartement à VILLEURBANNE
Appartement à VILLEURBANNE
Appartement à VILLEURBANNE
Appartement à VILLEURBANNE
Appartement à VILLEURBANNE
Appartement à VILLEURBANNE
Appartement à VILLEURBANNE
Appartement à VILLEURBANNE
Ce site est protégé par reCAPTCHA la Politique de confidentialité et les Conditions d’utilisation de Google s’appliquent.
Obtenir un prêt immobilier au meilleur taux ?

En poursuivant votre navigation sans modifier vos paramètres, vous acceptez l'utilisation de cookies susceptibles de réaliser des statistiques de visite. Cliquez ici pour plus d'informations