Bénéficiez des services de nos partenaires locaux soigneusement sélectionnés
pour vous accompagner dans votre parcours d'achat immobilier

Appartement 3 pièces + cave et parking -bois-colombes centre

— Bois-Colombes 92270 —
472 500 €
75 m²
3 pièces
balcon/terrasseascenseur

Nos partenaires locaux
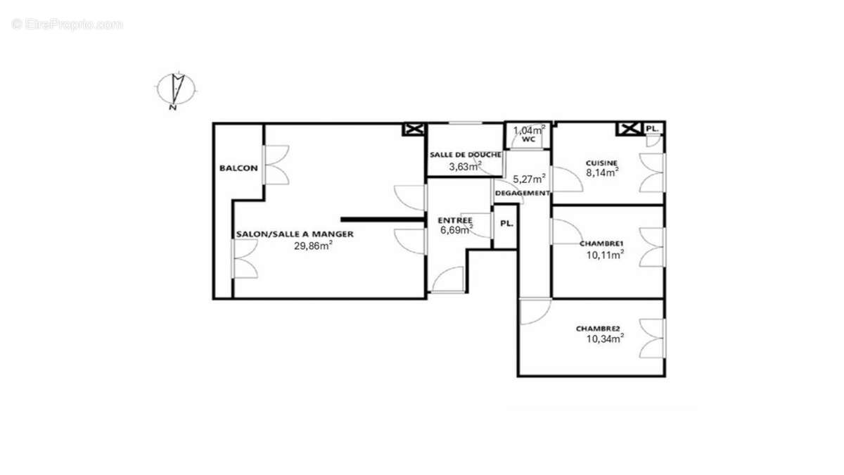
Situé à Bois-Colombes gare, découvrez ce charmant appartement avec travaux à prévoir et traversant de 75,08 m² situé au troisième étage sur cinq avec ascenseur d'un immeuble exposé Sud Est/Nord Ouest et idéalement placé, à seulement 2 minutes à pied de la gare de Bois-Colombes. Celle-ci permet de rejoindre Paris Saint-Lazare en moins de 10 minutes grâce au transilien ligne J, faisant de ce bien une adresse parfaite pour les actifs en quête d'un quotidien pratique tout en profitant d'un cadre paisible.

L'appartement A RENOVER se distingue par sa belle luminosité et son caractère traversant. L'appartement se comporte d'une entrée de 6,69m², un vaste salon/salle à manger de 29,86m² offrant un espace de vie rare dans le secteur, propice à la détente comme à la réception, une cuisine de 8,14m², indépendante, s'intègre parfaitement à l'organisation du lieu. Deux chambres de 10,11m² et 10,34m² (possibilité de 3ème chambre) complètent l'espace nuit, accompagnées d'une salle de douche de 3,63 et de WC séparés. L'ensemble bénéficie d'un agencement cohérent et d'un dégagement fonctionnel permettant une circulation fluide.

Situé dans le quartier recherché de la Gare de Bois-Colombes et de l'église Notre Dame de Bon Secours, l'appartement offre un environnement calme tout en étant proche des commerces, et des transports. Sa luminosité, la taille généreuse du séjour et son exposition traversante constituent de véritables atouts au quotidien.

Pour parfaire ce bien, une cave en sous-sol ainsi qu'une place de parking extérieur sont inclus, apportant un confort supplémentaire très apprécié en centre-ville.

Une belle opportunité à saisir sans tarder.

Double vitrage
DPE : D

Chauffage : Collectif au gaz par chaudière
Eau chaude : Collective au gaz par chaudière
Taxe foncière : 1321 €
Charges de copropriété : 100 €/mois
Nombre de lots : 37
Pas de procédure en cours.
Travaux à prévoir dans l'appartement : budget estimé à 80 000 euros environ

Honoraires d'agence à la charge acquéreur : 22 500 € (5%) inclus dans le prix de vente de 472 500 euros. Montant estimé des dépenses annuelles d'énergie pour un usage standard, établi à partir des prix de l'énergie des 2021, 2022, 2023 : 1 250 € ~ 1 730 € - RCS 78989753500025 - Caisse de garantie SOCAF Gestion 220000 EUR - Caisse de garantie SOCAF Transaction 120000 EUR. - Les informations sur les risques auxquels ce bien est exposé sont disponibles sur le site Géorisques : www.georisques.gouv.fr
Voir plus

Référence: 7285448
Bien en copropriété. Nombre de lots : 37. Charges de copropriété : 100 €.
DPE
A
B
C
D
E
F
G
GES
A
B
C
D
E
F
G

Prêt immobilier

Vous souhaitez connaître votre capacité d’emprunt et trouver le meilleur crédit immobilier ?
Réaliser une simulation gratuite

Appartement à BOIS-COLOMBES
Appartement à BOIS-COLOMBES
Appartement à BOIS-COLOMBES
Appartement à BOIS-COLOMBES
Appartement à BOIS-COLOMBES
Appartement à BOIS-COLOMBES
Appartement à BOIS-COLOMBES
Appartement à BOIS-COLOMBES
Appartement à BOIS-COLOMBES
Appartement à BOIS-COLOMBES
Appartement à BOIS-COLOMBES
Appartement à BOIS-COLOMBES
Ce site est protégé par reCAPTCHA la Politique de confidentialité et les Conditions d’utilisation de Google s’appliquent.
Obtenir un prêt immobilier au meilleur taux ?

En poursuivant votre navigation sans modifier vos paramètres, vous acceptez l'utilisation de cookies susceptibles de réaliser des statistiques de visite. Cliquez ici pour plus d'informations