Bénéficiez des services de nos partenaires locaux soigneusement sélectionnés
pour vous accompagner dans votre parcours d'achat immobilier

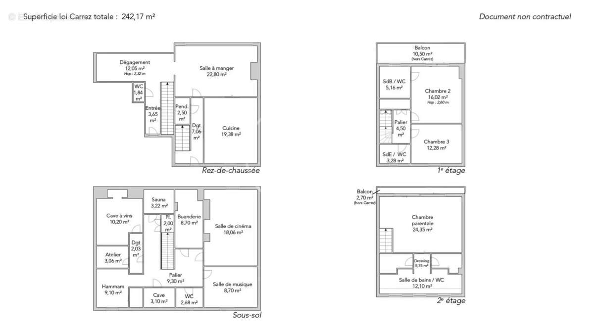
Neuilly-sur-seine - pasteur - maison à vendre - 242,177m² carrez - 4 chambres - jardin 83m² - terrasse 14,55m² - 2 balcons 10,5

— Neuilly-Sur-Seine 92200 —
5 100 000 €
242 m² / 83 m²
6 pièces
parkingbalcon/terrassejardin

Nos partenaires locaux
Située dans une voie privée au cœur de Neuilly.

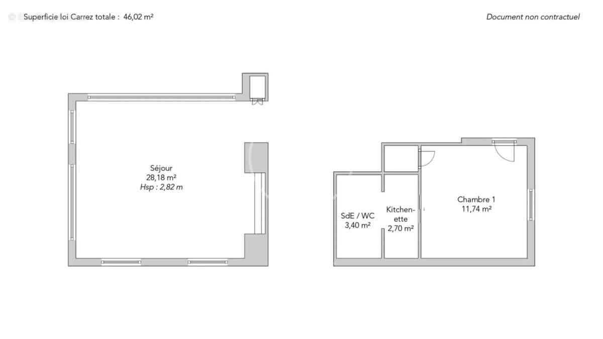
À l’abri des regards, cette maison de 242,17m² loi Carrez rénovée bénéficie d'un superbe jardin paysager de 83m2. Sur quatre niveaux, elle comprend une entrée, une cuisine dînatoire, un salon et une salle à manger donnant sur le jardin, une suite parentale avec salle de bains, deux chambres avec salle d’eau, une salle de cinéma, un hammam, un sauna, un studio de musique, une cave à vin, un atelier de bricolage et un studio indépendant avec cuisine et salle de douche.

Calme absolu, confort et élégance des rénovations inspirées par l'architecte Claire Bataille et le paysagiste Wirtz.

Possibilité de stationner dans la voie privée.
Sectorisation collège et lycée Pasteur.
Voir plus

Référence: 821JFPILL
Barème des honoraires
DPE
A
B
C
D
E
F
G
GES
A
B
C
D
E
F
G

Prêt immobilier

Vous souhaitez connaître votre capacité d’emprunt et trouver le meilleur crédit immobilier ?
Réaliser une simulation gratuite

Maison à NEUILLY-SUR-SEINE
Maison à NEUILLY-SUR-SEINE
Maison à NEUILLY-SUR-SEINE
Maison à NEUILLY-SUR-SEINE
Maison à NEUILLY-SUR-SEINE
Maison à NEUILLY-SUR-SEINE
Maison à NEUILLY-SUR-SEINE
Maison à NEUILLY-SUR-SEINE
Maison à NEUILLY-SUR-SEINE
Maison à NEUILLY-SUR-SEINE
Maison à NEUILLY-SUR-SEINE
Maison à NEUILLY-SUR-SEINE
Maison à NEUILLY-SUR-SEINE
Maison à NEUILLY-SUR-SEINE
Maison à NEUILLY-SUR-SEINE
Maison à NEUILLY-SUR-SEINE
Maison à NEUILLY-SUR-SEINE
Maison à NEUILLY-SUR-SEINE
Maison à NEUILLY-SUR-SEINE
Maison à NEUILLY-SUR-SEINE
Maison à NEUILLY-SUR-SEINE
Maison à NEUILLY-SUR-SEINE
Maison à NEUILLY-SUR-SEINE
Maison à NEUILLY-SUR-SEINE
Maison à NEUILLY-SUR-SEINE
Maison à NEUILLY-SUR-SEINE
Maison à NEUILLY-SUR-SEINE
Maison à NEUILLY-SUR-SEINE
Maison à NEUILLY-SUR-SEINE
Maison à NEUILLY-SUR-SEINE
Maison à NEUILLY-SUR-SEINE
Maison à NEUILLY-SUR-SEINE
Maison à NEUILLY-SUR-SEINE
Maison à NEUILLY-SUR-SEINE
Maison à NEUILLY-SUR-SEINE
Maison à NEUILLY-SUR-SEINE
Maison à NEUILLY-SUR-SEINE
Maison à NEUILLY-SUR-SEINE
Maison à NEUILLY-SUR-SEINE
Maison à NEUILLY-SUR-SEINE
Maison à NEUILLY-SUR-SEINE
Ce site est protégé par reCAPTCHA la Politique de confidentialité et les Conditions d’utilisation de Google s’appliquent.
Obtenir un prêt immobilier au meilleur taux ?

En poursuivant votre navigation sans modifier vos paramètres, vous acceptez l'utilisation de cookies susceptibles de réaliser des statistiques de visite. Cliquez ici pour plus d'informations