Bénéficiez des services de nos partenaires locaux soigneusement sélectionnés
pour vous accompagner dans votre parcours d'achat immobilier

A vendre : exclusivité – paris 8ème – rue de bassano – 100 m du mètre du métro george v – 3 pièces – étage élevé – professions l

— Paris-8e 75008 —
1 190 000 €
85 m²
3 pièces

Nos partenaires locaux
Paris 8ᵉ — Rue de Bassano / George V
Exclusivité Nicolson Realty

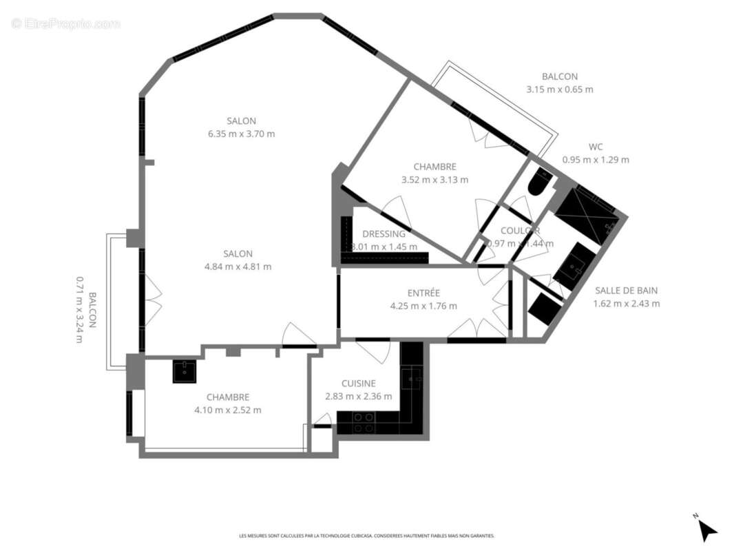
Nicolson Realty présente en exclusivité un élégant appartement situé dans le 8ᵉ arrondissement de Paris, à proximité immédiate de l’avenue des Champs-Élysées et du métro George V, au début de la rue de Bassano.

Situé en étage élevé avec ascenseur, l’appartement bénéficie d’un plan équilibré et d’une luminosité remarquable.
La partie réception, vaste et conviviale, s’ouvre sur un balcon filant qui borde le séjour.

La cuisine est indépendante et équipée.
La suite principale est climatisée, elle comprend un dressing et une salle d’eau attenante. Elle bénéficie d’un balcon filant. Les toilettes sont séparés.
Une seconde chambre, plus intime et actuellement reliée au séjour, peut servir également de bureau.
Des espaces de rangement et une cave complètent ce bien.

L’appartement bénéficie par ailleurs de la double destination habitation / professionnelle, idéale pour une profession libérale.

Surface Carrez : 85 M2
Extérieurs : 2 balcons filants, 4,4 m² → valorisation retenue 35 % du prix/m² ≈ +1,54 m² équivalent (soit 86,5 m² pondérés)

Photos non contractuelles: ( Les agencements de l’appartement ont été modifiés )
Voir plus

Référence: 353
DPE
A
B
C
D
E
F
G
GES
A
B
C
D
E
F
G

Prêt immobilier

Vous souhaitez connaître votre capacité d’emprunt et trouver le meilleur crédit immobilier ?
Réaliser une simulation gratuite

Appartement à PARIS-8E
Appartement à PARIS-8E
Appartement à PARIS-8E
Appartement à PARIS-8E
Appartement à PARIS-8E
Appartement à PARIS-8E
Appartement à PARIS-8E
Appartement à PARIS-8E
Appartement à PARIS-8E
Ce site est protégé par reCAPTCHA la Politique de confidentialité et les Conditions d’utilisation de Google s’appliquent.
Obtenir un prêt immobilier au meilleur taux ?

En poursuivant votre navigation sans modifier vos paramètres, vous acceptez l'utilisation de cookies susceptibles de réaliser des statistiques de visite. Cliquez ici pour plus d'informations