Bénéficiez des services de nos partenaires locaux soigneusement sélectionnés
pour vous accompagner dans votre parcours d'achat immobilier

A vendre ? neuilly-sur-seine sablons / proche bois ? appartement 6 pièces de 117,12 m²

— Neuilly-Sur-Seine 92200 —
1 299 000 €
120 m²
6 pièces
ascenseur

Nos partenaires locaux
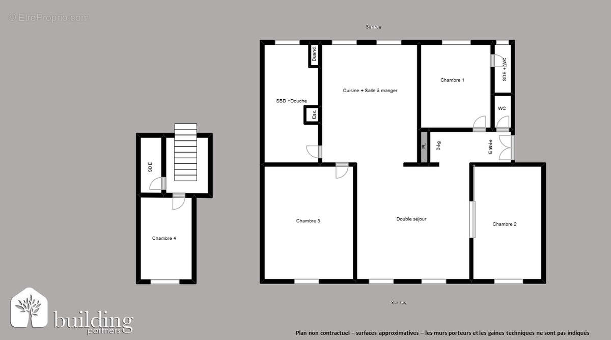
Situé dans le quartier recherché des Sablons, à deux pas du bois de Boulogne, cet appartement familial de 117,12 m² se déploie aux 4e et 5e étages avec ascenseur d'un immeuble ancien de bon standing. Entièrement refait à neuf avec goût, ce bien traversant et lumineux allie charme de l'ancien (parquet, moulures, cheminées) et confort contemporain. Il se compose d'une entrée, d'un double séjour, d'une salle à manger, d'une cuisine américaine aménagée et équipée, de trois à quatre chambres, de deux salles d'eau dont une avec WC, d'une salle de bains avec douche et espace buanderie, de WC séparés ainsi que de nombreux rangements. Une cave complète ce bien. Son agencement parfaitement optimisé, ses beaux volumes et son emplacement privilégié à proximité immédiate des commerces, des transports (métro Sablons) et du bois de Boulogne en font un lieu de vie idéal pour une famille. Ce bien rare à la vente séduira les amateurs d'élégance, d'authenticité et de confort moderne. N'hésitez pas à nous contacter pour plus d'informations ou organiser une visite. Depuis 1993, BUILDING PARTNERS accompagne les propriétaires dans la vente de biens immobiliers de standing sur l'ouest parisien. Notre force ? Une organisation unique avec deux rôles experts : Les Brokers, spécialisés dans la prospection et la valorisation de votre bien. Les Sellers, experts en négociation et en mise en relation avec notre portefeuille d'acheteurs qualifiés. Avec 5 agences implantées au coeur des quartiers les plus recherchés (Paris 16e, Paris 17e, Neuilly, Levallois, Courbevoie), nous vous offrons une visibilité maximale, un accompagnement personnalisé et un engagement total jusqu'à la signature. Confiez-nous votre bien pour une vente rapide, au meilleur prix. Estimation offerte, confidentielle et sans engagement.
Voir plus

Référence: 12164-1
Bien en copropriété. Charges de copropriété : 2796 €.
Honoraires à la charge du vendeur.
Barème des honoraires

Prêt immobilier

Vous souhaitez connaître votre capacité d’emprunt et trouver le meilleur crédit immobilier ?
Réaliser une simulation gratuite

Appartement à NEUILLY-SUR-SEINE
Appartement à NEUILLY-SUR-SEINE
Appartement à NEUILLY-SUR-SEINE
Appartement à NEUILLY-SUR-SEINE
Appartement à NEUILLY-SUR-SEINE
Appartement à NEUILLY-SUR-SEINE
Appartement à NEUILLY-SUR-SEINE
Appartement à NEUILLY-SUR-SEINE
Appartement à NEUILLY-SUR-SEINE
Appartement à NEUILLY-SUR-SEINE
Appartement à NEUILLY-SUR-SEINE
Appartement à NEUILLY-SUR-SEINE
Appartement à NEUILLY-SUR-SEINE
Appartement à NEUILLY-SUR-SEINE
Appartement à NEUILLY-SUR-SEINE
Appartement à NEUILLY-SUR-SEINE
Appartement à NEUILLY-SUR-SEINE
Appartement à NEUILLY-SUR-SEINE
Ce site est protégé par reCAPTCHA la Politique de confidentialité et les Conditions d’utilisation de Google s’appliquent.
Obtenir un prêt immobilier au meilleur taux ?

En poursuivant votre navigation sans modifier vos paramètres, vous acceptez l'utilisation de cookies susceptibles de réaliser des statistiques de visite. Cliquez ici pour plus d'informations