Bénéficiez des services de nos partenaires locaux soigneusement sélectionnés
pour vous accompagner dans votre parcours d'achat immobilier

Levallois - 3 pièces - 625 000 fai

— Levallois-Perret 92300 —
625 000 €
67 m²
3 pièces
ascenseur

Nos partenaires locaux
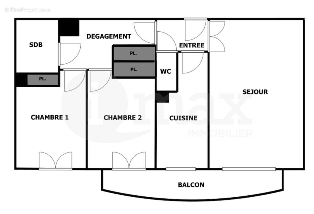
Place du 11 novembre, à proximité du groupe scolaire Saint-Exupéry, dans un immeuble moderne de bon standing ravalé. Imax vous propose un 3 pièces au plan optimisé offrant, une entrée, un séjour ouvrant sur un balcon, une cuisine indépendante, deux chambres, une salle de bains et des wc séparés. Une cave complète cet appartement. DPE : D. Les informations sur les risques auxquels ce bien est exposé sont disponibles sur le site Géorisques : www.georisques.gouv.fr (3.14 % honoraires TTC à la charge de l'acquéreur.) Copropriété de 314 lots - dont 105 lots habitation. (Pas de procédure en cours). Charges annuelles : 1830 euros.
Voir plus

Bien en copropriété. Nombre de lots : 314. Charges de copropriété : 1830 €.
Honoraires d'agence de 3.14% à la charge de l'acquéreur
Barème des honoraires
DPE
A
B
C
D
E
F
G
GES
A
B
C
D
E
F
G

Prêt immobilier

Vous souhaitez connaître votre capacité d’emprunt et trouver le meilleur crédit immobilier ?
Réaliser une simulation gratuite

Appartement à LEVALLOIS-PERRET
Appartement à LEVALLOIS-PERRET
Appartement à LEVALLOIS-PERRET
Appartement à LEVALLOIS-PERRET
Appartement à LEVALLOIS-PERRET
Appartement à LEVALLOIS-PERRET
Appartement à LEVALLOIS-PERRET
Ce site est protégé par reCAPTCHA la Politique de confidentialité et les Conditions d’utilisation de Google s’appliquent.
Obtenir un prêt immobilier au meilleur taux ?

En poursuivant votre navigation sans modifier vos paramètres, vous acceptez l'utilisation de cookies susceptibles de réaliser des statistiques de visite. Cliquez ici pour plus d'informations