Bénéficiez des services de nos partenaires locaux soigneusement sélectionnés
pour vous accompagner dans votre parcours d'achat immobilier

Maison de plain pied, 3 ch, sous-sol complet - le fidelaire

— Le Fidelaire 27190 —
247 000 €
90 m² / 1 628 m²
4 pièces
parkingbalcon/terrassejardin

Nos partenaires locaux
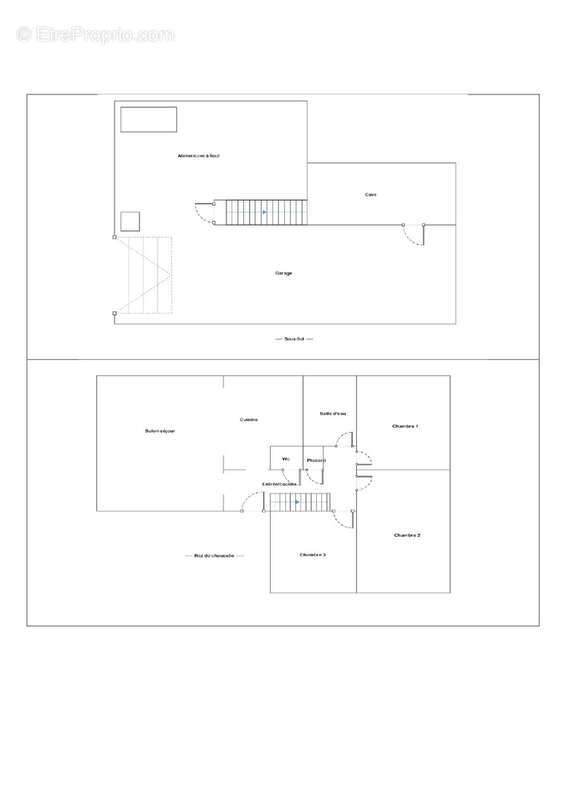
Dans un environnement calme et verdoyant, à proximité de la forêt, cette jolie maison en parfait état d'entretien vous offre une vie entièrement de plain pied.
Tous les aménagements et matériaux sont de belle facture, vous n'aurez aucun travaux à prévoir.
Située au Fidelaire, village avec commodités et écoles, la maison offre sur 90 m2 : une entrée dégagée avec placard, une cuisine équipée récente ouverte sur le lumineux séjour disposant d'un poêle à bois. Deux portes fenêtres donnent accès sur la vaste terrasse avec pergola Alu bioclimatique.
Trois belles chambres dont 2 avec placards intégrés et aménagés, une salle d'eau, WC séparé.
Vous disposerez également d'un sous-sol de 90 m2, accessible de l'intérieur, et contenant deux emplacements voitures, une chaufferie, une cave, un atelier
Fenêtres mixtes (PVC, Alu), volets Alu, chauffage central fioul et poêle à bois récent, adoucisseur d'eau.
Agréable terrain arboré de 1628 m2, clos de haies. Portail motorisé.
Voir plus

Référence: 4814
Honoraires à la charge du vendeur.
Barème des honoraires
DPE
A
B
C
D
E
F
G
GES
A
B
C
D
E
F
G

Prêt immobilier

Vous souhaitez connaître votre capacité d’emprunt et trouver le meilleur crédit immobilier ?
Réaliser une simulation gratuite

Maison à LE FIDELAIRE
Maison à LE FIDELAIRE
Maison à LE FIDELAIRE
Maison à LE FIDELAIRE
Maison à LE FIDELAIRE
Maison à LE FIDELAIRE
Maison à LE FIDELAIRE
Maison à LE FIDELAIRE
Maison à LE FIDELAIRE
Maison à LE FIDELAIRE
Maison à LE FIDELAIRE
Maison à LE FIDELAIRE
Maison à LE FIDELAIRE
Maison à LE FIDELAIRE
Maison à LE FIDELAIRE
Maison à LE FIDELAIRE
Maison à LE FIDELAIRE
Maison à LE FIDELAIRE
Maison à LE FIDELAIRE
Maison à LE FIDELAIRE
Maison à LE FIDELAIRE
Maison à LE FIDELAIRE
Maison à LE FIDELAIRE
Maison à LE FIDELAIRE
Ce site est protégé par reCAPTCHA la Politique de confidentialité et les Conditions d’utilisation de Google s’appliquent.
Obtenir un prêt immobilier au meilleur taux ?

En poursuivant votre navigation sans modifier vos paramètres, vous acceptez l'utilisation de cookies susceptibles de réaliser des statistiques de visite. Cliquez ici pour plus d'informations