Maison 1290m² à le pizou

— Le Pizou 24700 —
86 480 €
1 290 m²
parking

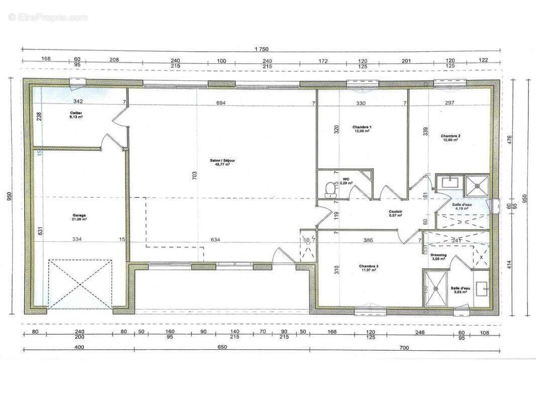
Maison vendue en cour de construction sur un terrain plat de 1290 m². Elle est livrée en l'état. Dans un environnement calme et résidentiel avec un excellent sol sableux, le permis de construire a été accordé en février 2024 et le radier de 166 m² réalisé en juillet 2024 et les murs montés en octobre 2025. Le projet consiste en une maison moderne et fonctionnelle de 110 m² habitables, comprenant : Un spacieux séjour traversant de 48 m²,un espace nuit bien pensé car séparé d'un couloir fermé et distribuant trois chambres dont une suite parentale de près de 20 m² avec dressing et salle d'eau ainsi qu'une deuxième salle d'eau commune et un WC séparé. A cela s'ajoute un garage de 21 m² et une terrasse à l'entrée de 10 m². La superficie couverte représente plus de 140 m². Le compteur d'eau est déjà installé. L'assainissement sera individuel. Ce projet en cour est une opportunité rare pour ceux qui souhaitent bâtir rapidement leur maison dans un cadre agréable, serein et dans une commune très dynamique comme Le Pizou. Si réaliser ce projet est fait pour vous, prenez vite rendez-vous! Infos et visite 7/7j. Le prix indiqué comprend les honoraires de négociation qui se montent à 8.1% TTC du prix affiché, ces honoraires sont à la charge exclusive de l'acquéreur. DPE non concerné. Guillaume BERTRAND, Agent Commercial immatriculé au RSAC de PERIGUEUX sous le numéro 75397841000029 - A la lucarne de l'immobilier - Ref. 84765
Voir plus

Référence: 84765
Honoraires d'agence de 8.1% à la charge de l'acquéreur

Prêt immobilier

Vous souhaitez connaître votre capacité d’emprunt et trouver le meilleur crédit immobilier ?
Réaliser une simulation gratuite

Maison à LE PIZOU
Maison à LE PIZOU
Maison à LE PIZOU
Maison à LE PIZOU
Maison à LE PIZOU
Maison à LE PIZOU
Maison à LE PIZOU
Maison à LE PIZOU
Maison à LE PIZOU
Maison à LE PIZOU
Maison à LE PIZOU
Maison à LE PIZOU
Maison à LE PIZOU
Maison à LE PIZOU
Maison à LE PIZOU
Maison à LE PIZOU
Maison à LE PIZOU
Maison à LE PIZOU
Maison à LE PIZOU
Maison à LE PIZOU
Ce site est protégé par reCAPTCHA la Politique de confidentialité et les Conditions d’utilisation de Google s’appliquent.
Obtenir un prêt immobilier au meilleur taux ?

En poursuivant votre navigation sans modifier vos paramètres, vous acceptez l'utilisation de cookies susceptibles de réaliser des statistiques de visite. Cliquez ici pour plus d'informations