Bénéficiez des services de nos partenaires locaux soigneusement sélectionnés
pour vous accompagner dans votre parcours d'achat immobilier

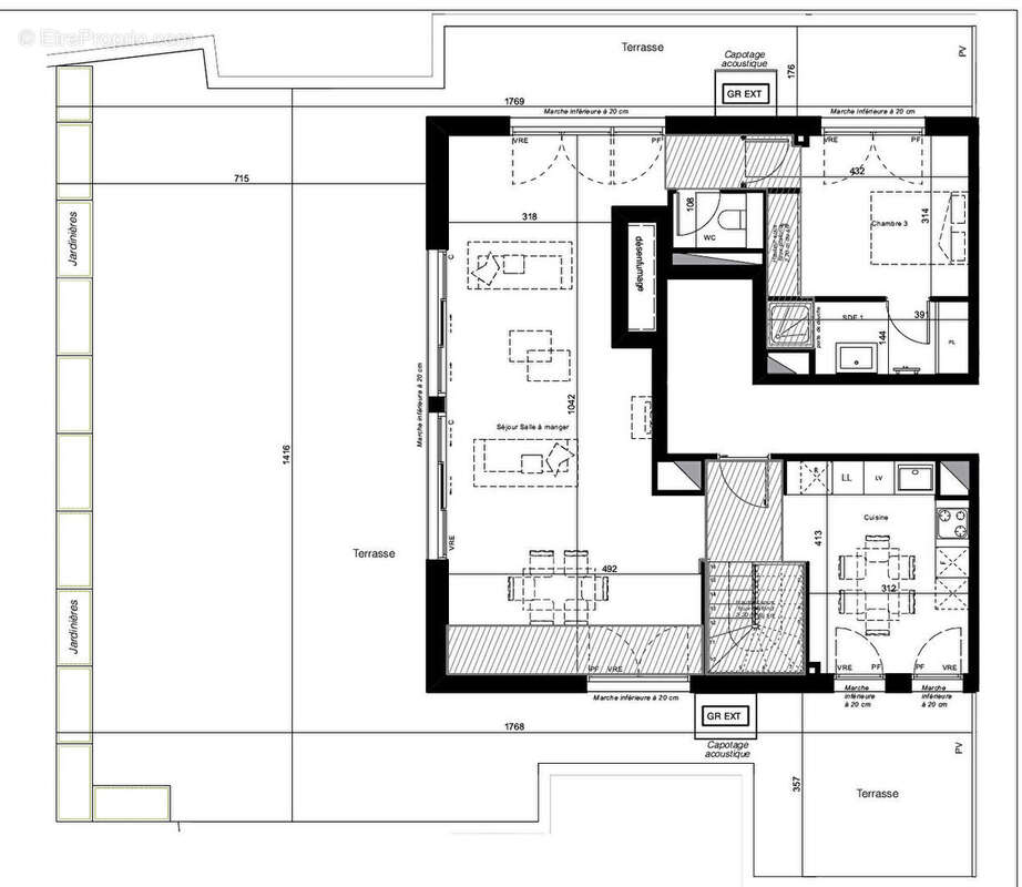
Grande terrasse de 147m2

— Toulouse 31500 —
1 067 000 €
125 m²
4 pièces
parkingbalcon/terrasseascenseur

Nos partenaires locaux
Toulouse Jean Rieux, Bel appartement familial en dernier étage étage d'une petite copropriété au coeur d'un bois classé. En duplex l'appartement bénéficie d'une double entrée au 4ème et au 3ème étage. Le 3ème étage où l'on retrouve une partie du coin nuit avec 2 chambres de 12,78 et 10,91m2 sur balcon de 3,95m2 et une salle de bain-wc; L'étage 4 quand à lui comprend le reste du coin nuit avec une suite parentale de 17,73m2 salle d'eau comprise, un wc indépendant ainsi que le séjour cuisine de 57,75m2 exposé sud /ouest / est sur terrasse de 147,37m2 accessible depuis l'ensemble des pièces. Prestations soignées: isolation renforcée, pompe à chaleur air/air, ballon thermo dynamique, carrelage 60*60 parquet contre collé dans les chambres, peinture blanche lisse, volets roulants électriques ........ 2 places de parking en sous-sol complètent le logement. L'appartement au sein d'une copropriété qui vous entraîne au coeur d'un Espace Boisé Classé (EBC) à l'atmosphère végétale unique. Fusains, aubépines, cornouillers, nerpruns, lauriers-tins, figuiers? Partout des massifs variés, cépées de troènes, arbres fruitiers et plantes aromatiques se mêlent à une petite végétation spontanée. Au fil des saisons, ces vastes espaces extérieurs se métamorphosent et constituent des lieux de vie précieux, des espaces de promenade et de convivialité d'exception ainsi que des terrains de jeu et d'exploration rêvés pour les enfants. BIEN NON SOUMIS AU DPE Pour tout renseignement : Féänor MAMEO [Coordonnées masquées]
Voir plus

Référence: TRE-B334
Honoraires à la charge du vendeur.

Prêt immobilier

Vous souhaitez connaître votre capacité d’emprunt et trouver le meilleur crédit immobilier ?
Réaliser une simulation gratuite

Appartement à TOULOUSE
Appartement à TOULOUSE
Appartement à TOULOUSE
Appartement à TOULOUSE
Appartement à TOULOUSE
Appartement à TOULOUSE
Appartement à TOULOUSE
Appartement à TOULOUSE
Appartement à TOULOUSE
Ce site est protégé par reCAPTCHA la Politique de confidentialité et les Conditions d’utilisation de Google s’appliquent.
Obtenir un prêt immobilier au meilleur taux ?

En poursuivant votre navigation sans modifier vos paramètres, vous acceptez l'utilisation de cookies susceptibles de réaliser des statistiques de visite. Cliquez ici pour plus d'informations