Bénéficiez des services de nos partenaires locaux soigneusement sélectionnés
pour vous accompagner dans votre parcours d'achat immobilier

Maison à rénover

— Mougins 06250 —
329 000 €
203 m² / 1 071 m²
9 pièces
parkingjardin

Nos partenaires locaux
À vendre – Maison à réhabiliter intégralement – 203 m² – Mougins

À Mougins, je vous présente une opportunité rare pour ceux qui souhaitent mener un projet de rénovation ambitieux : investisseurs, maîtres d'œuvre, professionnels du bâtiment… et particuliers courageux prêts à relever un vrai défi.

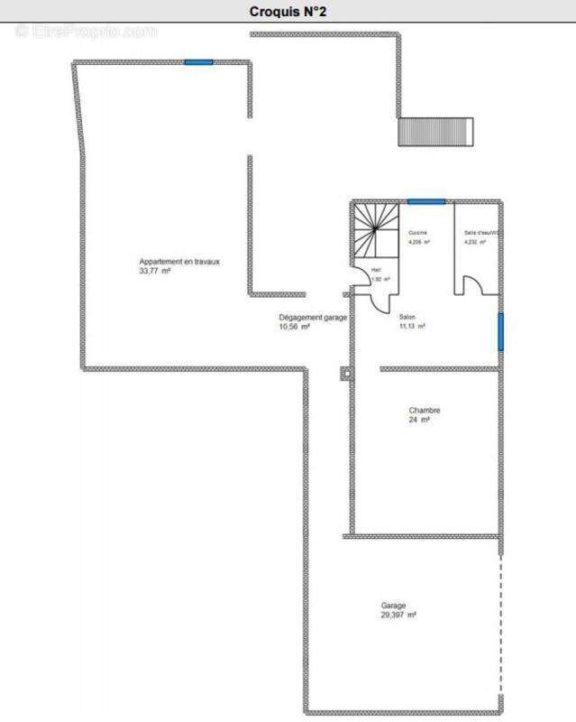
La propriété développe 203 m² de surface plancher à repenser intégralement, implantée sur un terrain de 1 071 m². Un garage existant de 25 m² complète l'ensemble.

Nous sommes ici sur une base saine à réinventer, avec un potentiel important pour redonner vie à cette construction et en faire une habitation moderne, optimisée et parfaitement adaptée à vos besoins. L'environnement est pratique : bus à proximité, commodités accessibles et accès rapides aux axes routiers.

Une déclaration préalable avait été déposée par le passé ; elle est aujourd'hui caduque et devra être représentée auprès de l'urbanisme de Mougins selon votre projet.

Surface : 203 m²
Terrain : 1 071 m²
Prix : 329 000 €
Honoraires à la charge du vendeur
DPE du 07/07/2022 – Classe G (consommation énergétique excessive)
CEP : 546 kWh/m²/an

Annonce proposée par KW Immobilier.
Pour plus d'informations sur les risques géographiques, consultez le site Géorisques.
Les informations sur les risques auxquels ce bien est exposé sont disponibles sur le site Géorisques : www.georisques.gouv.fr.
Prenez contact avec notre agence immobilière KW HLC pour organiser une première visite et échanger sur votre projet.
Voir plus

Référence: 11605
Honoraires à la charge du vendeur.
DPE
A
B
C
D
E
F
G
GES
A
B
C
D
E
F
G

Prêt immobilier

Vous souhaitez connaître votre capacité d’emprunt et trouver le meilleur crédit immobilier ?
Réaliser une simulation gratuite

Maison à MOUGINS
Maison à MOUGINS
Maison à MOUGINS
Maison à MOUGINS
Maison à MOUGINS
Maison à MOUGINS
Maison à MOUGINS
Maison à MOUGINS
Maison à MOUGINS
Maison à MOUGINS
Maison à MOUGINS
Maison à MOUGINS
Maison à MOUGINS
Maison à MOUGINS
Maison à MOUGINS
Maison à MOUGINS
Maison à MOUGINS
Maison à MOUGINS
Ce site est protégé par reCAPTCHA la Politique de confidentialité et les Conditions d’utilisation de Google s’appliquent.
Obtenir un prêt immobilier au meilleur taux ?

En poursuivant votre navigation sans modifier vos paramètres, vous acceptez l'utilisation de cookies susceptibles de réaliser des statistiques de visite. Cliquez ici pour plus d'informations