Bénéficiez des services de nos partenaires locaux soigneusement sélectionnés
pour vous accompagner dans votre parcours d'achat immobilier

Appartement à vendre 2 pièces paris 9eme arrondissement (75) - avec balcon, parking et cave -appartement vendu occupé - 52,29 m2

— Paris-9e 75009 —
454 800 €
52 m²
2 pièces
parkingbalcon/terrasseascenseur

Nos partenaires locaux
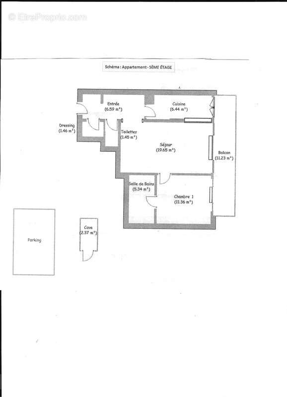
Idéalement situé à l'angle de la rue des Martyrs et du boulevard de Rochechouart, au cœur du 9ᵉ arrondissement, ce bel appartement 2 pièces de 52,29 m² (loi Carrez) vous séduira par sa luminosité, son agencement et ses prestations complètes. Il bénéficie également d'un bon potentiel patrimonial.

Situé au 5ème étage d'un immeuble avec ascenseur et gardien, l'appartement se compose :

D'une entrée, d'un séjour lumineux de 19,65 m² ouvrant sur un balcon spacieux de 11 m², d'une cuisine équipée de 6 m², d'une chambre confortable de 11 m² avec sa salle de bain attenante, des toilettes séparées et d'un dressing.

Une cave ainsi qu'un emplacement de parking complètent cet appartement, offrant un vrai confort au quotidien.

L'Appartement est vendu occupé. Le bail cours jusqu'au 31 mars 2028 et le loyer mensuel hors charges est de 1 467 €.

Les charges mensuelles de 320 € incluent les frais d'ascenseur, de chauffage, d'eau froide et de gardiennage.
La taxe foncière est de 1 222 €.

Le prix de vente est de 454 800 € honoraires d'agence inclus.
DPE : E

À proximité immédiate des commerces, des transports et de la vie animée de la rue des Martyrs, cet appartement bénéficie d'une adresse prisée et d'un locataire en place, garantissant des revenus locatifs sécurisés.

TRANSPORTS :

Métro Pigalle, lignes 12 et 2 à 200 m
Métro Abbesses, ligne 2 à 300 m
Métro Anvers, ligne 2 à 300 m
Métro Saint Georges, ligne 12 à 500 m

N'hésitez pas à me contacter pour toutes informations complémentaires et/ou pour organiser une visite !

Nombre de lots de la copropriété : 100, Montant moyen annuel de la quote-part de charges (budget prévisionnel)(chauffage, eau froide, ascenseur , gardien) : 3840€ soit 320€ par mois. Les honoraires d'agence sont à la charge de l'acquéreur, soit 4,99% TTC du prix hors honoraires.
Les informations sur les risques auxquels ce bien est exposé sont disponibles sur le site Géorisques : www. georisques. gouv. fr.

Réseau Immobilier CAPIFRANCE - Votre agent commercial (RSAC N°835 035 908 - Greffe de PARIS 4EME ARRONDISSEMENT) François LERAT Entrepreneur Individuel [Coordonnées masquées] - Réf.932422
Voir plus

Référence: 340934903559
Bien en copropriété. Nombre de lots : 100. Charges de copropriété : 320 €.
DPE
A
B
C
D
E
F
G
GES
A
B
C
D
E
F
G

Prêt immobilier

Vous souhaitez connaître votre capacité d’emprunt et trouver le meilleur crédit immobilier ?
Réaliser une simulation gratuite

Appartement à PARIS-9E
Appartement à PARIS-9E
Appartement à PARIS-9E
Appartement à PARIS-9E
Appartement à PARIS-9E
Appartement à PARIS-9E
Appartement à PARIS-9E
Appartement à PARIS-9E
Appartement à PARIS-9E
Appartement à PARIS-9E
Appartement à PARIS-9E
Ce site est protégé par reCAPTCHA la Politique de confidentialité et les Conditions d’utilisation de Google s’appliquent.
Obtenir un prêt immobilier au meilleur taux ?

En poursuivant votre navigation sans modifier vos paramètres, vous acceptez l'utilisation de cookies susceptibles de réaliser des statistiques de visite. Cliquez ici pour plus d'informations