Bénéficiez des services de nos partenaires locaux soigneusement sélectionnés
pour vous accompagner dans votre parcours d'achat immobilier

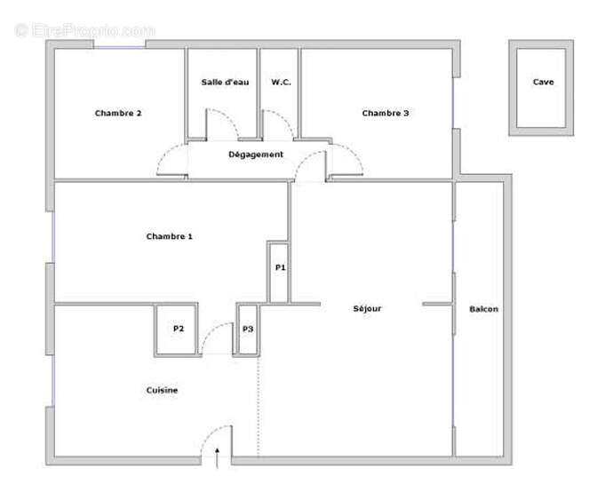
Exclusivité appartement familial 3 chambres de 94 m2

— Meyzieu 69330 —
220 000 €
94 m²
4 pièces
balcon/terrasse

Nos partenaires locaux
Découvrez ce charmant appartement situé dans un quartier calme et résidentiel, à proximité des commodités, au sein d’une copropriété bien entretenue. Ce bien est traversant et offre une vue dégagée, aucun travaux à prévoir.
Caractéristiques de l’appartement :
o Spacieuse pièce de vie de plus de 30 m2 avec espace salle à manger et espace salon
o Cuisine ouverte et équipée
o Trois chambres avec placards intégrés dont une chambre parentale avec baignoire
o Salle d'eau
o WC
o Cave en sous-sol
Extérieur : Un grand balcon de 8 m2 donnant sur la verdure et le calme du jardin de la copropriété.
Transport en commun : Les Bus 67 et 95 sont accessibles à quelques minutes à pied et permettent un accès direct au tramway T3 ou au métro A. Le T3 est accessible en 20 minutes à pied depuis l’appartement et offre un accès au centre de Lyon en 25 minutes.
Stationnement : Un grand parking collectif sécurisé est à disposition des copropriétaires
Voir plus

Bien en copropriété. Nombre de lots : 80. Charges de copropriété : 2716 €.
Honoraires à la charge du vendeur.
Barème des honoraires
DPE
A
B
C
D
E
F
G
GES
A
B
C
D
E
F
G

Prêt immobilier

Vous souhaitez connaître votre capacité d’emprunt et trouver le meilleur crédit immobilier ?
Réaliser une simulation gratuite

Appartement à MEYZIEU
Appartement à MEYZIEU
Appartement à MEYZIEU
Appartement à MEYZIEU
Appartement à MEYZIEU
Appartement à MEYZIEU
Appartement à MEYZIEU
Appartement à MEYZIEU
Appartement à MEYZIEU
Appartement à MEYZIEU
Ce site est protégé par reCAPTCHA la Politique de confidentialité et les Conditions d’utilisation de Google s’appliquent.
Obtenir un prêt immobilier au meilleur taux ?

En poursuivant votre navigation sans modifier vos paramètres, vous acceptez l'utilisation de cookies susceptibles de réaliser des statistiques de visite. Cliquez ici pour plus d'informations