Bénéficiez des services de nos partenaires locaux soigneusement sélectionnés
pour vous accompagner dans votre parcours d'achat immobilier

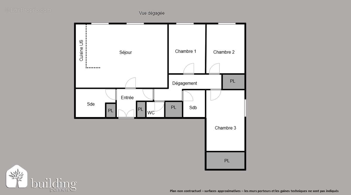
A vendre - courbevoie hôtel de ville - appartement 5 pièces de 82.05 m²

— Courbevoie 92400 —
565 000 €
85 m²
4 pièces
ascenseur

Nos partenaires locaux
Situé au coeur du quartier Hôtel de Ville à Courbevoie, BUILDING PARTNERS vous propose à la vente cet appartement familial de 83 m² se trouve au 4e et dernier étage avec ascenseur d'un immeuble semi-récent de bon standing. Entièrement rénové avec des matériaux de qualité, ce bien lumineux et traversant offre une distribution parfaitement optimisée, sans aucune perte de place. Il se compose d'une entrée, d'un vaste double séjour baigné de soleil, d'une cuisine ouverte aménagée et équipée, de trois chambres avec rangements, d'une salle de bain avec WC, d'une salle d'eau, de WC séparés ainsi que de multiples rangements. Une cave en sous-sol et un grand box fermé accessible directement par l'immeuble complètent ce bien rare. Son exposition idéale, son calme, son dernier étage et sa proximité immédiate des commerces, des écoles et des transports (gare de Courbevoie, ligne L ; métro ligne 1 à quelques minutes) en font un lieu de vie recherché pour une famille souhaitant s'installer dans un environnement pratique et agréable. Ce bien rare à la vente séduira les amateurs d'espaces lumineux et fonctionnels, dans un quartier central et dynamique. N'hésitez pas à nous contacter pour plus d'informations ou organiser une visite. Depuis 1993, BUILDING PARTNERS accompagne les propriétaires dans la vente de biens immobiliers de standing sur l'ouest parisien. Notre force ? Une organisation unique avec deux rôles experts : Les Brokers, spécialisés dans la prospection et la valorisation de votre bien. Les Sellers, experts en négociation et en mise en relation avec notre portefeuille d'acheteurs qualifiés. Avec 5 agences implantées au coeur des quartiers les plus recherchés (Paris 16e, Paris 17e, Neuilly, Levallois, Courbevoie), nous vous offrons une visibilité maximale, un accompagnement personnalisé et un engagement total jusqu'à la signature. Confiez-nous votre bien pour une vente rapide, au meilleur prix. Estimation offerte, confidentielle et sans engagement.
Voir plus

Référence: 17214
Bien en copropriété. Charges de copropriété : 4400 €.
Honoraires à la charge du vendeur.
Barème des honoraires
DPE
A
B
C
D
E
F
G
GES
A
B
C
D
E
F
G

Prêt immobilier

Vous souhaitez connaître votre capacité d’emprunt et trouver le meilleur crédit immobilier ?
Réaliser une simulation gratuite

Appartement à COURBEVOIE
Appartement à COURBEVOIE
Appartement à COURBEVOIE
Appartement à COURBEVOIE
Appartement à COURBEVOIE
Appartement à COURBEVOIE
Appartement à COURBEVOIE
Appartement à COURBEVOIE
Appartement à COURBEVOIE
Appartement à COURBEVOIE
Appartement à COURBEVOIE
Ce site est protégé par reCAPTCHA la Politique de confidentialité et les Conditions d’utilisation de Google s’appliquent.
Obtenir un prêt immobilier au meilleur taux ?

En poursuivant votre navigation sans modifier vos paramètres, vous acceptez l'utilisation de cookies susceptibles de réaliser des statistiques de visite. Cliquez ici pour plus d'informations