Bénéficiez des services de nos partenaires locaux soigneusement sélectionnés
pour vous accompagner dans votre parcours d'achat immobilier

Maison de charme, 7 pièces de 145m2

— Rochefort 17300 —
330 720 €
148 m² / 263 m²
7 pièces
balcon/terrassejardin

Nos partenaires locaux
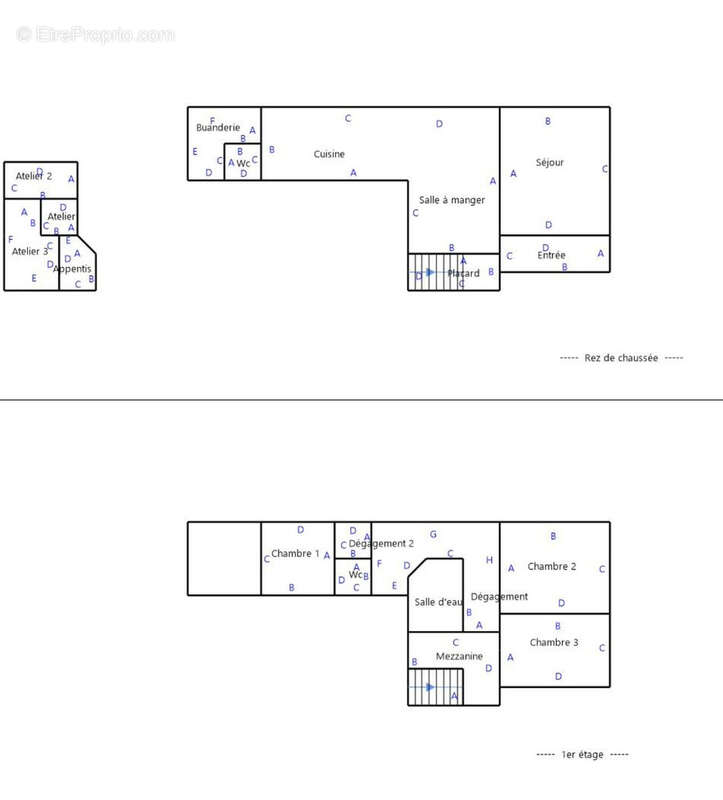
Située dans une rue à sens unique, au calme tout en étant proche des voies d'accès, vous serez charmé par cette maison ancienne de 145m2 édifiée sur deux niveaux. Dès l'entrée, vous serez séduit par ses volumes et son ambiance chaleureuse. Au rez-de-chaussée, une salle à manger lumineuse avec cuisine ouverte aménagée (ensemble de 36 m2) donne accès à une terrasse de 20 m2 et à un jardin clos. Un salon cosy indépendant de 25 m2 avec cheminée à foyer ouvert, un cellier attenant à la cuisine et des toilettes complètent ce niveau. À l'étage, le palier dessert un espace bureau sur palier, 3 chambres dont l'une avec mezzanine (11,5 à 15,2m2), une salle d'eau et des wc séparés. En extérieur, profitez d'un jardin clos avec, en fond de parcelle, une dépendance atypique agrémentée d'un château d'eau. Celle-ci se compose: d'un atelier d'artiste de 17 m2 (dont une pièce chauffée de 12 m2 en sus de la surface habitable annoncée), d'un atelier de bricolage et d'un préau. Atouts majeurs : toiture de la maison refaite à neuf, chaudière Viessmann récente et le charme indéniable de l'ensemble. Une visite s'impose ! Consulter notre site: www.adimmo17.fr
Voir plus

Référence: 637
Honoraires d'agence de 4% à la charge de l'acquéreur
Barème des honoraires
DPE
A
B
C
D
E
F
G
GES
A
B
C
D
E
F
G

Prêt immobilier

Vous souhaitez connaître votre capacité d’emprunt et trouver le meilleur crédit immobilier ?
Réaliser une simulation gratuite

Maison à ROCHEFORT
Maison à ROCHEFORT
Maison à ROCHEFORT
Maison à ROCHEFORT
Maison à ROCHEFORT
Maison à ROCHEFORT
Maison à ROCHEFORT
Maison à ROCHEFORT
Maison à ROCHEFORT
Maison à ROCHEFORT
Maison à ROCHEFORT
Maison à ROCHEFORT
Maison à ROCHEFORT
Maison à ROCHEFORT
Ce site est protégé par reCAPTCHA la Politique de confidentialité et les Conditions d’utilisation de Google s’appliquent.
Obtenir un prêt immobilier au meilleur taux ?

En poursuivant votre navigation sans modifier vos paramètres, vous acceptez l'utilisation de cookies susceptibles de réaliser des statistiques de visite. Cliquez ici pour plus d'informations