Maison 122m² à poissy

— Poissy 78300 —
480 000 €
122 m² / 509 m²
6 pièces
parkingbalcon/terrassejardin

POISSY
Maison 6 pièces – 122m²
480 000€

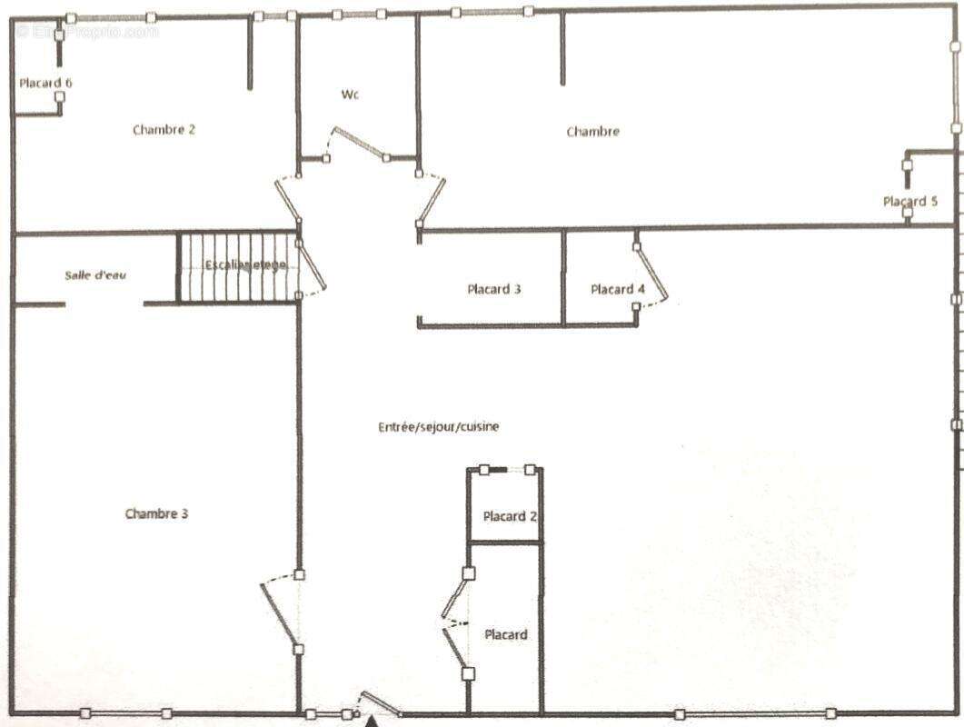
78300 – POISSY – MAISON INDÉPENDANTE DE 122M², 6 PIECES, 4 CHAMBRES, DÉPENDANCE AMÉNAGÉE, CARPORT - TERRAIN DE 509m².

Antoine Delabi, effiCity, vous propose à POISSY cette BELLE MAISON FAMILIALE rénovée en 2004, AU CALME, bâtie sur un TERRAIN de 509m².

Elle se compose au rez-de-chaussée d'une ENTRÉE donnant sur une CUISINE EQUIPÉE ouverte sur le SALON – SALLE A MANGER, formant ainsi une pièce de 32m².
La CHAMBRE PARENTALE (15m²) est équipée d'un GRAND DRESSING et d'une SALLE DE DOUCHES. Les DEUX AUTRES CHAMBRES du rez-de-chaussée (10 et 12m²) disposent elles aussi de leur PROPRE SALLE DE DOUCHES avec lavabo. Un WC indépendant complète cet espace.
A l'étage, nous trouvons une QUATRIÈME CHAMBRE et une GRANDE PIÈCE OUVERTE de 27m² permettant d'accueillir un voire deux BUREAUX, une BIBLIOTHÈQUE, une SALLE DE JEUX ou une CINQUIÈME CHAMBRE…

UNE GRANDE TERRASSE DE PLUS DE 50m² exposée plein SUD permet de profiter du JARDIN ARBORÉ et entièrement clos.

La maison dispose également d'UNE CAVE, d'un CARPORT et d'une DÉPENDANCE ENTIÈREMENT AMÉNAGÉE de 22m² pouvant accueillir des amis ou un jeune au pair.

-Huisseries en PVC double vitrage ;
- Volets roulant ;
-Arrêts de bus Lignes 2 Bussy (qui relie la gare RER de Poissy en 10mn), 90, Express 4 à 250m ;
-Arrêts de bus Lignes 3 et 34 Villa Savoye (qui relient la gare RER de Poissy en 8mn) et 54 à 300m ;
-Centre-ville avec tous les commerces et écoles à 3mn ;
- Gare RER (A et J) à 2 km ;
-Proximité avec le Centre Hospitalier de Poissy ;
-Aux pieds de l'A13 et A14 pour rejoindre Paris en 35 minutes ;
-Bus « Express A14 » pour relier La Défense ;
- …

Pour plus d'informations merci de contacter Antoine DELABI par mail [Coordonnées masquées] ou par téléphone [Coordonnées masquées].
Les informations sur les risques auxquels ce bien est exposé sont disponibles sur le site Georisque : georisques. gouv. fr
Antoine Delabi - EI - est Agent Commercial mandataire en immobilier, immatriculé au Registre Spécial des Agents Commerciaux du Tribunal de Commerce de VERSAILLES sous le n°534123559.
Siège social du mandant : effiCity, 48 avenue de Villiers - 75017 PARIS - Société par Actions Simplifiée, société au capital de 132 373,05 euros, immatriculée au RCS Paris 497 617 746 et titulaire de la Carte professionnelle CPI 75[Coordonnées masquées]02 025 - CCI Paris IDF - Caisse de Garantie : GALIAN Assurances 89 rue de la Boétie 75008 Paris
Voir plus

Référence: 200445
Honoraires à la charge du vendeur.
Barème des honoraires
DPE
A
B
C
D
E
F
G
GES
A
B
C
D
E
F
G

Prêt immobilier

Vous souhaitez connaître votre capacité d’emprunt et trouver le meilleur crédit immobilier ?
Réaliser une simulation gratuite

Maison à POISSY
Maison à POISSY
Maison à POISSY
Maison à POISSY
Maison à POISSY
Maison à POISSY
Maison à POISSY
Maison à POISSY
Maison à POISSY
Maison à POISSY
Maison à POISSY
Maison à POISSY
Maison à POISSY
Maison à POISSY
Maison à POISSY
Maison à POISSY
Ce site est protégé par reCAPTCHA la Politique de confidentialité et les Conditions d’utilisation de Google s’appliquent.
Obtenir un prêt immobilier au meilleur taux ?

En poursuivant votre navigation sans modifier vos paramètres, vous acceptez l'utilisation de cookies susceptibles de réaliser des statistiques de visite. Cliquez ici pour plus d'informations