Bénéficiez des services de nos partenaires locaux soigneusement sélectionnés
pour vous accompagner dans votre parcours d'achat immobilier

Maison 228m² à croissy-sur-seine

— Croissy-Sur-Seine 78290 —
886 000 €
228 m² / 300 m²
7 pièces
balcon/terrasse

Nos partenaires locaux
78290 CROISSY-SUR-SEINE - MAISON DE CARACTÈRE - JARDIN TERRASSE - PARC DE L'ECLUSE - 7 PIÈCES - 5 CHAMBRES - 228.49 m² - CALME ET LUMINEUX

Maison de caractère – 7 pièces – 5 chambres – 228,49 m² – Suite parentale – Terrasse – Calme & Luminosité

Sébastien Le Carpentier du réseau efficity vous présente cette maison familiale de charme, idéalement située dans le très recherché Parc de l'Écluse à Croissy-sur-Seine.
Un environnement verdoyant, paisible et parfaitement adapté à une vie de famille.

Les espaces qui donnent le ton

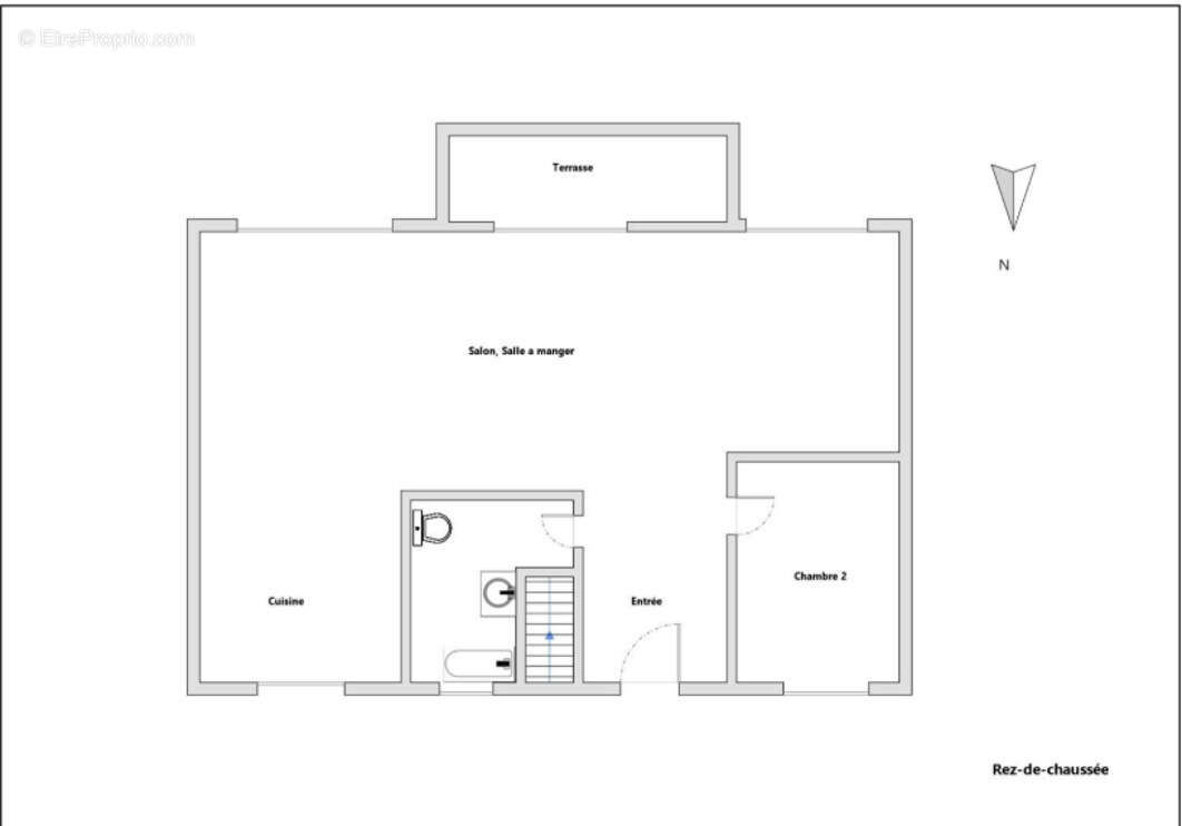
Un vaste espace de vie de 63 m², lumineux et ouvert, offrant une véritable continuité entre le séjour, la salle à manger et la terrasse exposée plein Sud. Un espace chaleureux, parfaitement pensé pour recevoir et vivre au quotidien.

Une cuisine ouverte aux matériaux élégants, mêlant esthétisme et fonctionnalité, qui devient naturellement le cœur de la maison.

Une suite parentale digne d'un hôtel boutique

Au niveau inférieur, la maison révèle une spacieuse suite parentale, un véritable cocon indépendant composé :

d'une chambre généreuse,

d'un dressing sur-mesure,

et d'une salle d'eau premium privative, offrant tout le confort et l'intimité recherchés.
Un atout très rare à Croissy dans cette gamme de biens.

Un cadre de vie recherché

Une luminosité omniprésente.

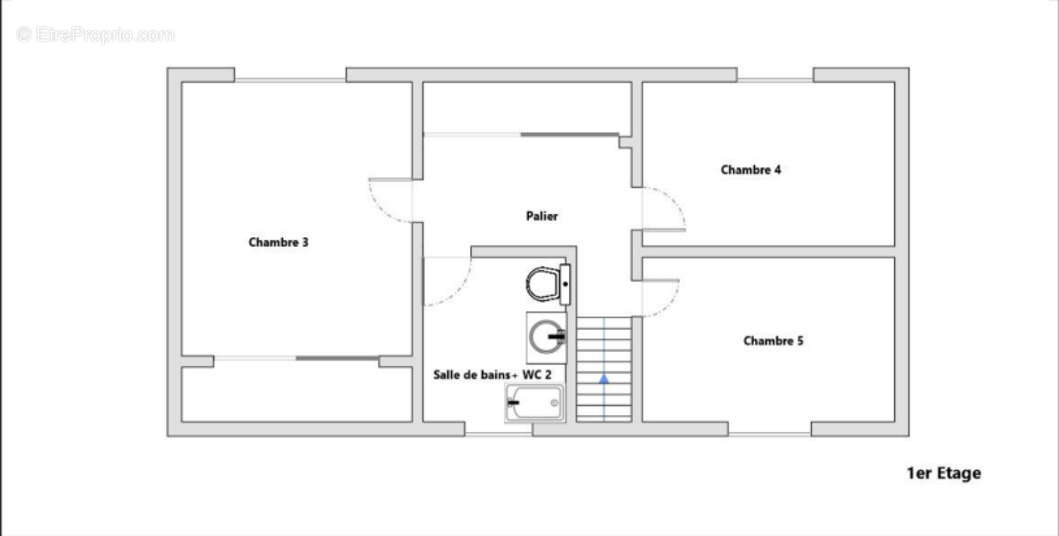
5 chambres au total pour accueillir famille, télétravail ou invités.

Une terrasse de 24 m² prolongée par un jardin intime de 300 m².

Le calme d'un quartier privilégié, à deux pas des bords de Seine, des écoles et du centre.

En résumé

Une maison de caractère où le charme, le confort moderne et les volumes généreux créent une harmonie parfaite.
Un bien rare, où l'on se projette immédiatement.

Contactez-moi pour organiser une visite :
Sébastien Le Carpentier – Consultant Immobilier efficity
[Coordonnées masquées]

+33 6 52 21 43 42
Les informations sur les risques auxquels ce bien est exposé sont disponibles sur le site Georisque : georisques. gouv. fr
Sébastien Le Carpentier - EI - est Agent Commercial mandataire en immobilier, immatriculé au Registre Spécial des Agents Commerciaux du Tribunal de Commerce de Nanterre sous le n°988129045.
Siège social du mandant : effiCity, 48 avenue de Villiers - 75017 PARIS - Société par Actions Simplifiée, société au capital de 132 373,05 euros, immatriculée au RCS Paris 497 617 746 et titulaire de la Carte professionnelle CPI 75[Coordonnées masquées]02 025 - CCI Paris IDF - Caisse de Garantie : GALIAN Assurances 89 rue de la Boétie 75008 Paris
Voir plus

Référence: 200470
Bien en copropriété. Nombre de lots : 30. Charges de copropriété : 24 €.
Honoraires d'agence de 3.99% à la charge de l'acquéreur
Barème des honoraires
DPE
A
B
C
D
E
F
G
GES
A
B
C
D
E
F
G

Prêt immobilier

Vous souhaitez connaître votre capacité d’emprunt et trouver le meilleur crédit immobilier ?
Réaliser une simulation gratuite

Maison à CROISSY-SUR-SEINE
Maison à CROISSY-SUR-SEINE
Maison à CROISSY-SUR-SEINE
Maison à CROISSY-SUR-SEINE
Maison à CROISSY-SUR-SEINE
Maison à CROISSY-SUR-SEINE
Maison à CROISSY-SUR-SEINE
Maison à CROISSY-SUR-SEINE
Maison à CROISSY-SUR-SEINE
Maison à CROISSY-SUR-SEINE
Maison à CROISSY-SUR-SEINE
Maison à CROISSY-SUR-SEINE
Maison à CROISSY-SUR-SEINE
Maison à CROISSY-SUR-SEINE
Maison à CROISSY-SUR-SEINE
Maison à CROISSY-SUR-SEINE
Maison à CROISSY-SUR-SEINE
Maison à CROISSY-SUR-SEINE
Maison à CROISSY-SUR-SEINE
Maison à CROISSY-SUR-SEINE
Maison à CROISSY-SUR-SEINE
Maison à CROISSY-SUR-SEINE
Ce site est protégé par reCAPTCHA la Politique de confidentialité et les Conditions d’utilisation de Google s’appliquent.
Obtenir un prêt immobilier au meilleur taux ?

En poursuivant votre navigation sans modifier vos paramètres, vous acceptez l'utilisation de cookies susceptibles de réaliser des statistiques de visite. Cliquez ici pour plus d'informations