Bénéficiez des services de nos partenaires locaux soigneusement sélectionnés
pour vous accompagner dans votre parcours d'achat immobilier

À vendre dinard -saint-énogat, charmant appartement avec double terrasse et garage

— Dinard 35800 —
471 600 €
51 m²
3 pièces
parkingbalcon/terrasseascenseur

Nos partenaires locaux
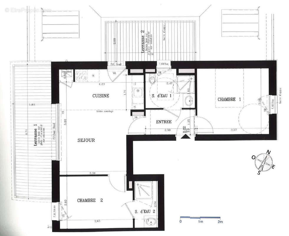
Idéalement situé dans le quartier très recherché de Saint-Énogat, au calme et à seulement quelques minutes des plages et des commerces, cet appartement lumineux offre un cadre de vie privilégié au sein d'une résidence de standing parfaitement entretenue. Cet appartement se distingue par ses espaces extérieurs et son exposition idéale. D'une surface confortable, il se compose d'une entrée, d'un salon séjour lumineux ouvrant sur une première terrasse de 12 m², exposée Sud-Ouest, parfaite pour profiter des soirées ensoleillées. Il dispose également d'une chambre agréable, d'une salle d'eau, ainsi que d'une seconde terrasse de 9 m², offrant un véritable prolongement de l'espace de vie. Le plan de cet appartement permet la création d'une seconde chambre avec salle d'eau tel qu'il était prévu sur le plan. Le point d'eau est déjà existant avec la présence d'un lavabo. Le garage fermé est un atout particulièrement recherché dans le secteur. Une opportunité rare pour profiter pleinement de la douceur de vivre dinardaise, en résidence principale, secondaire ou en investissement de qualité. Pour toute demande d'informations ou pour organiser une visite, contactez l'agence emeraude 48 rue Levavasseur, 35800 DINARD. Référence : 7682 - [Coordonnées masquées] - [Coordonnées masquées]. (4.80 % honoraires TTC à la charge de l'acquéreur.) Copropriété de 93 lots - dont 38 lots habitation. (Pas de procédure en cours). Charges annuelles : 1297.32 euros.
Voir plus

Référence: 7682
Bien en copropriété. Nombre de lots : 93. Charges de copropriété : 1297 €.
Honoraires d'agence de 4.8% à la charge de l'acquéreur
Barème des honoraires
DPE
A
B
C
D
E
F
G
GES
A
B
C
D
E
F
G

Prêt immobilier

Vous souhaitez connaître votre capacité d’emprunt et trouver le meilleur crédit immobilier ?
Réaliser une simulation gratuite

Appartement à DINARD
Appartement à DINARD
Appartement à DINARD
Appartement à DINARD
Appartement à DINARD
Appartement à DINARD
Appartement à DINARD
Appartement à DINARD
Appartement à DINARD
Ce site est protégé par reCAPTCHA la Politique de confidentialité et les Conditions d’utilisation de Google s’appliquent.
Obtenir un prêt immobilier au meilleur taux ?

En poursuivant votre navigation sans modifier vos paramètres, vous acceptez l'utilisation de cookies susceptibles de réaliser des statistiques de visite. Cliquez ici pour plus d'informations