Bénéficiez des services de nos partenaires locaux soigneusement sélectionnés
pour vous accompagner dans votre parcours d'achat immobilier

Une demeure d'exception à un tarif exceptionnel!

— Yvrac 33370 —
336 000 €
185 m² / 2 251 m²
9 pièces
jardin

Nos partenaires locaux
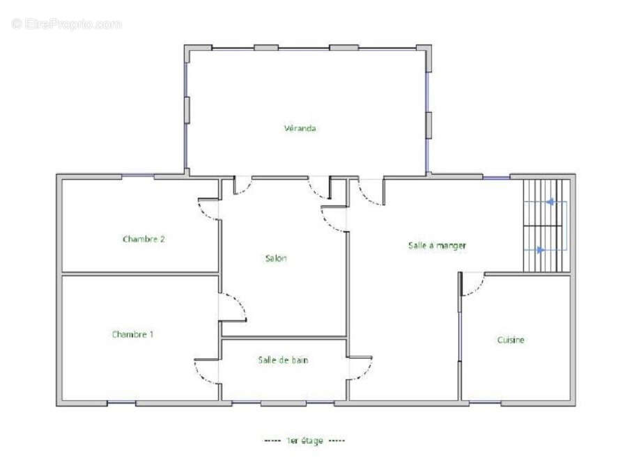
Située sur la commune voisine de ST LOUBES En exclusivité dans notre agence immobilière à st loubes : Rendez vous sur notre page instagram pour retrouver une vidéo de présentation complète de la maison Cette demeure de charme aux volumes généreux et au cachet préservé représente une opportunité rare sur le marché. Édifiée sur trois niveaux, elle propose : Au rez-de-chaussée : une cuisine semi-ouverte sur la salle à manger, un salon indépendant, deux espaces ouverts sur une véranda plein sud, ainsi que deux chambres, une salle de bains et des toilettes. A l'étage : une vaste pièce avec plafond cathédrale et poutres apparentes, un espace bureau, trois chambres, deux salles d'eau avec toilettes. En sous-sol total : de larges espaces de stockage ou d'atelier, complétés par un garage attenant pour voiture et motos. A l'extérieur, vous profiterez d'un jardin arboré de plus de 2000 m². La maison est équipée d'un chauffage au fioul et d'un assainissement individuel. Des travaux de mise aux normes seront à prévoir, mais elle reste habitable immédiatement. Proposée à 336 000 euros, cette maison offre un rapport qualité/prix exceptionnel. Avec environ 26 000 euros de frais de notaire et un budget travaux estimé, il faut prévoir un budget global autour de 400 000 euros pour une demeure de caractère avec de tels volumes. Nous précisons que la maison se situe à proximité de la voie ferrée.
Voir plus

Honoraires à la charge du vendeur.
Barème des honoraires
DPE
A
B
C
D
E
F
G
GES
A
B
C
D
E
F
G

Prêt immobilier

Vous souhaitez connaître votre capacité d’emprunt et trouver le meilleur crédit immobilier ?
Réaliser une simulation gratuite

Maison à YVRAC
Maison à YVRAC
Maison à YVRAC
Maison à YVRAC
Maison à YVRAC
Maison à YVRAC
Maison à YVRAC
Maison à YVRAC
Maison à YVRAC
Maison à YVRAC
Maison à YVRAC
Maison à YVRAC
Maison à YVRAC
Maison à YVRAC
Maison à YVRAC
Maison à YVRAC
Maison à YVRAC
Maison à YVRAC
Ce site est protégé par reCAPTCHA la Politique de confidentialité et les Conditions d’utilisation de Google s’appliquent.
Obtenir un prêt immobilier au meilleur taux ?

En poursuivant votre navigation sans modifier vos paramètres, vous acceptez l'utilisation de cookies susceptibles de réaliser des statistiques de visite. Cliquez ici pour plus d'informations