Bénéficiez des services de nos partenaires locaux soigneusement sélectionnés
pour vous accompagner dans votre parcours d'achat immobilier

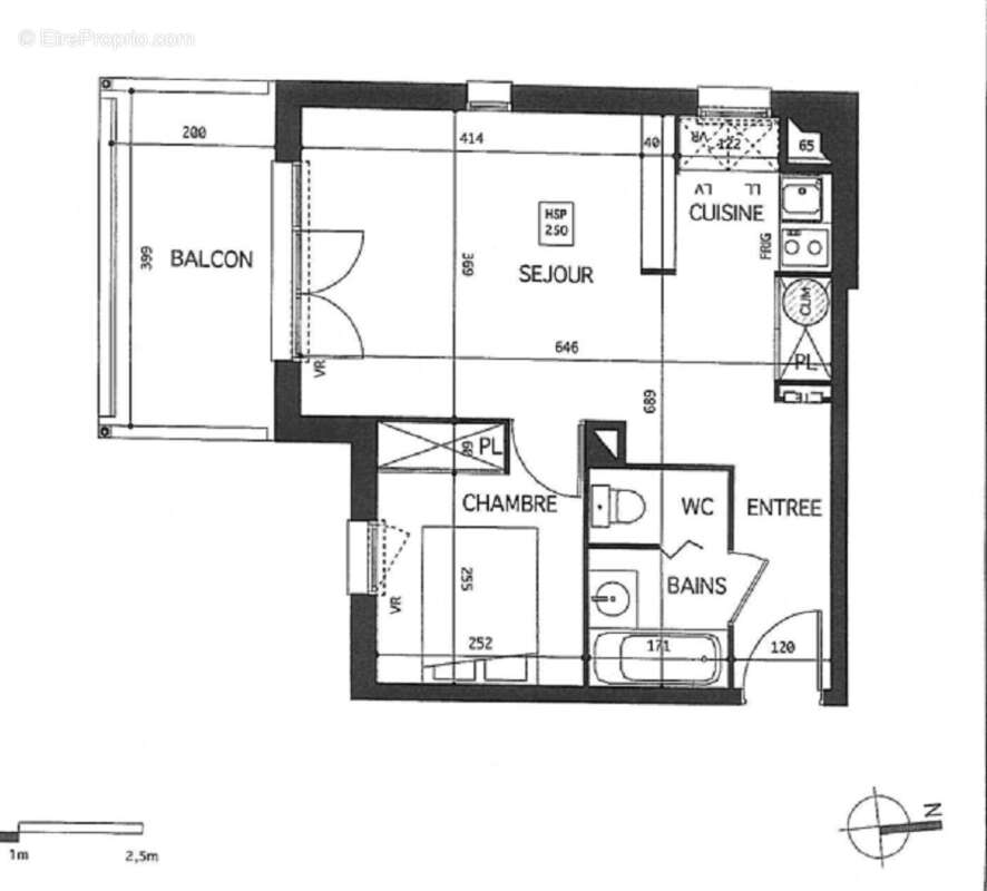
Appartement t2 la lande de fronsac 2 pièce(s)

— La Lande-De-Fronsac 33240 —
118 800 €
40 m²
2 pièces

Nos partenaires locaux
AVANTIM AQUITAINE vous propose un appartement T2 d'environ 39.90 m² dans une résidence sécurisée, comprenant un séjour, une cuisine US aménagée et équipée, 1 chambre avec placard, une salle de bains et balcon d'environ 8 m². Vous bénéficierez également d'une place de parking privative. Contact : [Coordonnées masquées] DPE: D - GES : A Taxe Foncière: 508 euros / an. Charges moyennes de copropriété: 764 euros/ an . PRIX : 118 800 euros FAI (honoraires à la charge du vendeur). Les informations sur les risques auxquels ce bien est exposé sont disponibles sur le site Géorisques : www.georisques.gouv.fr
Voir plus

Référence: 1715
Honoraires à la charge du vendeur.
DPE
A
B
C
D
E
F
G
GES
A
B
C
D
E
F
G

Prêt immobilier

Vous souhaitez connaître votre capacité d’emprunt et trouver le meilleur crédit immobilier ?
Réaliser une simulation gratuite

Appartement à LA LANDE-DE-FRONSAC
Appartement à LA LANDE-DE-FRONSAC
Appartement à LA LANDE-DE-FRONSAC
Ce site est protégé par reCAPTCHA la Politique de confidentialité et les Conditions d’utilisation de Google s’appliquent.
Obtenir un prêt immobilier au meilleur taux ?

En poursuivant votre navigation sans modifier vos paramètres, vous acceptez l'utilisation de cookies susceptibles de réaliser des statistiques de visite. Cliquez ici pour plus d'informations