Le pouliguen hyper centre : maison 4 chambres ou maison 2 chambre avec t2 indépendant.

— Le Pouliguen 44510 —
499 000 €
92 m² / 59 m²
5 pièces
jardin

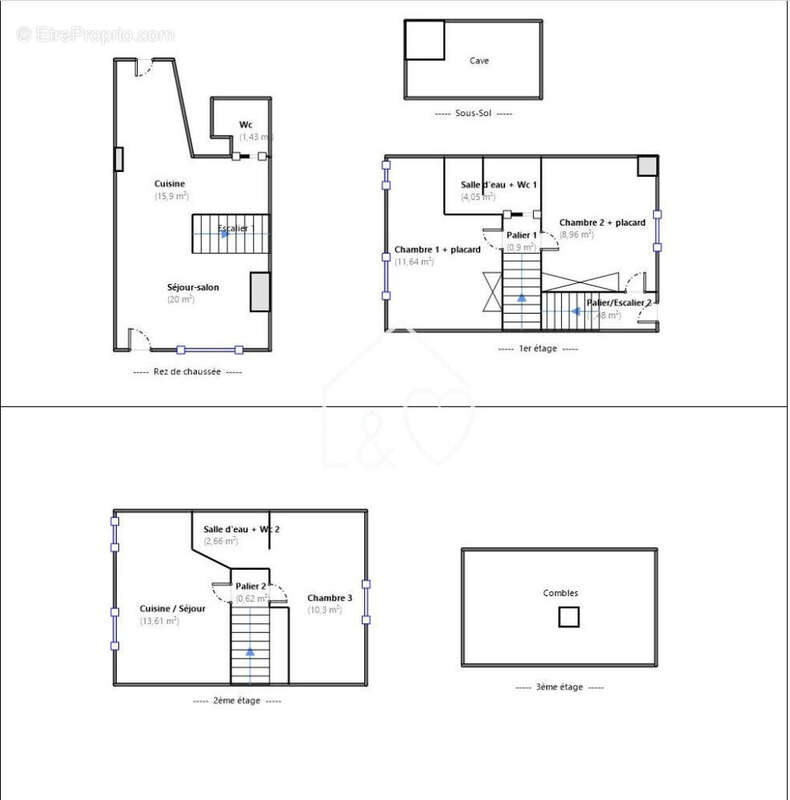
* Loire et Océan Immobilier vous présente cette maison située à 50m de l'église, 80m du Port, 200m du petit bois, 500m de la plage; idéale pour envisager une vie à pieds. * En plein centre du Pouliguen , au pied des commerces, venez découvrir cette maison aux multiples destinations. Elle se compose au rez de chaussé d'un salon séjour donnant accès sur une cave de 12.7m², d'un WC avec Lave main, d'une cuisine aménagée et équipée donnant sur une cour de 4.70m² qui communique avec une autre rue . * Au premier étage, le pallier dessert une première chambre avec placard et dressing, une salle d'eau avec douche, vasque et WC et une autre chambre avec placard donnant accès sur un autre pallier (accessible également par un escalier extérieur) . * Au 2ème étage le dégagement dessert une chambre avec salle d'eau privative ( douche , vasque et WC) ainsi qu'une autre chambre ( avec alimentations et évacuations en attentes pour une éventuelle création de cuisine). Ce 2ème étage est donc accessible par un escalier extérieur et peut permettre la création d'un T2 indépendant , idéal pour création d'un appartement en locatif ou pour donner de l'indépendance et de l'autonomie à des invités. * A noter : chauffage et production d'eau chaude électrique , ADSL ( la fibre Passe en façade avant de la maison) , grenier de 18m² environs (1.75m de hauteur) . * N'hésitez pas à me contacter pour de plus amples information ou pour visiter
Voir plus

Référence: 1978
Honoraires à la charge du vendeur.
DPE
A
B
C
D
E
F
G
GES
A
B
C
D
E
F
G

Prêt immobilier

Vous souhaitez connaître votre capacité d’emprunt et trouver le meilleur crédit immobilier ?
Réaliser une simulation gratuite

Maison à LE POULIGUEN
Maison à LE POULIGUEN
Maison à LE POULIGUEN
Maison à LE POULIGUEN
Maison à LE POULIGUEN
Maison à LE POULIGUEN
Maison à LE POULIGUEN
Maison à LE POULIGUEN
Maison à LE POULIGUEN
Maison à LE POULIGUEN
Maison à LE POULIGUEN
Maison à LE POULIGUEN
Maison à LE POULIGUEN
Maison à LE POULIGUEN
Maison à LE POULIGUEN
Maison à LE POULIGUEN
Ce site est protégé par reCAPTCHA la Politique de confidentialité et les Conditions d’utilisation de Google s’appliquent.
Obtenir un prêt immobilier au meilleur taux ?

En poursuivant votre navigation sans modifier vos paramètres, vous acceptez l'utilisation de cookies susceptibles de réaliser des statistiques de visite. Cliquez ici pour plus d'informations