Bénéficiez des services de nos partenaires locaux soigneusement sélectionnés
pour vous accompagner dans votre parcours d'achat immobilier

Maison à rénover et à découvrir sur bagnols

— Bagnols 69620 —
310 000 €
101 m² / 3 100 m²
4 pièces
jardin

Nos partenaires locaux
BAISSE DE PRIX : En exclusivité PIERRE DE LUNE IMMOBILIER : maison à vendre de 101 m² habitables et 127 m² au sol, avec jardin à Bagnols. Située sur un beau terrain arboré d'environ 3 100 m² (non constructible et piscinable), pas de voisinage immédiat, dans un secteur au calme absolu !!
Vous trouverez également une annexe en bois d'environ 55 m² avec eau et électricité (possibilité d'aménagement).
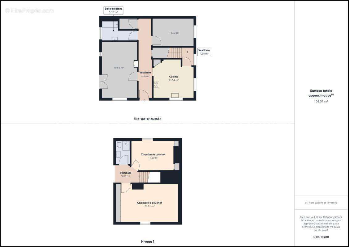
La maison s' ouvre sur un couloir qui dessert un salon ouvert sur l'espace de réception sous-préau, et la cuisine avec espace repas.
Au fond du couloir, vous découvrirez une chambre, une salle de bains, un WC séparé et pour finir l'accès au sous-sol.
Au 1er étage, vous trouverez deux grandes chambres, ainsi qu'une salle d'eau avec WC, avec de nombreux espaces de rangement.
Le chauffage est assuré dans la pièce de vie par un poêle à bois, la partie nuit est alimentée par des radiateurs électriques.
Assainissement par fosse septique et bac dégraisseur.
Belle vue sur la campagne, maison idéale pour les familles. Travaux de rafraîchissements et rénovation à prévoir.
Maison proche du centre du village de BAGNOLS et de CHESSY. A VOIR ABSOLUMENT -

Photos complémentaires sur demande. Les risques auxquels le bien est susceptible d'être exposé sont sur www.georisques.gouv.fr. Information Loi Alur : statut du négociateur : salarié.
Voir plus

Référence: Bagnols310E
Honoraires à la charge du vendeur.
DPE
A
B
C
D
E
F
G
GES
A
B
C
D
E
F
G

Prêt immobilier

Vous souhaitez connaître votre capacité d’emprunt et trouver le meilleur crédit immobilier ?
Réaliser une simulation gratuite

Maison à BAGNOLS
Maison à BAGNOLS
Maison à BAGNOLS
Maison à BAGNOLS
Maison à BAGNOLS
Maison à BAGNOLS
Maison à BAGNOLS
Maison à BAGNOLS
Maison à BAGNOLS
Maison à BAGNOLS
Maison à BAGNOLS
Maison à BAGNOLS
Maison à BAGNOLS
Maison à BAGNOLS
Maison à BAGNOLS
Maison à BAGNOLS
Maison à BAGNOLS
Maison à BAGNOLS
Ce site est protégé par reCAPTCHA la Politique de confidentialité et les Conditions d’utilisation de Google s’appliquent.
Obtenir un prêt immobilier au meilleur taux ?

En poursuivant votre navigation sans modifier vos paramètres, vous acceptez l'utilisation de cookies susceptibles de réaliser des statistiques de visite. Cliquez ici pour plus d'informations