A vendre appartement familial de 4 pièces avec terrasse et jardin privatif – quartier berges de seine / beaujon clichy (92)

— Clichy 92110 —
760 000 €
82 m²
4 pièces
parkingbalcon/terrassejardinascenseur

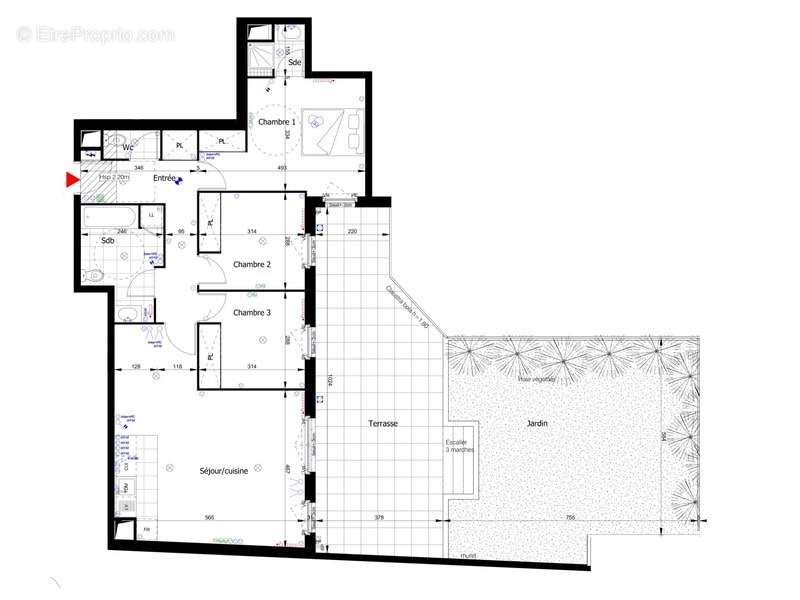
Exclusivité en étage avec terrasse et jardin privatif Appartement familial – Quartier Berges de Seine / Beaujon

Découvrez cet appartement spacieux et bien agencé, et au calme idéal pour une famille qui recherche l'équivalent d'une maison.

Situé dans une résidence de standing de 2020, bien entretenue au cœur du quartier dynamique Berges de Seine / Beaujon.

La résidence se trouve à deux pas à pied des commerces, de nombreux établissements scolaires et se trouve proche de Paris avec un accès direct par la ligne de métro 13

Atouts majeurs :
Terrasse et jardin lumineux sur cour intérieure pour profiter du soleil

Intérieur fonctionnel et moderne :

-Entrée avec rangement
-3 chambres avec placard dont une suite parentale
-Accès direct à la terrasse depuis toutes les pièces principales
-Grand séjour avec cuisine ouverte et un espace pour une cave à vin
-Salle de bains et salle d'eau
-Deux WC dont un séparé

Stationnement sécurisé : une place de parking voiture en sous-sol incluse

Option supplémentaire : une place pour deux-roues en sous-sol

Pour les familles : L'appartement est entouré d'un large choix d'établissements scolaires, tous à proximité :
Écoles maternelles et élémentaires : Willy Brandt, Antonini, Dagobert, Pierre Mendes, soeur Marguerite ( privée)
Collèges : Henri-Martin, jean Jaures (public), Sainte-Geneviève et soeur Margiuerite(privé), )
Lycées : Isaac Newton (public), René Auffray (public)

Prêt à emménager : Cet appartement clé en main n'attend plus que vous! Nombre de lots de la copropriété : 81, Montant moyen annuel de la quote-part de charges (budget prévisionnel)(Chauffage et Eau Chaude) : 2850€ soit 237€ par mois. Les honoraires sont à la charge du vendeur.
Les informations sur les risques auxquels ce bien est exposé sont disponibles sur le site Géorisques : www. georisques. gouv. fr.

Réseau Immobilier CAPIFRANCE - Votre agent commercial (RSAC N°450 482 054 - Greffe de NANTERRE) Victor BASSE Entrepreneur Individuel à Responsabilité Limitée [Coordonnées masquées] - Réf.932902
Voir plus

Référence: 340934262288
Bien en copropriété. Nombre de lots : 81. Charges de copropriété : 237 €.
Honoraires à la charge du vendeur.
DPE
A
B
C
D
E
F
G
GES
A
B
C
D
E
F
G

Prêt immobilier

Vous souhaitez connaître votre capacité d’emprunt et trouver le meilleur crédit immobilier ?
Réaliser une simulation gratuite

Appartement à CLICHY
Appartement à CLICHY
Appartement à CLICHY
Appartement à CLICHY
Appartement à CLICHY
Appartement à CLICHY
Appartement à CLICHY
Appartement à CLICHY
Appartement à CLICHY
Appartement à CLICHY
Appartement à CLICHY
Ce site est protégé par reCAPTCHA la Politique de confidentialité et les Conditions d’utilisation de Google s’appliquent.
Obtenir un prêt immobilier au meilleur taux ?

En poursuivant votre navigation sans modifier vos paramètres, vous acceptez l'utilisation de cookies susceptibles de réaliser des statistiques de visite. Cliquez ici pour plus d'informations