Maison plan favier 90m2

— Saint-Bonnet-De-Mure 69720 —
339 000 €
72 m²
4 pièces
balcon/terrasse

Sous offre acceptée – Maison Plan Favier 90 m² sur terrain de 785 m² – Saint-Bonnet-de-Mure

Située dans le secteur calme et recherché de plein soleil, cette maison des années 70 offre un cadre de vie agréable avec un fort potentiel de personnalisation.

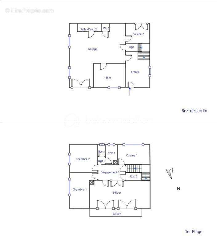
À l'étage (72 m² habitables) :

Un séjour lumineux avec espace salon – salle à manger donnant sur balcon
Une cuisine fermée
Deux grandes chambres
Salle de bain, WC indépendant
Placard de rangement

Au rez-de-chaussée (18 m² habitables + dépendances) :

Une chambre supplémentaire
Une cuisine d'été conviviale
Une salle de douche, wc indépendant
Grand garage avec espace de stationnement intérieur

Extérieurs :

Terrain plat de 785 m² clos et arboré
Carport pour un véhicule
Grand abri de jardin
Cuve de récupération d'eau
Terrain piscinable
30% emprise au sol. Agrandissement possible environ 100m2.

Atouts de la maison :

Façade refaite, volets roulants motorisés à l'étage
Maison parfaitement entretenue
Disponibilité immédiate.

À prévoir : travaux de rafraîchissement et amélioration énergétique (chauffage au fioul, DPE G).
Une maison robuste, idéale pour une famille ou un projet de rénovation, dans un cadre calme et prisé à Saint-Bonnet-de-Mure.
Contactez-moi dès aujourd'hui pour plus de renseignements et organiser une visite.

Cette annonce référence 313411 vous est présentée par votre agent commercial BSK Immobilier VIRGINIE GRULLINI (EI) immatriculé au RSAC de LYON-3E-ARRONDISSEMENT (69003) sous le numéro 9512[Coordonnées masquées].

Prix du bien : 339 000,00 €
Les honoraires d'agence sont à la charge du vendeur.

A propos des performances énergétiques :
Date de réalisation du diagnostic énergétique : 19/09/2025
Score DPE : 529 kWhEP/m²/an
Score GES : 163 kgepCO2/m²/an
Montant estimé des dépenses annuelles d'énergie pour un usage standard : entre 5870.00 € et 8010.00 € par an. Prix moyens des énergies indexés sur l'année 2023 (abonnements compris).

Les informations sur les risques auxquels ce bien est exposé sont disponibles sur le site Géorisques : www.georisques.gouv.fr
Voir plus

Référence: 313411
Honoraires à la charge du vendeur.
DPE
A
B
C
D
E
F
G
GES
A
B
C
D
E
F
G

Prêt immobilier

Vous souhaitez connaître votre capacité d’emprunt et trouver le meilleur crédit immobilier ?
Réaliser une simulation gratuite

Maison à SAINT-BONNET-DE-MURE
Maison à SAINT-BONNET-DE-MURE
Maison à SAINT-BONNET-DE-MURE
Maison à SAINT-BONNET-DE-MURE
Maison à SAINT-BONNET-DE-MURE
Maison à SAINT-BONNET-DE-MURE
Maison à SAINT-BONNET-DE-MURE
Maison à SAINT-BONNET-DE-MURE
Maison à SAINT-BONNET-DE-MURE
Maison à SAINT-BONNET-DE-MURE
Maison à SAINT-BONNET-DE-MURE
Maison à SAINT-BONNET-DE-MURE
Maison à SAINT-BONNET-DE-MURE
Maison à SAINT-BONNET-DE-MURE
Ce site est protégé par reCAPTCHA la Politique de confidentialité et les Conditions d’utilisation de Google s’appliquent.
Obtenir un prêt immobilier au meilleur taux ?

En poursuivant votre navigation sans modifier vos paramètres, vous acceptez l'utilisation de cookies susceptibles de réaliser des statistiques de visite. Cliquez ici pour plus d'informations