Bénéficiez des services de nos partenaires locaux soigneusement sélectionnés
pour vous accompagner dans votre parcours d'achat immobilier

Appartement 35m² à saint-malo

— Saint-Malo 35400 —
329 000 €
36 m²
2 pièces

Nos partenaires locaux
L'agence 'MON BIEN A LA MER', spécialiste de l'immobilier neuf sur les côtes Bretonnes, vous présente :

Très Rare : Rénovation de très grand standing en plein centre de SAINT MALO : au calme, et à pied de la Plage et toutes commodités.

Le confort du neuf avec le charme de l'ancien : la façade en pierre de l'ancien Palais de Justice est conservée et l'intérieur du bâtiment est entièrement rénové avec de matériaux de grande qualité.

Les appartements donnent sur la place Saint Aaron, avec une vue dégagée sur la cathédrale et l'intramuros : de jour comme de nuit, les vues sont magnifiées pour les amoureux des belles pierres.

Chauffage par le plafond, carrelage PORCELANOSA, Parquet bois contrecollé, espaces communs décorés par La Maison Générale, Grand local vélo équipé de prises électriques : tout est pensé pour votre confort.

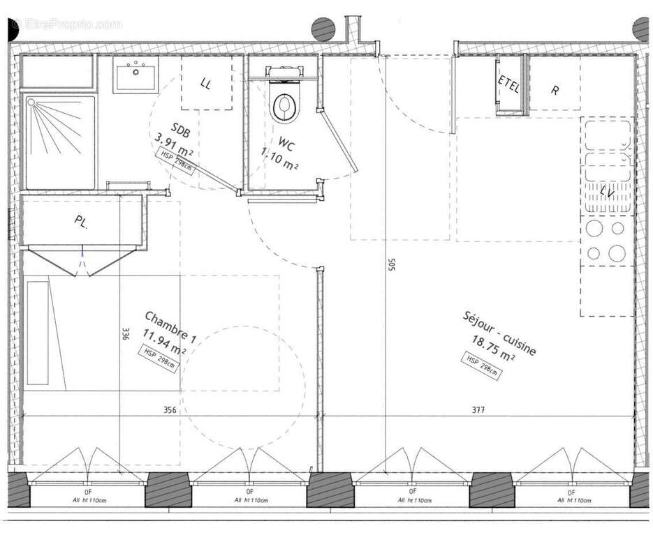
Joli T2au 1er étage, chambre et séjour donnant sur la cathédrale.
calme. ascenseur. wc séparés.salle d'eau avec douche à l'italienne.
Plan intérieur personnalisable.

Frais de notaire Classique.

Nous Consulter.

Honoraires à la charge du vendeur. Non soumis au DPE. Les informations sur les risques auxquels ce bien est exposé sont disponibles sur le site Géorisques : georisques.gouv.fr.

Votre conseiller MON BIEN A LA MER : Gérant - .fr MON BIEN A LA MER
Carte T CPI 22[Coordonnées masquées]25 040
RCP ACM IARD B1 7025278
Voir plus

Référence: VA6156-BIENALAMER
Honoraires à la charge du vendeur.
Barème des honoraires

Prêt immobilier

Vous souhaitez connaître votre capacité d’emprunt et trouver le meilleur crédit immobilier ?
Réaliser une simulation gratuite

Appartement à SAINT-MALO
Appartement à SAINT-MALO
Appartement à SAINT-MALO
Appartement à SAINT-MALO
Appartement à SAINT-MALO
Appartement à SAINT-MALO
Appartement à SAINT-MALO
Appartement à SAINT-MALO
Appartement à SAINT-MALO
Ce site est protégé par reCAPTCHA la Politique de confidentialité et les Conditions d’utilisation de Google s’appliquent.
Obtenir un prêt immobilier au meilleur taux ?

En poursuivant votre navigation sans modifier vos paramètres, vous acceptez l'utilisation de cookies susceptibles de réaliser des statistiques de visite. Cliquez ici pour plus d'informations