Bénéficiez des services de nos partenaires locaux soigneusement sélectionnés
pour vous accompagner dans votre parcours d'achat immobilier

Appartement 101m² à saint-malo

— Saint-Malo 35400 —
774 000 €
101 m²
4 pièces
parkingascenseur

Nos partenaires locaux
L'agence 'MON BIEN A LA MER', spécialiste de l'immobilier neuf sur les côtes Bretonnes, vous présente :

Au coeur de l'enceinte historique de Saint-Malo Intra-Muros, à seulement 100 mètres de la plage du Môle, toutes commodités à pied :

Découvrez ce duplex neuf d'exception, niché au dernier étage avec ascenseur d'une résidence contemporaine alliant confort moderne et charme du vieux Saint-Malo. Résidence et appartement entièrement rénovés sous garantie décennale. Normes isolation thermique et phonique actuelles. Frais de notaire classiques.

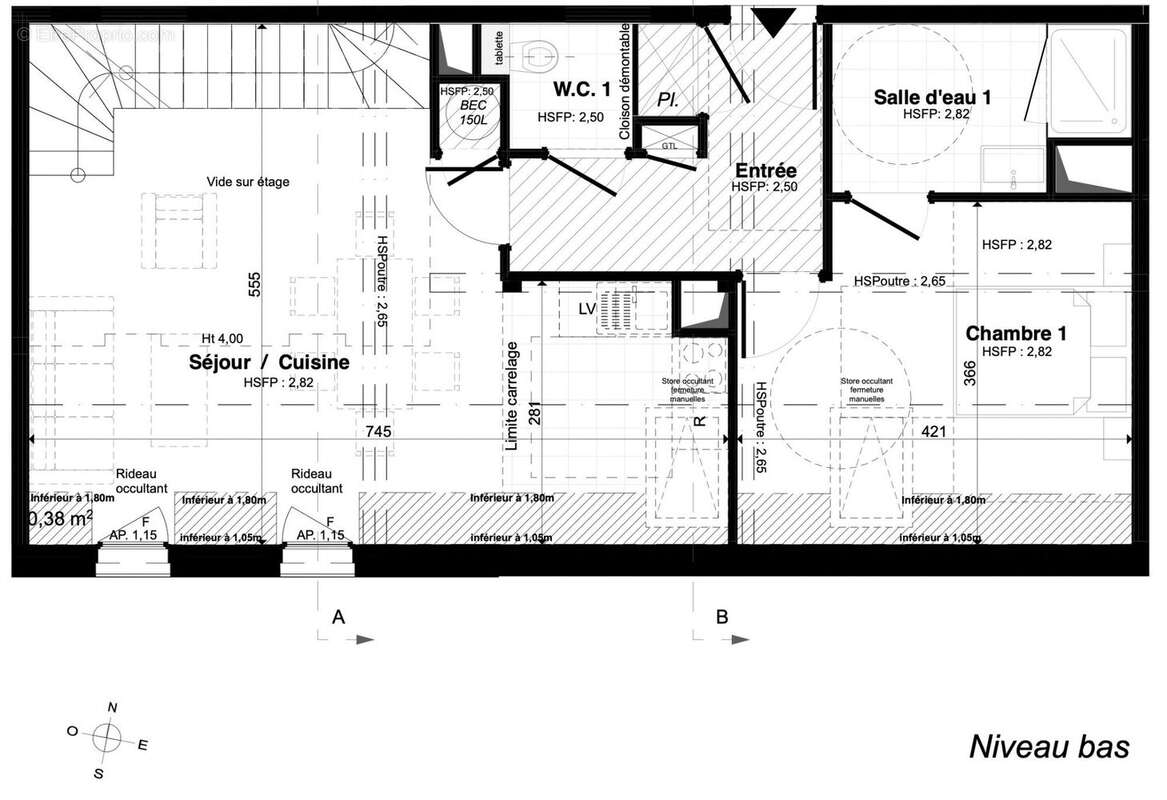
L'appartement offre sur le premier niveau un vaste séjour cathédrale, une suite parentale, wc séparés et rangements.

L'étage dessert deux grandes chambres avec rangements, une salle d'eau avec douche à l'italienne, wc séparés.

Très rare en Intra-Muros : ce bien dispose d'un double box fermé en sous-sol, accessible directement par ascenseur. Possibilité de le détacher du prix.

Nous Consulter.

Honoraires à la charge du vendeur. Classe énergie C, Classe climat A Montant estimé des dépenses annuelles d'énergie pour un usage standard : entre 1327.00 € et 1796.00 € sur les années 2021, 2022 et 2023 (abonnements compris). Les informations sur les risques auxquels ce bien est exposé sont disponibles sur le site Géorisques : georisques.gouv.fr.

Votre conseiller MON BIEN A LA MER : Gérant - .fr MON BIEN A LA MER
Carte T CPI 22[Coordonnées masquées]25 040
RCP ACM IARD B1 7025278
Voir plus

Référence: VA6163-BIENALAMER
Honoraires à la charge du vendeur.
Barème des honoraires
DPE
A
B
C
D
E
F
G
GES
A
B
C
D
E
F
G

Prêt immobilier

Vous souhaitez connaître votre capacité d’emprunt et trouver le meilleur crédit immobilier ?
Réaliser une simulation gratuite

Appartement à SAINT-MALO
Appartement à SAINT-MALO
Appartement à SAINT-MALO
Appartement à SAINT-MALO
Appartement à SAINT-MALO
Appartement à SAINT-MALO
Appartement à SAINT-MALO
Appartement à SAINT-MALO
Appartement à SAINT-MALO
Ce site est protégé par reCAPTCHA la Politique de confidentialité et les Conditions d’utilisation de Google s’appliquent.
Obtenir un prêt immobilier au meilleur taux ?

En poursuivant votre navigation sans modifier vos paramètres, vous acceptez l'utilisation de cookies susceptibles de réaliser des statistiques de visite. Cliquez ici pour plus d'informations