Bénéficiez des services de nos partenaires locaux soigneusement sélectionnés
pour vous accompagner dans votre parcours d'achat immobilier

Maison 110m² à les mureaux

— Les Mureaux 78130 —
252 000 €
110 m² / 455 m²
5 pièces
balcon/terrassejardin

Nos partenaires locaux
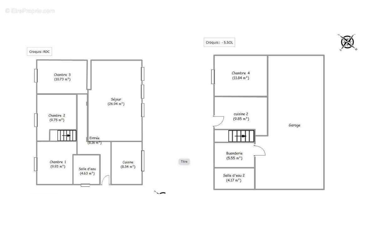
Au calme - Charme de l’ancien - Bonne isolation thermique. . COEUR DE VILLE - Belle superficie à rénover. Idéalement située. Maison élevée sur 455 m² de terrain, avec sous-sol total au rez-de-jardin, divisé en garage, salle d'eau avec WC et buanderie, kitchenette et chambre. Au rez-de-chaussée : entrée, séjour double, cuisine, 3 chambres, salle d'eau avec toilette. La chambre au Sous-sol dispose d'un accès indépendant. Dépendance de jardin au fond. Prestations : Salle de douche : 7 ans, double vitrage coté nord : 10 ans, ravalement 15 ans. entretien chaudière fournit. L'audit énergétique a été réalisé. .
Voir plus

Référence: 400518
Honoraires à la charge du vendeur.
Barème des honoraires
DPE
A
B
C
D
E
F
G
GES
A
B
C
D
E
F
G

Prêt immobilier

Vous souhaitez connaître votre capacité d’emprunt et trouver le meilleur crédit immobilier ?
Réaliser une simulation gratuite

Maison à LES MUREAUX
Maison à LES MUREAUX
Maison à LES MUREAUX
Maison à LES MUREAUX
Maison à LES MUREAUX
Maison à LES MUREAUX
Maison à LES MUREAUX
Maison à LES MUREAUX
Maison à LES MUREAUX
Ce site est protégé par reCAPTCHA la Politique de confidentialité et les Conditions d’utilisation de Google s’appliquent.
Obtenir un prêt immobilier au meilleur taux ?

En poursuivant votre navigation sans modifier vos paramètres, vous acceptez l'utilisation de cookies susceptibles de réaliser des statistiques de visite. Cliquez ici pour plus d'informations