Bénéficiez des services de nos partenaires locaux soigneusement sélectionnés
pour vous accompagner dans votre parcours d'achat immobilier

La garenne-colombes centre - 2 pieces - 230 000 fai

— La Garenne-Colombes 92250 —
230 000 €
34 m²
2 pièces

Nos partenaires locaux
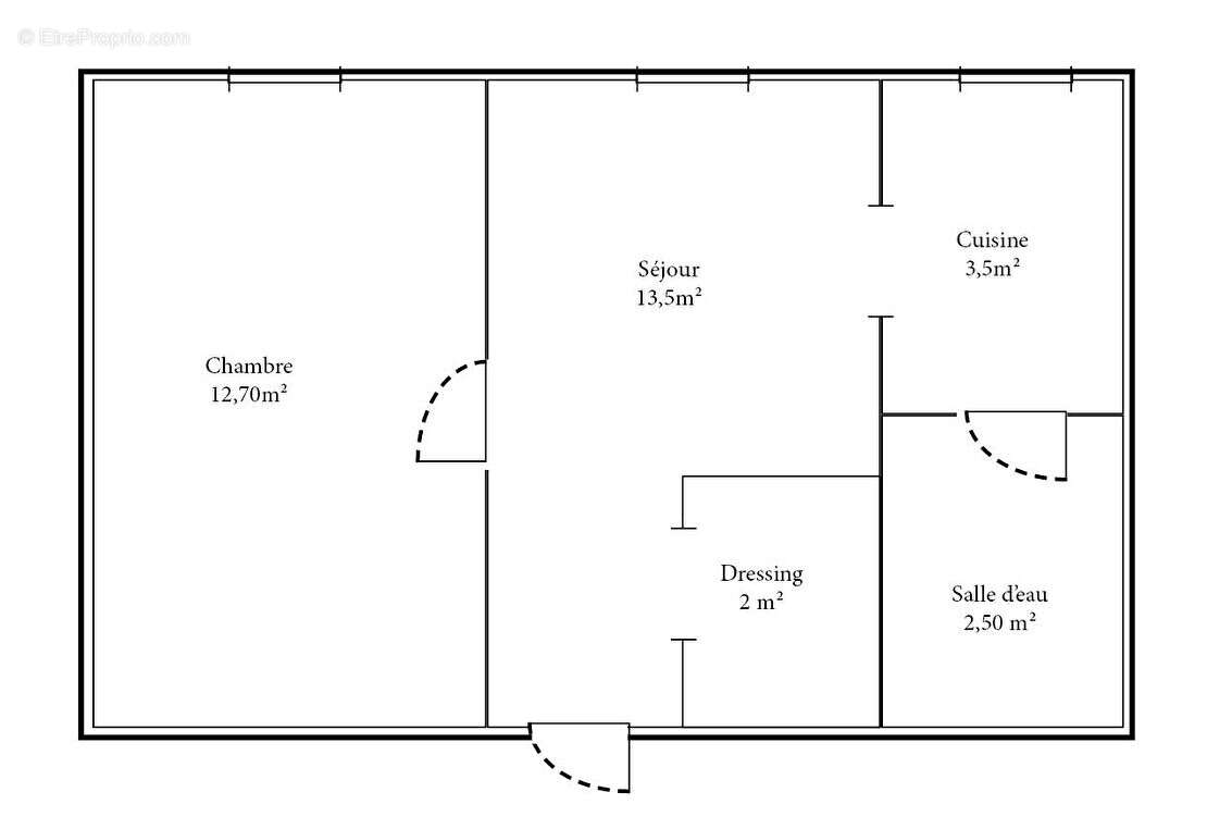
Idéalement situé à deux pas de la gare et du tram T2, proche commerces, au 2ème étage d'une copropriété ancienne ravalée et aux parties communes rénovées, un appartement de deux pièces en très bon état général. Il offre une entrée arec dressing, une pièces de vie exposée sud, une cuisine semi ouverte, une grande chambre et une salle d'eau avec wc. DPE: E (passage en D au 1er janvier 2026) (4.55 % honoraires TTC à la charge de l'acquéreur.) Copropriété de 41 lots - dont 17 lots habitation. (Pas de procédure en cours). Charges annuelles : 1320 euros.
Voir plus

Référence: V1211
Bien en copropriété. Nombre de lots : 41. Charges de copropriété : 1320 €.
Honoraires d'agence de 4.55% à la charge de l'acquéreur
Barème des honoraires
DPE
A
B
C
D
E
F
G
GES
A
B
C
D
E
F
G

Prêt immobilier

Vous souhaitez connaître votre capacité d’emprunt et trouver le meilleur crédit immobilier ?
Réaliser une simulation gratuite

Appartement à LA GARENNE-COLOMBES
Appartement à LA GARENNE-COLOMBES
Appartement à LA GARENNE-COLOMBES
Appartement à LA GARENNE-COLOMBES
Appartement à LA GARENNE-COLOMBES
Appartement à LA GARENNE-COLOMBES
Ce site est protégé par reCAPTCHA la Politique de confidentialité et les Conditions d’utilisation de Google s’appliquent.
Obtenir un prêt immobilier au meilleur taux ?

En poursuivant votre navigation sans modifier vos paramètres, vous acceptez l'utilisation de cookies susceptibles de réaliser des statistiques de visite. Cliquez ici pour plus d'informations